【小区名称】:雅颂居
【建筑面积】:168平米
【设计风格】:美式风格
【硬装造价】:15万
【户型】:3室2厅1厨2卫
美式风格有着欧罗巴的奢侈与贵气,但又结合了美洲大陆这块水土的不羁,这样结合的结果是剔除了许多羁绊,但又能找寻文化根基的新的怀旧、贵气加大气而又不失自在与随意的风格。美式家居风格的这些元素也正好迎合了时下的文化资产者对生活方式的需求,即:有文化感、有贵气感,还不能缺乏自在感与情调感。

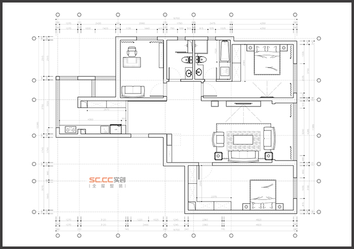
平面布置图
美式风格摒弃了繁琐和奢华,并将不同风格中的优秀元素汇集融合,以舒适机能为导向,强调“回归自然”,使这种风格变得更加轻松、舒适。美式风格突出了生活的舒适和自由,不论是感觉笨重的家具,还是带有岁月沧桑的配饰,都在告诉人们这一点。特别是在墙面色彩选择上,自然、怀旧、散发着浓郁泥土芬芳的色彩是美式风格的典型特征。美式风格的色彩以自然色调为主,绿色、土褐色最为常见;壁纸多为纯纸浆质地;家具颜色多仿旧漆,式样厚重;设计中多有地中海样式的拱。

客厅
客厅作为待客区域,一般要求简洁明快,同时装修较其它空间要更明快光鲜,通常使用大量的石材和木饰面装饰;美国人喜欢有历史感的东西,这不仅反映在软装摆件上对仿古艺术品的喜爱,同时也反映在装修上对各种仿古墙地砖、石材的偏爱和对各种仿旧工艺的追求上。总体而言,美式风格的客厅是宽敞而富有历史气息的。

餐厅
客厅以浅色系的沙发、木质家具搭配一株绿色的植物,传递着简洁、舒适的气息,在淡黄色光线的映衬下,呈现出雅致浪漫的韵味。明亮的光线从宽大的窗户照进,让客厅空间显得宽敞大气。
餐厅相对简洁,以实木材料制作的餐桌及椅凳朴实而自然,细节处理十分考究,如流畅的桌边线条,桌面及椅子的纹理,都凸显着家居生活的品质感。餐桌旁别具一格的陈列柜,实用美观。

书房
美式风格的书房简单实用,但软装颇为丰富,各种象征主人过去生活经历的陈设一应俱全,被翻卷边的古旧书籍、颜色发黄的航海地图、乡村风景的油画、一支鹅毛笔……即使是装饰品,这些东西也足以为书房的美式风格加分。

卧室
美式风格的卧室布置较为温馨,作为主人的私密空间,主要以功能性和实用舒适为考虑的重点,一般的卧室不设顶灯,多用温馨柔软的成套布艺来装点,同时在软装和用色上非常统一。

卫生间
干湿分区作为卫浴间最迫切的设计。确实,特别是对于不是很通风的卫浴间,那么干湿分区应该怎样做呢?相比浴缸,淋浴间会更适合小户型的卫浴,更方便全家人的使用,同时不会为小小的面积增添视觉负担。加高的细节,让干湿分区卫浴层次更加分明,减少干区的潮湿度,同时可以把想要隐藏的管道收起来。不过家里有老人的话就要注意,要尽量避免地面的高度差,尤其是浴室比较潮湿。卫生间不一定要酷酷的黑白灰,喜欢简单设计的你,也可以运用点瓷砖的点缀,不用很复杂,让卫浴空间更富整体美感和设计感。
卫生间可以安装壁灯,使用间接的灯光形成强烈的灯光效果。如果卫生间的空间较小,可以将灯具设置在正中央,形成光芒四射的效果,增强空间感。卫生间装修需要注意的是灯具要有防水性与安全性。卫生间尽可能选用木、石、藤、竹、织物等天然建筑材料,如墙上的护墙木板、天花板上的木横梁,都会给浴室增添一种温馨、起居舒适的感觉。