
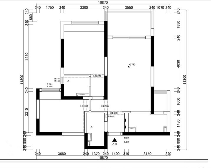
户型图。
楼主:南北不通是没有办法的事情,且沿马路,买的时候比较靠后要道,只能买这样31楼性价比不高的了。两个卫生间有点浪费,改主卧为走入式衣柜呢,主卧的卫生间又是明卫,稍有纠结。大门口的厕所门位置不太好,这个一定要改掉的。设计风格为简单实用为主,好看时尚为辅,这貌似等于现代简约风?

设计图与设计师确认,基本如图。

秀家正式开始:客厅是色彩比较丰富的地方,也是摄影师说最出彩的地方:广角镜头拍出来,显的家里好大。

射灯打在太阳钟上,行成了影子。

客厅灯具都选了白色,这样显得没有太日式,不然觉得有点庙里的感觉了。
母鸡风,被不少人评为性冷淡风。遂通过软装,尽量往北欧的配饰上靠。

毕业照拍的时候电视还没有到,双十一订的电视,让我等了十几天,崩溃啊!

沙发是齐家的斯德哥尔摩系列,曾经仿制未果,因为齐家这款的海绵买不到。

单椅是网购的,应该也是山东货。

沙发背景画据说是北京的一位美女画家的作品,当然网购买来的自然是印的。用点白色,还是不想太庙里的感觉。

沙发边上其实是个隐形门,出去之后是储藏间还有设备平台。
其实是把厨房门的位置修改了,这样厨房多了台面放水槽。

餐厅,餐桌是家具厂做的,餐椅是另外配的,但毫无违和感吧。

继续发,进门效果。

玄关开始准备挂画的,但是话始终选不好,最后用黑板漆解决问题。

妙巢的美女助理们,一会儿就画好了。

玄关背后是软木墙跟斗柜。

太阳灯也购物某宝,射灯大下来,有阴影的感觉很好,买了一堆治愈系小摆件,木头人那个是齐家的。

次卧稍微素了一点,书桌是木工做的,木蜡油自己刷的。当时看着还可以,其实还是不如家具厂做的性价比高。

台灯来自齐家。

小小的次卧,留了两套开关,以后可以用高低床。

主卧:让我肉痛的移门,不过确实一点味道都没有,爱格真好。

画同样来自齐家,角落是梳妆桌。

窗帘阿里巴巴买的,便宜。

浴室柜也是家具厂做的,马桶是伊奈的,性价比不如国产的好。

最后看看厨房吧:邓家刀摆了,陈枝记的锅颜值太低,没好意思摆,不过楼主表示用的很好,非常适合爆炒。

收房抽奖拿来的冰箱。

多出来的台面跟水槽,请忽略那个高仪明达touch ,其实不大实用。