
张广源/摄
银川建发大阅城项目地块位于银川市北部,紧邻城市重点发展的阅海湾商务区,同时用地周边规划有300万平方米的大型住宅区——阅海万家。经过与业主银川建发集团的合作,借助基地的优越位置,设计团队通过对多元化、可达性等重要元素的关注和精心设计,打造了一个集购物商街、文化娱乐、高端酒店、商务办公、精品公寓等于一体的大型商业文化娱乐综合体项目。
01
功能多元,丰富多样的业态配置
项目总体规模达到81万平方米,分为两期进行开发:一期建筑主体由30米高的商业裙房结合一栋100米高办公塔楼,和一栋85米高酒店板楼组成,两栋高层一高一低、一竖一横形成建筑的“潮头”,商业裙房在高层下方由北向南延展接近300米形成“潮尾”,整体布局高低起伏、一气呵成;二期建筑顺应功能需求分解为多个单体:沿东侧城市支路布置高层塔楼,主要为办公、公寓、住宅等功能;沿西侧内街布置底层商铺、上层停车楼的多层综合楼以及汽车文化展厅,高层塔楼与多层综合楼均采用平面45度转角处理。

▲ 总平面图
1商业裙房 2 办公楼 3 酒店 4 文化演艺中心 5 底商/停车综合楼
6 汽车文化展厅 7 创意办公 8 公寓 9 底商 10 住宅

▲ 功能分区示意图
这种强烈的对比赋予了项目丰富的空间和外观效果,同时还给消费者提供了移步换景的感官体验:在车辆川流不息的城市主干道旁,一期建筑形态起伏、舒展大气,二期数栋高楼伫立其后、低调内敛,形成一期主体的城市背景;在行人流连忘返的商业内街,二期底层商业色彩明快、空间变幻,一期建筑界面统一而完整,成为反衬二期商业丰富错落的绝佳背景。

▲ 面向城市的商业综合体 张广源/摄

▲ 酒店外景 张广源/摄

▲ 从街角看大阅城 张广源/摄
02
空间引导,强调多重商业界面的可达性
项目除了沿街商业综合体之外,还在核心区存在大量的底层商铺,为此我们设置了一内一外两条风格迥异的商业街,室内和室外两条商街首尾相连、形成环线,并连接起各个方向的主要出入口及广场,起到了引导人流进入,盘活商业动线的双重作用。

▲ 室外下沉广场 张广源/摄

▲ 商业节点流线

▲ 首层平面图

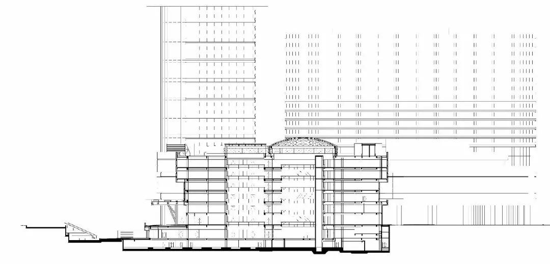
▲ 剖面图

▲ 室内商街 张广源/摄

▲ 室内中庭 季欣/摄

▲ 入口夜景 季欣/摄
03
场所聚合,营造多样性的活力空间
项目在室内外布局了多处节点空间并串连成线,起到了汇聚人气、烘托氛围的作用,并带给消费者丰富、别致的空间体验。

▲ 室外休憩广场 张广源/摄
在露天音乐喷泉广场,孩子们可以伴着音乐嬉戏,玩累了就牵着大人的手,一起走进悬吊巨大玻璃叶子雨棚的商业主入口;进入室内,展现在眼前的是六层通高的阳光大厅,曲线型的商铺界面一层层环抱着大厅,一架“飞天扶梯”从一层直冲四层;穿过大厅可以直达一、二期建筑之间的室外休憩广场,坐在绿叶造型的遮阳棚下。

▲ 露天音乐喷泉广场 季欣/摄

▲ 室内阳光大厅 张广源/摄

▲ 入口雨棚夜景 季欣/摄

▲ 入口雨棚详图
04
细节演绎,石材与玻璃的灵动表达
设计汲取了宁夏地方山水特色带给我们的启示,将黄河流水和贺兰山石的概念引入了立面。建筑外立面以石材和玻璃为主要材料,配合精致的细部设计,强调建筑的灵动简约并带给人们强烈的视觉冲击,塑造了本地区的标志性建筑。

▲ 外立面石材效果 张广源/摄

▲ 石材幕墙细节 季欣/摄

▲ 石材幕墙细部

▲ 石材幕墙灯槽详图
05
集中动力站,支撑综合体运行的强大“心脏”
建发大阅城项目规模大、功能多,其动力负荷无疑是复杂而庞大的。设计排除了依据功能分设冷热源机房的常规做法,在一、二期之间的地下室集中设置了3000多平方米的集中动力站,作为整个项目的能源中心,大大提高了整个系统的运行效率。同时,还配合设计了冰蓄冷系统、冷热源大温差输送系统、冬季冷却塔供冷系统等一系列节能降耗、提升经济性的先进技术,无论从投资建设规模还是技术领先性上都成就了宁夏乃至西北地区的最强“心脏”。
建设地点 宁夏回族自治区银川市
建成时间 2016年
建筑面积 816,000m2
设计主持 于海为 陈宁 张玉明
方案设计 韩聪 季欣 魏伟 秦筑
建筑专业 陈宁 张玉明 韩聪 郭正同
季欣 魏伟 卢勇
结构专业 段永飞 王鑫 尹洋
暖通专业 李雯筠 姜红
电气专业 贾京花 冯杰
给排水专业 匡杰 张晋童
总图专业 邵守团
景观设计 北京水木盛景景观设计有限责任公司
室内设计 建峰建设集团股份有限公司
幕墙设计 北京凯顺腾工程咨询有限公司
建筑摄影 张广源 季欣