
初入设计院,如果只能拥有一项技能,你会选择?
台长觉得必须是施工图!无论是方案构思,还是建模,你都需要了解施工图知识, 不然你的设计就永远只能停留在表面,经不起推敲。
行业天花板张唐景观之所以能拿下2017ASLA大奖,也跟施工落地能力息息相关。


▲ 张唐获奖作品-苏州中航樾园
评委组是这样评价的: “这是一个施工完成度很高的景观项目,它像一件艺术品,充满了真诚和纯粹。”

画施工图,是一门综合性很强的技术活。你既要懂得方案中每一个的工艺做法、常用材料及尺寸,也要了解大量的标准规范,甚至画出来的图要有美感!

文末附2022年高级景观素材合集
所以不少方案设计师前期都会画1-2年施工图再回方案组。这样不仅让你的设计更具落地性,跟甲方说话也更有分量。


很多时候,你只需要通过一套施工图纸,就能分辨出是新手还是老手。
老手施工图设计师画出来的图纸更加清晰,准确,完整,高效,并且图纸有重点,编排有理由;此外,他们还能够合理使用图层属性、线形线宽,用一张CAD平面就能清晰表达立体空间。

而新手的图纸则混乱、无序、繁杂,并缺乏重点,甚至有的还不看图集,无视规范,导致落地问题一堆。

那么,作为新人,怎么样才能快速成长为施工图老手呢?
台长推荐你试试这个《景观施工图极速专攻班》, 通过2大完整项目,让你系统、高效地掌握一套标准的施工图全流程,做出高标准高颜值的施工图纸!



课程亮点
本课程共15节课,分为基础与规范、总平面图绘制、节点详图绘制、水电绿化分析、方案总平设计与优化5大部分。

通过2大类典型项目案例,让你掌握一套完整的施工图流程,了解施工图背后的底层逻辑,能够高效绘图,并获得工程设计与方案优化能力。

完整工作流:2套经典案例实操,手把手带你掌握一套完整的施工图绘制流程。

底层逻辑:让你了解施工图的思考逻辑,能够清晰、简洁地表达图纸内容。
高效绘图:15节课带你掌握高效绘图五要素(图纸系统完整全面/设计信息清晰有序/图面版式美观/深度合理/表达正确),习得高效的施工图绘制技巧。

工程设计能力:让你深入了解工艺、做法、材料、尺寸等基本工程知识,从而让项目更好地落地。

方案优化能力:你将学会从工程角度看方案,并优化出落地性更强的设计方案。
适合人群
1.建筑/景观/规划等相关专业学生;
2.建筑/景观/规划等行业在职设计师;
3.想转行至建筑景观规划行业的人士。
你将收获什么?
1.掌握一套完整的施工图流程;
2.了解施工图的底层逻辑;
3.掌握高效的施工图绘图技法;
4.掌握大型设计院的施工图绘制标准;
5.掌握一定的工程设计能力,让设计更具落地性;
6.提高总平面图设计与优化能力。

Light
· 甲级景观设计院资深设计师,从事施工图设计高达10年;
· 曾参与多个大型景观规划项目设计,并负责施工图深化设计;
· 景观设计金牌讲师,并有一套独门施工图设计方法。



概说园林景观与园林景观工程图纸的内容与重点,为施工图绘制打下理论基础。

带你理清6大识图基础(图纸图幅,图线,符号,比例,标注,线型规范)以及施工图背后的设计逻辑(材料尺寸工艺,施工图集,设计规范)等理论知识,了解常用图例。



知识点: 识图基础,底层逻辑,理论知识,常用图例

你将通过顶级示范区与大型公园2个完整项目案例,全面掌握总平面图(底图/竖向/铺装/地形及分区平面的绘制) 的底层逻辑与制图标准。

本节课将通过顶级示范区及公园2大案例,手把手教你如何将方案图绘制成精准有效的施工图文件。


▲ 课程案例(顶级示范区项目)


▲ 课程案例(大型公园项目)
教你如何读取方案中的注意要素,借助CAD快捷工具高效完成方案描图工作,绘制完整清晰,尺寸精准的总平面图,并优化图面细节。

知识点: 准备工作,轴线/路网法,尺寸定位,技巧演示,细节处理

在上一节内容的基础上,你将学习总平面图的竖向设计方法,了解场地标高调控的全过程,并掌握标高的计算方式。


▲ 课程案例(示范区项目)

▲ 课程案例(大型公园)
知识点: 标高调控,标高计算

你将通过案例实操,掌握如何用CAD快速填充总平面图的铺装。同时,老师还会为你讲解在填充过程中所遇到的难点,让你更高效地完成绘制。


▲ 课程案例(示范区项目)

▲ 课程案例(大型公园项目)
知识点: 铺装填充,难点分析

老师将手把手教你如何做总平面图的地形设计。并带你了解等高线设计,不同高差的起坡方法,宽窄缓陡的处理方法,及阴坡阳坡的辨别方法。


▲ 课程案例(示范区项目)

▲ 课程案例(大型公园项目)
此外,你还将掌握通过网格定位、坐标定位及尺寸定位 3 种方式来制作总平定位图。

▲ 课程案例(大型公园项目)
知识点: 等高线设计,起坡方法,3大定位方式

你将习得如何根据图纸比例要求,掌握分区平面图的布图技巧,并清晰表达细节。

▲ 课程案例
知识点: 布图技巧,比例设置

这部分,你将跟着案例掌握景观中常见的5大园建(廊架/水景/跌级花池/景观亭/景墙)以及景观剖面图、通用大样图的做法。

廊可以说是景观设计中最常见的园建之一。你将通过案例实操,了解景观长廊与廊架的材料、工艺及做法,并掌握其平/立/剖面施工图的标准绘法。



▲ 课程案例
知识点: 景观廊架绘制,材料应用,施工工艺,结构做法

你将通过入口水景与跌级花池详图的平立剖面绘制,掌握其材质的运用以及结构的标准做法。



▲ 课程案例
知识点: 平立剖绘制,材质应用,结构做法

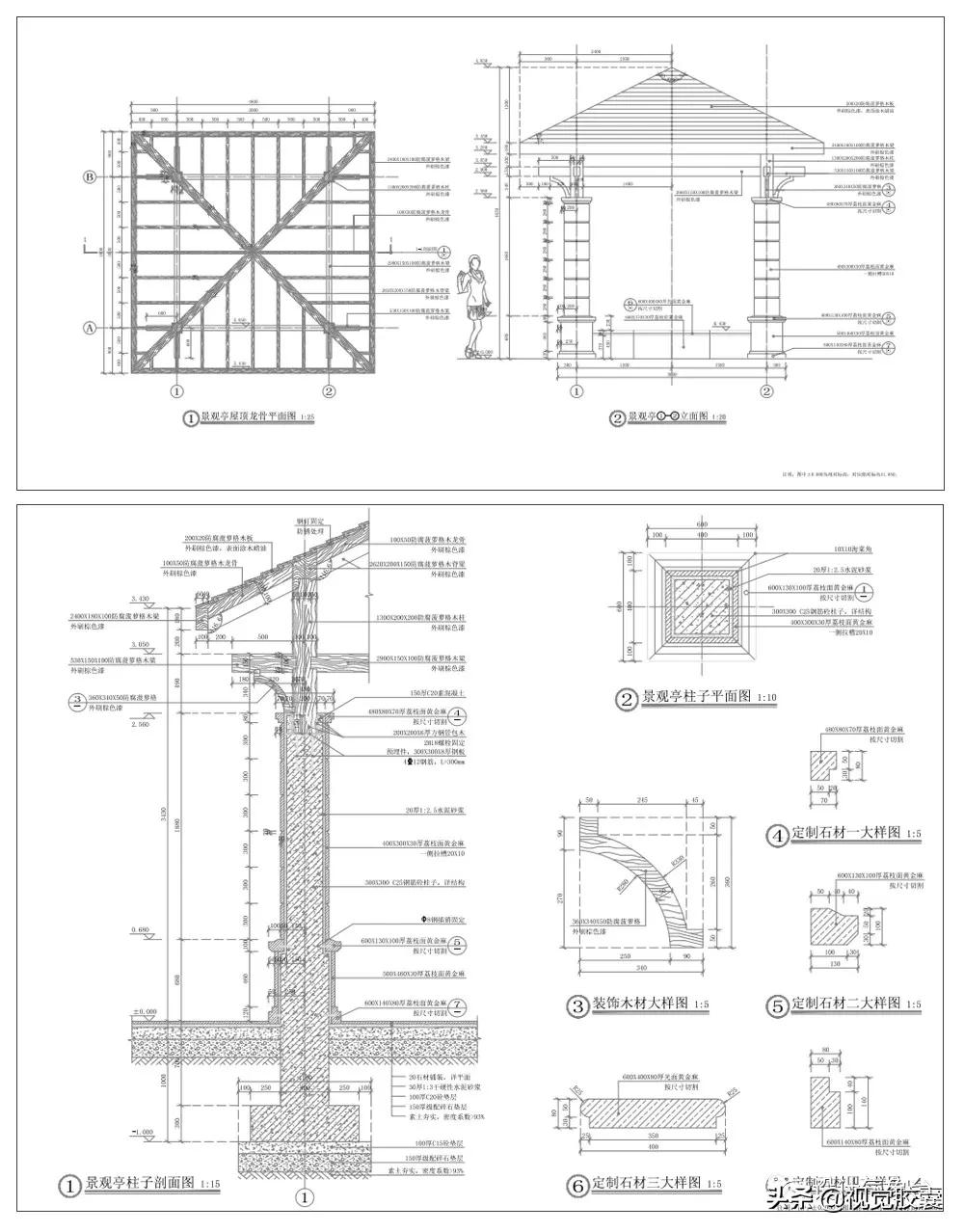
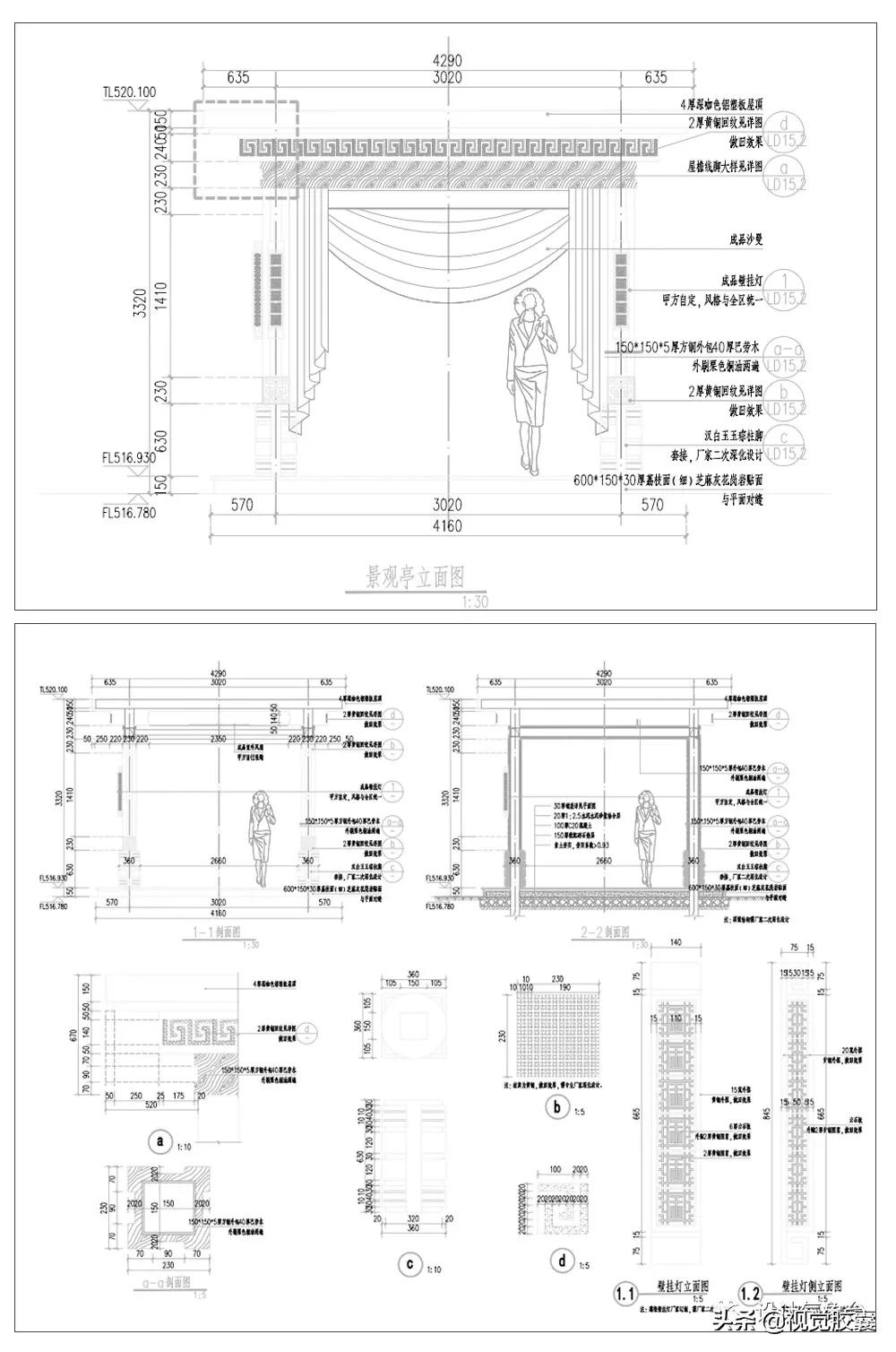
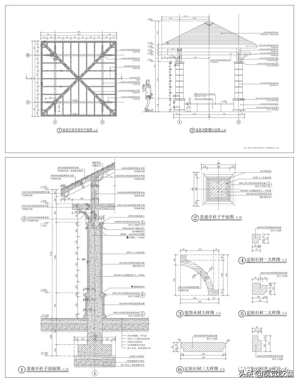
你将了解到景观亭常见的材料、工艺及做法。并通过实操案例掌握平/立/剖面施工图的标准画法。



▲ 课程案例
知识点: 平立剖绘制,材料应用,工艺做法

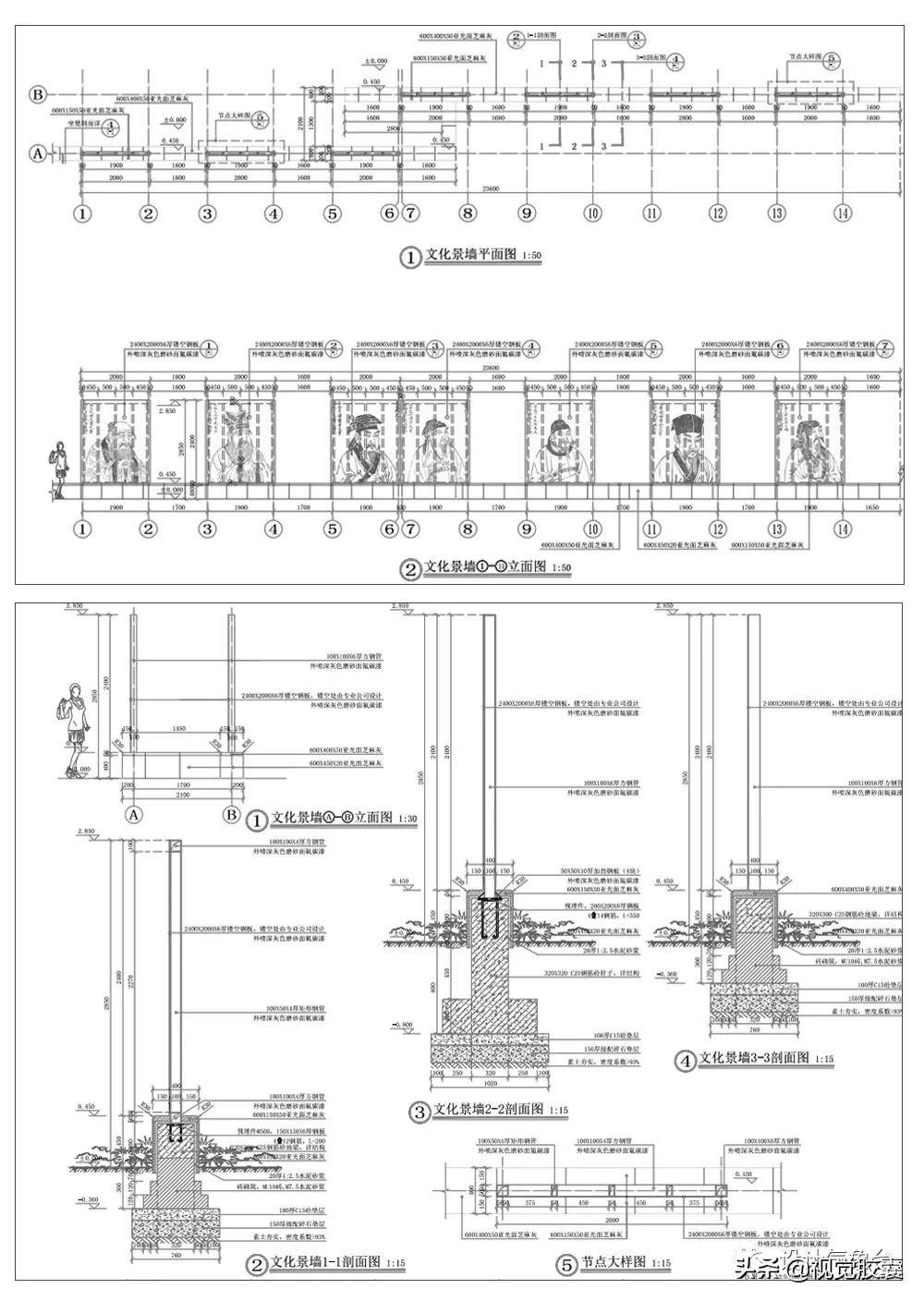
绘制景墙时,需要注意其结构与基础。你将通过特色景墙与文化景墙详图的案例实操,深入了解景墙的常见做法、结构及工艺特点。



▲ 课程案例
知识点: 平立剖绘制,景墙结构,工艺特点

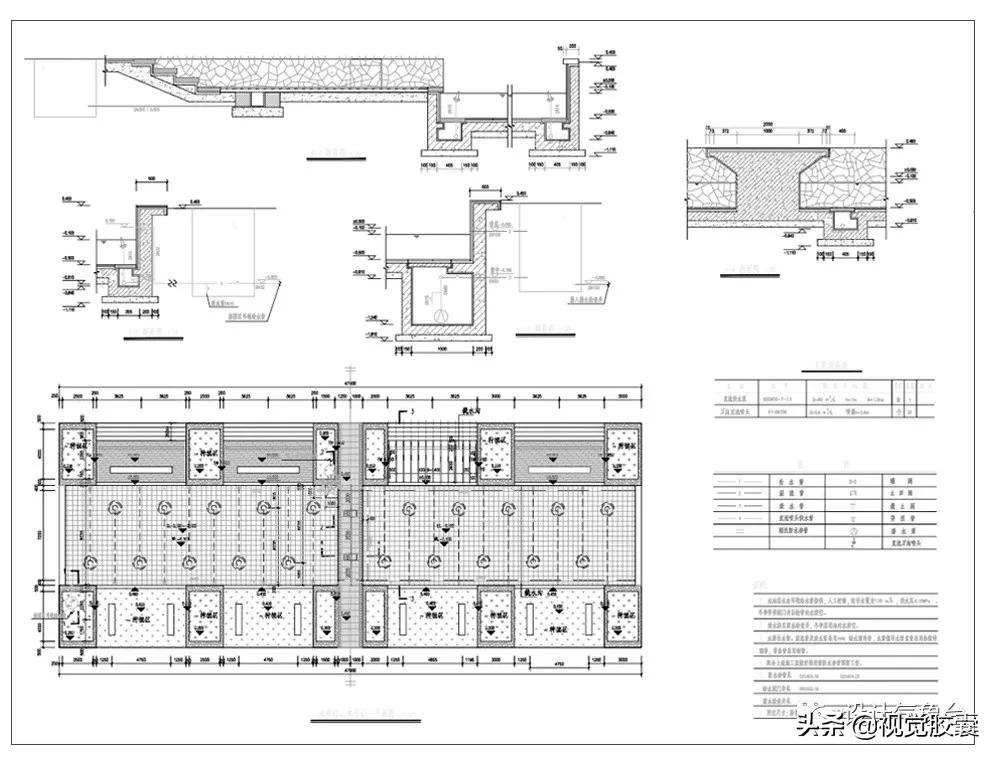
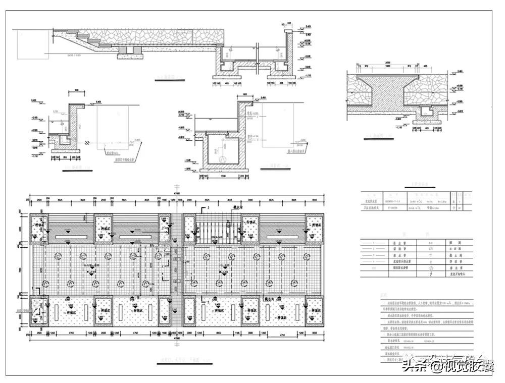
你将通过4不同节点的剖面案例实操(台阶、跌级花池、跌级水景、景观亭),习得如何将平面转换成竖向空间,并掌握一套标准的剖面图画法。

▲ 课程案例
知识点: 竖向空间表达,剖面图画法

你将掌握大型设计院通用大样图的制图标准,并通过案例实操,掌握其底层逻辑,并举一反三地应用到其他项目中。


▲ 课程案例
此外,老师还会分享珍藏版自用超级构建库,50多类1000多个大样素材,施工图必备神器!

知识点: 制图标准,通用大样图绘图逻辑


你将学习植物,给排水,电气,结构专业的基本知识,了解多专业间的配合协同。详解乔/灌/地被植物平面图,绘制苗木表,植物放线,理清植物工程图纸逻辑。

▲ 课程案例( 植物施工图)
此外,你还将了解浇灌图纸,排水平面图,电气总平面图以及与各专业的配合。


最后完善好整套施工图纸(目录,设计说明,封面,总结要点)。

知识点: 植物/电气/给排水施工图,图纸完善


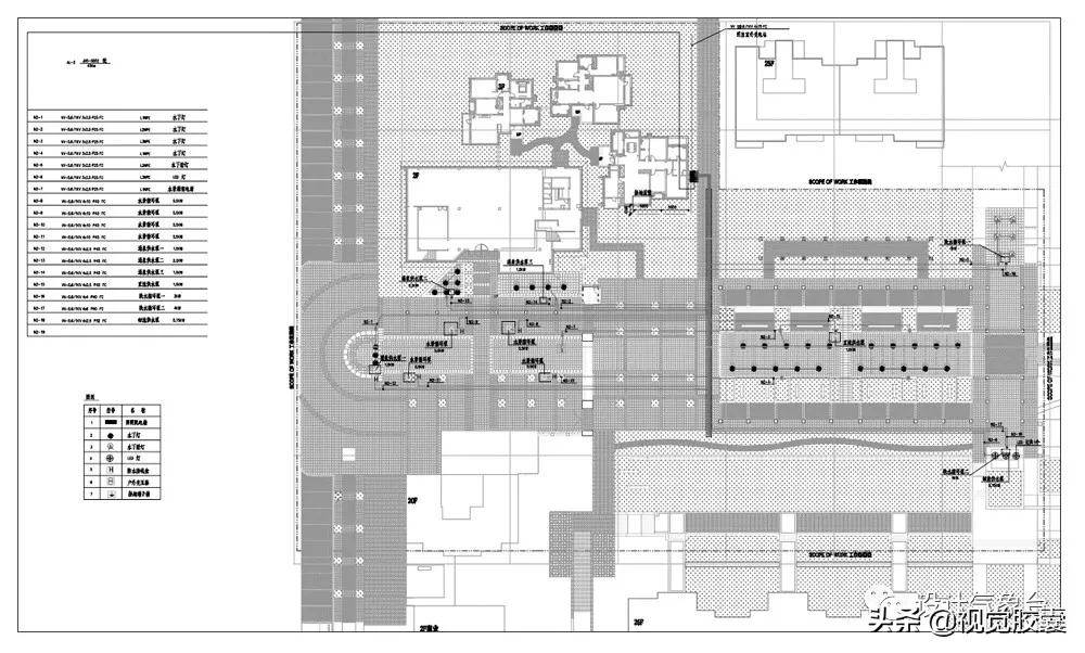
你将通过大型都市综合体及坡道公园2大案例,掌握方案总平面图设计与优化。


知识点: 总平面图优化,常见问题归纳
Q
15节课你可以干什么?
掌握一套完整的景观施工图流程
并熟练使用CAD绘制高标准高颜值图纸

本次课程为在线观看+课后答疑形式,共15节课, 从施工图基础理论到案例实操,并通过一个完整项目手把手教你绘制出一套标准、美观的施工图,了解其制作流程和底层逻辑。

授课形式
在【设计气象台】平台进行授课
随到随学,可重复学习
(无需等待,报名后立即学习)


初入设计院,如果只能拥有一项技能,你会选择?
台长觉得必须是施工图!无论是方案构思,还是建模,你都需要了解施工图知识, 不然你的设计就永远只能停留在表面,经不起推敲。
行业天花板张唐景观之所以能拿下2017ASLA大奖,也跟施工落地能力息息相关。


▲ 张唐获奖作品-苏州中航樾园
评委组是这样评价的: “这是一个施工完成度很高的景观项目,它像一件艺术品,充满了真诚和纯粹。”

画施工图,是一门综合性很强的技术活。你既要懂得方案中每一个的工艺做法、常用材料及尺寸,也要了解大量的标准规范,甚至画出来的图要有美感!

文末附2022年高级景观素材合集
所以不少方案设计师前期都会画1-2年施工图再回方案组。这样不仅让你的设计更具落地性,跟甲方说话也更有分量。


很多时候,你只需要通过一套施工图纸,就能分辨出是新手还是老手。
老手施工图设计师画出来的图纸更加清晰,准确,完整,高效,并且图纸有重点,编排有理由;此外,他们还能够合理使用图层属性、线形线宽,用一张CAD平面就能清晰表达立体空间。

而新手的图纸则混乱、无序、繁杂,并缺乏重点,甚至有的还不看图集,无视规范,导致落地问题一堆。

那么,作为新人,怎么样才能快速成长为施工图老手呢?
台长推荐你试试这个《景观施工图极速专攻班》, 通过2大完整项目,让你系统、高效地掌握一套标准的施工图全流程,做出高标准高颜值的施工图纸!



课程亮点
本课程共15节课,分为基础与规范、总平面图绘制、节点详图绘制、水电绿化分析、方案总平设计与优化5大部分。

通过2大类典型项目案例,让你掌握一套完整的施工图流程,了解施工图背后的底层逻辑,能够高效绘图,并获得工程设计与方案优化能力。

完整工作流:2套经典案例实操,手把手带你掌握一套完整的施工图绘制流程。

底层逻辑:让你了解施工图的思考逻辑,能够清晰、简洁地表达图纸内容。
高效绘图:15节课带你掌握高效绘图五要素(图纸系统完整全面/设计信息清晰有序/图面版式美观/深度合理/表达正确),习得高效的施工图绘制技巧。

工程设计能力:让你深入了解工艺、做法、材料、尺寸等基本工程知识,从而让项目更好地落地。

方案优化能力:你将学会从工程角度看方案,并优化出落地性更强的设计方案。
适合人群
1.建筑/景观/规划等相关专业学生;
2.建筑/景观/规划等行业在职设计师;
3.想转行至建筑景观规划行业的人士。
你将收获什么?
1.掌握一套完整的施工图流程;
2.了解施工图的底层逻辑;
3.掌握高效的施工图绘图技法;
4.掌握大型设计院的施工图绘制标准;
5.掌握一定的工程设计能力,让设计更具落地性;
6.提高总平面图设计与优化能力。

Light
· 甲级景观设计院资深设计师,从事施工图设计高达10年;
· 曾参与多个大型景观规划项目设计,并负责施工图深化设计;
· 景观设计金牌讲师,并有一套独门施工图设计方法。



概说园林景观与园林景观工程图纸的内容与重点,为施工图绘制打下理论基础。

带你理清6大识图基础(图纸图幅,图线,符号,比例,标注,线型规范)以及施工图背后的设计逻辑(材料尺寸工艺,施工图集,设计规范)等理论知识,了解常用图例。



知识点: 识图基础,底层逻辑,理论知识,常用图例

你将通过顶级示范区与大型公园2个完整项目案例,全面掌握总平面图(底图/竖向/铺装/地形及分区平面的绘制) 的底层逻辑与制图标准。

本节课将通过顶级示范区及公园2大案例,手把手教你如何将方案图绘制成精准有效的施工图文件。


▲ 课程案例(顶级示范区项目)


▲ 课程案例(大型公园项目)
教你如何读取方案中的注意要素,借助CAD快捷工具高效完成方案描图工作,绘制完整清晰,尺寸精准的总平面图,并优化图面细节。

知识点: 准备工作,轴线/路网法,尺寸定位,技巧演示,细节处理

在上一节内容的基础上,你将学习总平面图的竖向设计方法,了解场地标高调控的全过程,并掌握标高的计算方式。


▲ 课程案例(示范区项目)

▲ 课程案例(大型公园)
知识点: 标高调控,标高计算

你将通过案例实操,掌握如何用CAD快速填充总平面图的铺装。同时,老师还会为你讲解在填充过程中所遇到的难点,让你更高效地完成绘制。


▲ 课程案例(示范区项目)

▲ 课程案例(大型公园项目)
知识点: 铺装填充,难点分析

老师将手把手教你如何做总平面图的地形设计。并带你了解等高线设计,不同高差的起坡方法,宽窄缓陡的处理方法,及阴坡阳坡的辨别方法。


▲ 课程案例(示范区项目)

▲ 课程案例(大型公园项目)
此外,你还将掌握通过网格定位、坐标定位及尺寸定位 3 种方式来制作总平定位图。

▲ 课程案例(大型公园项目)
知识点: 等高线设计,起坡方法,3大定位方式

你将习得如何根据图纸比例要求,掌握分区平面图的布图技巧,并清晰表达细节。

▲ 课程案例
知识点: 布图技巧,比例设置

这部分,你将跟着案例掌握景观中常见的5大园建(廊架/水景/跌级花池/景观亭/景墙)以及景观剖面图、通用大样图的做法。

廊可以说是景观设计中最常见的园建之一。你将通过案例实操,了解景观长廊与廊架的材料、工艺及做法,并掌握其平/立/剖面施工图的标准绘法。



▲ 课程案例
知识点: 景观廊架绘制,材料应用,施工工艺,结构做法

你将通过入口水景与跌级花池详图的平立剖面绘制,掌握其材质的运用以及结构的标准做法。



▲ 课程案例
知识点: 平立剖绘制,材质应用,结构做法

你将了解到景观亭常见的材料、工艺及做法。并通过实操案例掌握平/立/剖面施工图的标准画法。



▲ 课程案例
知识点: 平立剖绘制,材料应用,工艺做法

绘制景墙时,需要注意其结构与基础。你将通过特色景墙与文化景墙详图的案例实操,深入了解景墙的常见做法、结构及工艺特点。



▲ 课程案例
知识点: 平立剖绘制,景墙结构,工艺特点

你将通过4不同节点的剖面案例实操(台阶、跌级花池、跌级水景、景观亭),习得如何将平面转换成竖向空间,并掌握一套标准的剖面图画法。

▲ 课程案例
知识点: 竖向空间表达,剖面图画法

你将掌握大型设计院通用大样图的制图标准,并通过案例实操,掌握其底层逻辑,并举一反三地应用到其他项目中。


▲ 课程案例
此外,老师还会分享珍藏版自用超级构建库,50多类1000多个大样素材,施工图必备神器!

知识点: 制图标准,通用大样图绘图逻辑


你将学习植物,给排水,电气,结构专业的基本知识,了解多专业间的配合协同。详解乔/灌/地被植物平面图,绘制苗木表,植物放线,理清植物工程图纸逻辑。

▲ 课程案例( 植物施工图)
此外,你还将了解浇灌图纸,排水平面图,电气总平面图以及与各专业的配合。


最后完善好整套施工图纸(目录,设计说明,封面,总结要点)。

知识点: 植物/电气/给排水施工图,图纸完善


你将通过大型都市综合体及坡道公园2大案例,掌握方案总平面图设计与优化。


知识点: 总平面图优化,常见问题归纳
Q
15节课你可以干什么?
掌握一套完整的景观施工图流程
并熟练使用CAD绘制高标准高颜值图纸

本次课程为在线观看+课后答疑形式,共15节课, 从施工图基础理论到案例实操,并通过一个完整项目手把手教你绘制出一套标准、美观的施工图,了解其制作流程和底层逻辑。

授课形式
在【设计气象台】平台进行授课
随到随学,可重复学习
(无需等待,报名后立即学习)

咨询方式 :后台私信“课程”
版权声明:我们尊重原创。文字美图素材,由我方再整理,版权属于原作者。若涉及版权问题,敬请原作者联系我们,立即处理。