
© 舒赫
一千二百张床位的南京市公共卫生医疗中心位于南京东南方的青龙山,群山环抱。总建筑面积约十五万平米。

效果图 ©Lemanarc SA

平面规划图 ©Lemanarc SA
作为南京地区最具传统的传染病救治隔离生活区,这里山地复杂的地形、水系和植被状况使得即使普通项目的营建也会是困难重重。而如此规模的多种传染病医院和综合医院的共生体的设计,在全球更是极为罕见。

© 舒赫
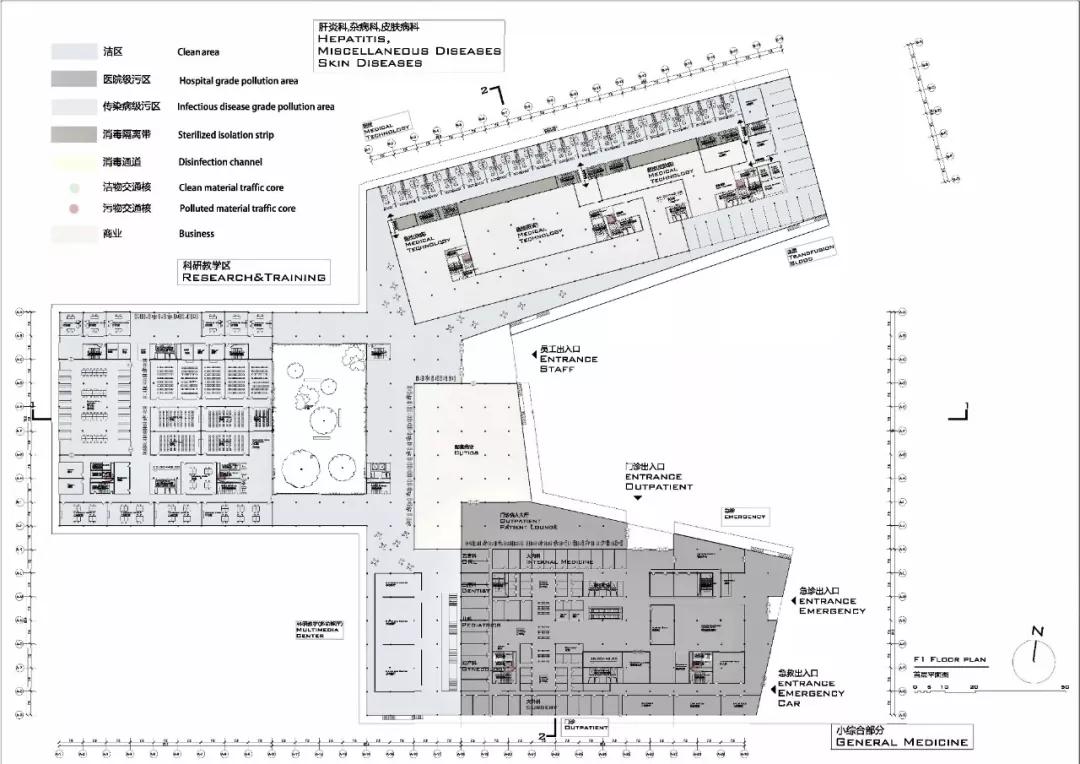
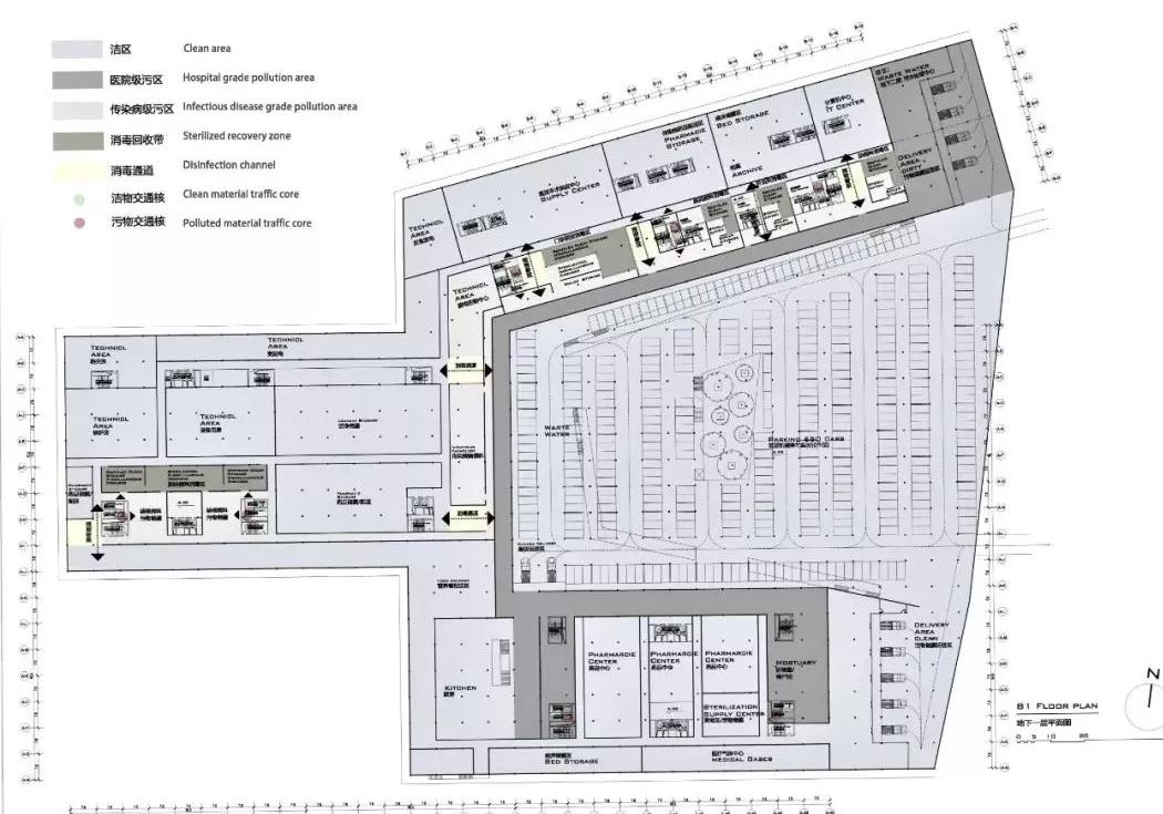
作为全球最大的传染病医院,建筑群包括一个处于下风向的结核病楼、一个多种接触类和杂病传染病楼,一个可独立运行的普通非传染病医院,这三栋楼组成了核心医疗区,三个病区的下部的由一个统一的医技服务块联结起来,其内部污染和非污染区严格分区、消毒分离。既分隔了各类不同传染病区,又实现了医疗资源的最大化集约利用。地下一层的洁净储存、消毒区和物流带对污染物实现了分区处理和统一管理。

© 舒赫
利用小山谷隔离设计的突发性传染病应急中心,保障了应对突发传染病时的自主封闭和安全扩张。北侧高处自成体系的员工休息区进一步保障了员工的安全。

剖面分析图
根据传染病医院的特点,从医院整体到每个科室和病房都做到了医患分离,洁污分离。污染区与非污染区分离。并且实现了不同种类传染病间污染区的各自分离和控制。

分析图

分析图
利用山地高差,建筑群怀抱中心区作为污染区,为医护人员及综合医院的普通病患提供了安全舒适的集散广场,并为综合医院清洁的独立运营提供了保障。而传染病患的出入流线则设计在外环道上以使得传染病患流线从入口开始的就相对隔离,从而为内部流线的深度分离提供了良好的外部条件。

场地平面图
最终,方案充分利用山地提供的屏障、高差、山形和水体,结合南京当地的风向、日照等自然条件,通过对多类型传染病救治管理特点的深入研究,成功地设计了既资源共享又安全独立的大型传染病医院。

© 舒赫

© 舒赫
波浪形轻盈的外遮阳系统既是节能手段,又为室内提供了柔和的光线和私密的氛围;环抱的山景及利用场地泄洪水系形成的平静的湖面交相辉映,带给患者安全感和对生命的向往,如同创世者关爱的怀抱。

效果图 ©Lemanarc SA
项目图纸

首层平面图

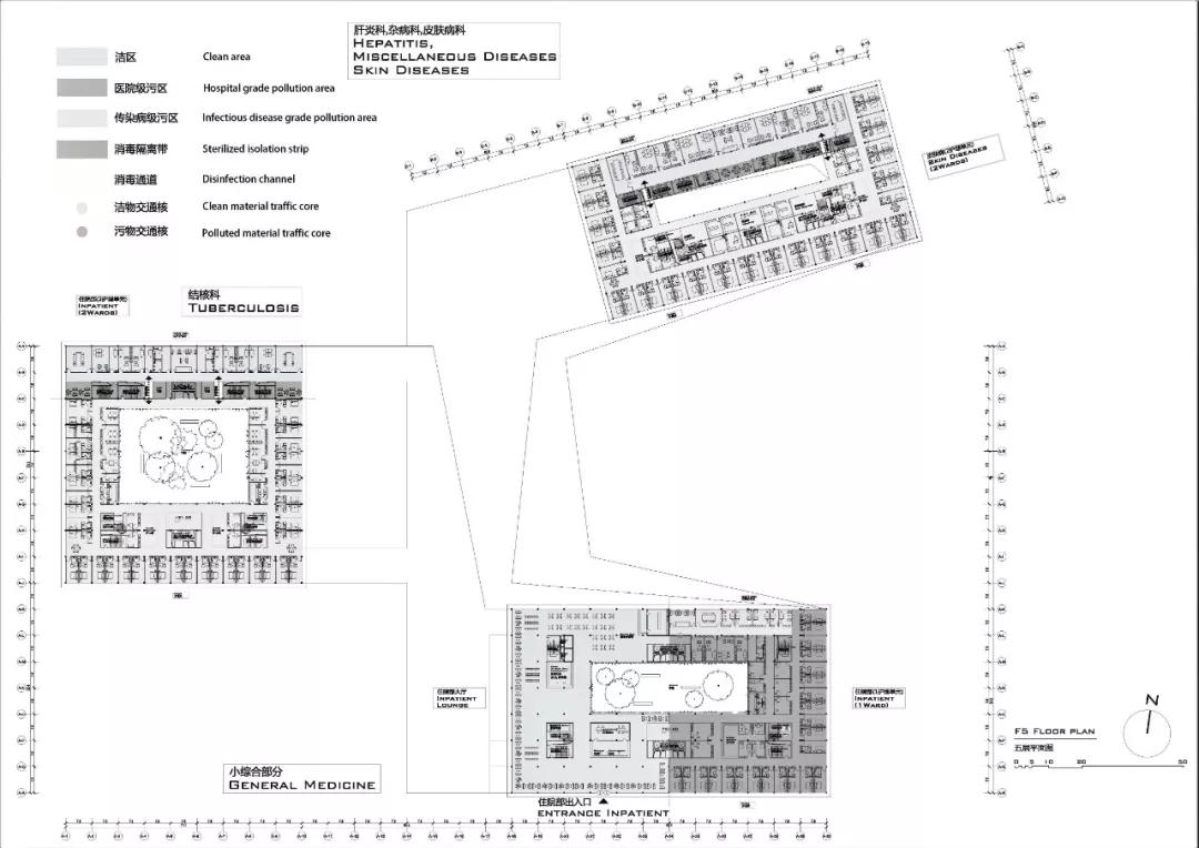
五层平面图

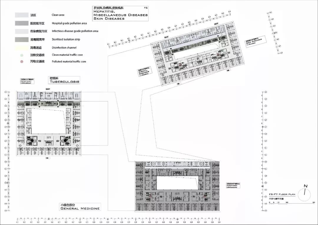
六层、七层平面图

地下一层平面图

立面图

立面图

剖面图

剖面细节
项目信息
建筑师:Lemanarc SA
地址:江宁区,南京,中国
项目年份:2016
建筑面积:149800.0 m2
主创建筑师:张万桑
摄影师:舒赫