目录
一、钢筋工程
二、模板工程
三、混凝土工程
四、砌筑工程
五、专项工程
1
钢筋工程
1.1 箍筋加工
基本要求:
1、箍筋成型尺寸:梁(柱)截面尺寸去掉二倍的钢筋保护层厚度。
2、箍筋 端部弯折 角度不 应小于135°,平直段长度要求:非抗震要求不小于5d,抗震要求不小于10d且不小于75mm。

1.2 钢筋直螺纹加工
基本要求:
1、采用砂轮切割机或半圆刀口钢筋切断机进行切割,保证钢筋端头平直,无马蹄口或偏头。
2、严禁使用普通钢筋切断机。

基本要求:
1、钢筋丝头螺纹中径尺寸的检验应符合通环规能顺利旋入整个有效扣长度,而止环规旋入丝头深度≤3p(p为螺距)。
2、钢筋丝头螺纹的有效旋合长度用专用丝头卡板检测,允许偏差≤1p。
3、直螺纹套丝完成后,必须安装保护帽进行保护。

1.3 墙体定位钢筋、柱定位箍
基本要求:
1、墙体水平梯子筋,固定于墙体顶部150-200mm处,用于控制立筋间距和位置。
2、墙体竖向梯子筋,采用比墙竖向钢筋高一规格钢筋焊接加工并可代替墙体竖向钢筋,每隔1.8米设置一道。
3、当墙筋直径大于16mm,可取消竖向定位筋,采用双F卡定位。卡子两端使用无齿锯切割,端头往里刷15mm防锈漆。
4、柱定位箍设置在楼面标高以上500mm处,定位卡钢筋中心间距为钢筋直径加3mm。


1.4 线盒预埋施工
基本要求:
1、对于墙体预埋的线盒为达到一次成型的效果,在墙筋施工时,线盒安装工序必须在柱墙钢筋绑扎完毕后,合模前进行施工,首先将线盒固定到位,然后贴膜,让线盒外表面与墙面平齐或比墙面略微凹入2mm左右。
2、选用纵、横双向各两根附加钢筋进行固定,附加钢筋可采用点焊方式进行固定。

1.5 预制垫块
基本要求:
1、梁底、板底垫块推荐使用混凝土预制垫块,不允许使用大理石垫块。
2、梁、墙侧钢筋保护层可采用双F卡、垫块进行控制。

2
模板工程
2.1 轮扣式脚手架
基本要求:
1、结构简单合理、使用方便、安全、储存、维护简单等特点。架体能够有效保证立杆间距、扫地杆件设置、步距及顶部自由端高度,同时在拆除墙面模板时较为方便,不会过早拆除其他杆件而影响架体整体稳定性

2.2 对拉螺杆
基本要求:
1、地下室外墙以及有功能要求的人防墙强制性采用新型三段式止水螺杆。
2、地下室止水螺杆孔洞采用防水砂浆进行封堵,内墙面封堵部位在刮白前必须刷防锈漆。
3、普通外墙螺杆孔洞采用1:2干硬性水泥砂浆(添加防水剂及膨胀剂)进行封堵,内墙螺栓孔洞采用发泡剂进行封堵。

2.3 洞口模板搭设
基本要求:
洞口模板根据图纸尺寸加工成定型模板,模板阴阳角处均用角钢与木模板固定,内部采用双排双向、菱形支撑,洞口模板下部设置排气孔,侧面加贴海绵条防止漏浆,浇筑混凝土时从洞口两侧同时浇筑,避免模板偏位。

2.4 阴角控制
基本要求:
双排钢管长短错开,双向钢管十字相交扣件锁死,阴角处2根木方横放,十字交错钢管加固阴角处木方,错边到位,空隙用木楔子顶严,第一道穿墙螺杆局墙200MM。

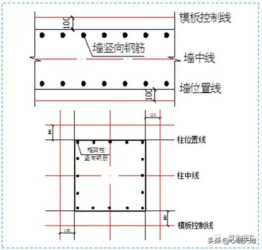
2.5 墙体定位线
基本要求:
1、剪力墙定位轴线和截面尺寸弹出双线(剪力墙边线和100mm控制线),若墙体模板采用钢模板,模板控制线可为200mm。
2、根据框架柱定位轴线和截面尺寸弹出双线(框架柱位置线和100mm控制线),若柱模板采用钢模板,模板控制线可为200mm

3
混凝土工程
3.1 混凝土浇筑标高及收面控制
基本要求:
1、泵浇筑时,采用有效地控制措施控制楼面高度,例如采用红外线激光水准仪实时控制,或采用定型测量模具进行控制。
2、混凝土终凝之前应及时对混凝土表面进行抹平压光处理,大面积采用压光机,细部采用人工铁抹子,以闭合表面裂缝。
3、预留洞口、后浇带、下沉板部位收面时,必须人工抹平。

3.2 施工缝处理
基本要求:
1、墙柱底部施工缝的处理:在混凝土强度达到1.2Mpa后,立即去除表面浮浆和软弱层,进行凿毛处理,并使剔除向下凹10mm,以保证混凝土接缝处的质量。充分湿润,但不得积水。冬季施工时,施工缝清理不得采用水冲,应使用气泵清理干净。
2、板施工缝的处理:应剔除松动的石子,疏松的混凝土,并充分清洁表面。
3、剔凿之前弹出剔凿线,确保剔凿边线顺直。

3.3 混凝土试块标养室
基本要求:
1、实验室由实验员专职管理。
2、实验室面积、布局、具体做法详见《中建二局东北分公司混凝土试块标养间详图》。
3、实验室需配置凝土试块恒湿恒温箱(空调、加湿器)、温度计、湿度计、振捣台、塌落度筒、台秤、试块模具、水箱、空压泵、试块架、铲子、记录工具、清洁工具。
4、要有湿温度记录,每天至少2次.混凝土试块制作间的温度为15~25℃。标准养护条件满足20±2℃,湿度满足95%以上。

3.4 混凝土试块制作
基本要求:
1、混凝土试块制作由专职人员负责。
2、混凝土试块标养在出罐处进行取样,同条件混凝土试块要在作业面取样.不得从罐车中直接取样。
3、混凝土试块上应注明:部位、试件编号、制模日期、强度等级。
4、同条件下凝土试块应放置在靠近相应结构构件或结构部位的适当位置(放在加锁的钢筋笼内),取相同的养护方法。
5、取样与试件留置数量应符合相关规定并满足实际需要;冬施期间应增加至少两组。
6、同条件试块笼采用¢6.5或¢8钢筋焊接,要求加锁封闭,尺寸为:长X宽X高=35cmX35cmX25cm,刷黄色油漆,并在标识牌。


4
砌筑工程
4.1 卫生间防水坎台
基本要求:
1、在厨房、卫生间、浴室等处采用轻骨料混凝土小型空心砌块、蒸压加气混凝土砌块砌筑墙体时,墙底部宜现浇混凝土坎台,其高度宜为150mm,宽度根据墙体设计宽度缩小1-2cm留设。
2、导墙支模时,为防止上部跑模,采用定型加工的木夹板或用木方和螺杆制作的夹具固定牢固,不允许使用步步紧加固。
3、导墙浇筑过程中,用小振捣帮振捣密实,并对导墙上部平面进行找平。

4.2 构造柱模板
基本要求:
1、构造柱支模时,采用钢管支撑、穿墙螺栓拉结,严禁在墙体中设脚手眼。
2、构造柱支模时必须考虑设置混凝土浇筑的喇叭口,喇叭口的剔凿在结构验收后再进行。
3、构造柱支模前在两侧贴
海绵条,防止漏浆。
4、模板用对拉螺栓固定,每排两根,对拉螺杆间隔500mm设置,模板应采用新模板。

4.3 马牙槎做法
基本要求:
1、填充墙构造柱两侧应砌成马牙槎,马牙槎凹凸尺寸不宜小于60mm,高度不宜超过300mm,马牙槎应先退后进,对称砌筑。
2、马牙槎尺寸偏差每一构造柱不应超过2处

4.4 砌体混凝土腰带及圈过梁模板做法
基本要求:
1、砌体混凝土腰带及圈过梁支模时,为防止上部跑模,采用定型加工的木夹板或用木方和螺杆制作的夹具固定牢固。
2、支模前在边部贴海绵条,防止漏浆。

4.5 过梁模板做法
基本要求:
1、砌体过梁支模时,为防止上部跑模,采用定型加工的木夹板或用木方和螺杆制作的夹具固定牢固。
2、支模前在边部贴海绵条,防止漏浆。

4.6 机电线管开槽
基本要求:
1、机电线管开槽时弹线,使凹槽位置顺直、准确,便于铺设及补强。
2、开槽时采用无齿锯按弹线进行切割,严禁*力暴**开槽。
3、空心砌块砌筑线管须采用暗敷形式,线盒开孔大小不应大于10cm。

4.7 砌体顶部砌块斜砌
基本要求:
1、砌筑墙体顶部一律采用小实心砌块斜砌施工,斜砌角度为30-60°。
2、砌筑墙体不允许一次到顶,防止墙体沉降出现缝隙。

4.8 二次结构墙体验线以及排砖图
基本要求:
1、砌筑工程墙体线弾设完成之后,项目部质检部应组织对墙体线进行按比例验线,并形成验线记录,保证墙体位置准确。
2、复核室内以及楼梯间等公用区域建筑一米线,保证门窗洞口标高正确。
3、砌筑工程开始前,根据图纸要求对二次结构墙体进行编号,配置相应的排砖图,并现场相应位置张贴,对工人实时交底。

4.9 抗裂网片铺设基本规定
基本要求:
1、砌体墙与钢筋砼接触处,应采取防止开裂的加强措施,当采用加强网时,加强网与各基本的搭接宽度不应小于规范要求。
2、挂网的材料可选用镀锌钢丝网、镀锌钢板网、耐碱纤维网格布等加强材料。
3、抗裂网片用钉子固定牢固。
4、抗裂网片本身若需搭接,其搭接宽度不小于100mm,固定后应保证网片平整、连续、牢固,不变形起拱。

4.10 砌体墙与墙侧连接
基本要求:
1、砌体墙顶与梁底连接处、砌体墙侧面与混凝土柱连接处必须铺设抗裂网,两边搭接不小于规范要求,以 200~300mm 为宜。
2、横向网片与竖向网片搭接宽度不小于100mm。
3、加气混凝土砌块转角处加强网的铺设和平面一样,均在两边铺设不小于规范要求,以200~300mm为宜。

4.11 砌体墙开槽处网片铺设做法
基本要求:
1、砌体墙上开槽处需埋设抗裂网片,每边宽度不小于 100mm。
2、开槽处周围 100mm 均需有抗裂网片。
3、横竖均开槽时,抗裂网片应相交出 100mm 以上的宽度。且横竖抗裂网片应分开设置,不能用同一抗裂网。

5
专项工程
5.1 后浇带
基本要求:
1、后浇带封堵处理采用钢丝网片配合木枋或者快易收口网。
2、后浇带止水钢板材质、厚度以及尺寸满足图纸要求,要求满焊,止水钢板凹槽朝向迎水面且闭合。
3、后浇带模板采用独立支撑体系,考虑后期材料清理及外运,应在架体适当位置采用斜撑。
4、后浇带封闭前清理干净,混凝土严格按照图纸要求施工。

5.2 梁柱接头不同等级混凝土控制
基本要求:
1、梁柱接头不同混凝土,采用快易收口网,收口网呈 90 度放置,配合周转背楞,可稳定收口网位置,并控制混凝土流向,在混凝土初凝前,将背楞取出,可周转使用。

5.3 下沉板
基本要求:
1、降板区高度小于 100mm 时,采用工具式角膜,不需要另加支撑,直接固定于降板区,定位要准确,不允许单独使用木枋。
2、降板区高度 100-300mm 之间,采用镜面模板后背木枋进行支模处理,用加设十字撑或焊接三角形支架进行支撑。
3、降板区高度高于 300mm 时,需要另行计算。

5.4 楼梯施工要点
基本要求:
1、楼梯梯段施工缝可留设在平台板的 1/3 处。
2、梯段板模板应采用斜面垂直式双排钢管支撑,严禁使用单立木耙式支撑。
3、楼梯踏步立板要与踏步面平齐(收面时注意控制标高),以防止踏步立板的纵向连接木方在混凝土面造成缺口。
4、对于楼梯混凝土的施工,要随打随抹,在振捣完成后进行第一次收面,在混凝土初凝前进行再次收面,保证楼梯混凝土成型质量。

5.5 定型钢楼梯
基本要求:
定型钢楼梯模板刚度好,整体搭拆,能保证楼梯踏步的成型质量,能到达清水混凝土水平。

5.6 外墙、电梯井接茬
基本要求:
1、为防止接茬部位墙体涨模,在下层墙体间隔500mm设置一道对拉螺栓。
2、上层支模前,在切割的水平面粘贴30mm宽双面胶带,加强模板与砼表面的密封性能,减少跑浆漏浆现象,保证接茬处质量。

5.7 框架柱模板支设
基本要求:
1、双槽钢抱箍加固适用于截面尺寸≥1200mm 框架柱,具有足够的刚度及稳定性,能可靠地承受浇筑混凝土的重量、侧压力以及施工荷载;
2、槽钢长度需根据框架柱截面尺寸确定;
3、双槽钢需提前加工制作,利用两根单槽钢焊接成整体;
4、以上设计参数仅供参考,柱体施工时需根据设计进行核算确定。

基本要求:
1、单槽钢抱箍加固适用于截面尺寸<1200mm 框架柱,具有足够的刚度及稳定性,能可靠地承受浇筑混凝土的重量、侧压力以及施工荷载;
2、槽钢长度需根据框架柱截面尺寸确定;
3、根据现场实际情况,确定槽钢螺栓孔位置及变化尺寸;
4、以上设计参数仅供参考,柱体施工时需根据设计进行核算确定。
