
说在前面
每个人对居住的需求不同,很多人都说装第一套房子会有很多遗憾,但是我觉得我这套装下来遗憾很少,前提是自己着实得多用点心,多看多问,少走弯路,以下三点是我对正准备装修的小伙伴一点建议:⭐第一步,明确自己装修的意向,很多人开始对这一块是模糊的,最好的办法就是,多看,哈哈哈,通过多看别人的案例,去知道“原来还可以这么弄”“这么弄真好”“这个风格我喜欢”!⭐第二步,最好能在当地,找一个擅长你喜欢设计方向,价位合适,贴心负责的独立设计师,因为他能够帮你把想要的效果落地呈现⭐第三步,在你有一个大致预算的前提下,去好好逛逛当地的建材市场,去看看你喜欢的电器,橱柜,瓷砖,门等等这些东西,不同品牌质量价格大概多少,到时候不会眼高手低,乱花钱,相信我,很有帮助的!
户型图

【户型3-1】原始平面图,建筑面积103,套内实际84,原来的房主整整弄了三个都带淋浴的卫生间,我把他们卫2,卫3敲掉,换成一个小主卫和衣帽间

【户型3-2】阴影部分是敲除掉的墙体,把主卧阳台包进来,同时卫1墙体后移,偷一点次卧的面积,让公卫面积勉强达到5个多平方

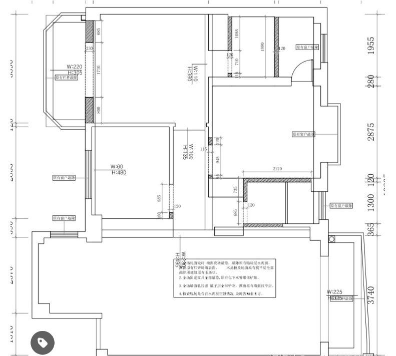
【户型3-3】最终的平面图呈现
玄关

【玄关2-1】不想一进门通视整个客厅,所以立了一个通顶的玄关柜,泥水工砌墙,木工现场打柜体

【玄关2-2】正对玄关柜的就是入户门,我全屋很多现场木作,然后贴科定的木饰面,柜门都是无把手的,里面装了反弹器,全屋五金都是自购的百隆 这张图能看到玄关和餐桌之间留了80公分的通过距离,我父母就住同一个小区,这套一般情况下只是两人居住
客厅

【客厅7-1】为了与最右侧柱体齐平,电视背景墙做了一个深度450的柜体,客厅一下大大增强了收纳


【客厅7-2】这张是木作完工后的电视背景墙,中间部分做浅,还未喷黑色哑光水性漆,吊顶上在灯槽前面加了一个幕布槽,我见过有住友把幕布槽放到灯槽里面去了,这样一开灯,黑一条,这点一定得注意

【客厅7-3】在淘宝上购买的定制幕布,要注意的是最好提前看好要买幕布的品牌,比如同样是120寸幕布,不同品牌幕布机子宽度不一样,像我就没考虑好幕布机两边的宽度,留的槽短了点,最后等比做了一个112寸的影辉拉线幕布

【客厅7-4】我客厅电视的视距只有3.5米不到,因此就买了一个65寸的*法大**,后面自购了一个nb的挂架,很稳,付了120让索尼售后帮忙挂号,都说没有带x芯片的sony是没有灵魂的,但是太好太贵的型号又买不起,还要买一个全黑边框的外观,看来看去就8588g适合我

【客厅7-5】说到电视后面做黑色质感的柜体都是泪水,返工了两次,第一次买错了材料,半哑光的多乐士喷上去这里亮一块那里亮一块,第二次福乐阁的黑板漆喷起来有点粗糙,最后用了嘉宝莉的哑光黑色水性漆,只花了600不到,前两次材料钱白花了快2000

【客厅7-6】客厅真的是家里除了主卧以外,最舒服的地方了,平时喜欢坐在地毯上用sony看4k电影,或者用极米h3落地的投影(最多1080p) ⭐在这里,强烈建议大家分配一点预算,在家里整一个nas,简单构建一个家庭影音库,不用为了看一个电影要辛苦去电脑*载下**到硬盘再插在电视上,不用为了下一个很大的电影要保持电脑长时间开机,还要忍受无比缓慢的*载下**速度,我自己弄了一个群晖的nas218+,里头存了10多个t的高清电影,把18年以前IMDB前250的电影打包全*载下**下来了,还有好多纪录片,美剧等等,看一个80g大小的狮子王的时候,那个毛都能看的清清楚楚,那感觉真的很棒,说实在的去买电视的时候,那么多电视放在一起,*放播**着4k的高清资源让我们来对比哪台电视好,对我们普通人来说为了追求那么一点的效果提升去多花大几千甚至上万,然后买回家,看所谓高清的新闻联播,或者爱奇艺里面一个电影1-2g大小所谓的蓝光,或者手机投屏,用两万的电视和5000的电视可能看不出有啥明显的区别,最能直接提升观影感受的还是要提高片源的质量!这也是我爱呆在客厅的原因

【客厅7-7】B&O A9 可能算是客厅使用频率最高的电子产品了吧,哈哈哈,无论是我还是媳妇一回家喜欢拿起平板通过airdrop或者蓝牙*放播**一下自己喜欢的音乐,话说回来可能1w多的价格,对于专业的发烧友来说有更好的选择,但是对我这种肤浅的人来说,好看!然后声音开大的时候,哇,那是真的很震撼~
厨房

【厨房12-1】我还是坚持做了开放式厨房,就是煤气差点不给改 只是觉得空间本就不大 二是生活饮食一直都相对少重油烟

【厨房12-2】看看原先厨房的样子

【厨房12-3】台面师傅现场打磨,如果石英石台面能量的很准确,减少现场打磨那最好,不然整个屋子都是灰,一定要注意好保护!千万~

【厨房12-4】岛台作为连接厨房和客餐厅的桥梁

【厨房12-5】我做面包的时候就在上面揉啊揉

【厨房12-6】在失败了好几个过后终于做出来一个好吃的,卖相好像还是不怎么样,不过还是要纪念一下取名:真·超重可可夹心吐司

【厨房12-7】壁挂的博乐宝管线机提前预埋了50管,进水管和电源线就做到全隐藏,管线机算是厨房使用频率最高的电器,随时都能喝到指定温度的水,不用再去接水烧,极大的便利~

【厨房12-8】在岛台的正下方安装了一个抽屉,和一个西门子13套洗碗机,空间很紧凑,不过刚好能放下,哪怕是两个人,我觉得也得用13套,哈哈哈,因为有锅,有时候朋友来根本还不够洗,洗碗机洗出来那感觉,哈哈哈,真的不一样



【厨房12-9】入了硕科的三代花岗岩双槽,跑遍整个市场,觉得真的喜欢这款的质感,唯一辛苦的是花了1个多小时自己装了下水,后期还因为自己在其中一个槽下接了垃圾处理器,自己又舍不得硕科自带的台控,自己又装净水,所以又研究了好几天怎么解决下水配件的问题,最后自己动手心头大患

【厨房12-10】因为厨房太小了,灶台左侧离柱子只有不到15cm,为了增加台面空间,特意去市面上找了这款方太的气电灶。 ⭐这里顺便说一句,传统的烟机灶具,我买之前没少看,除了不喜欢集成灶外形没去细细研究外,转了一圈,个人觉得还是方太老板的烟机灶具适合国人,烟机买的是em16t,我在厨房爆炒,餐厅都闻不到一点味


【厨房12-11】入住后的厨房开始有了烟火气

【厨房12-12】烤箱是这一排里最便宜的电器了,但是因为台面比较短,只有350不到深度,只有海氏这款容积大又能放下,一次可以烤两个450g模具的吐司或者一个8寸pizza,挑这个烤箱反而花了最多的精力。 ✔小米电饭煲便宜又好用,按搭配的量杯量米,就可以按内胆上的刻度加水,再加一两滴油,煮出来米饭粒粒分明~ ✔blendtec破壁机也是非常好用,刀头是钝的好清洗不怕划手,触屏控制程序式搅拌,自动控制榨不同东西的转速和时间,不用顾在边上,使用频率也是非常高,弄豆浆绵密无渣,口感比国产豆浆机的好~ ✔kenwood厨师机,质感很好,不过我都不敢高速和面,感觉要起飞啦,好像没有国产2000多的厨师机厉害,一定是我不会用
餐厅

【餐厅3-1】这是最初设计的效果图


【餐厅3-2】一入装修后就开始接触大大小小各种团购群,这张岩板餐桌也是跟着团购来滴,特别是这种造型的桌腿,真的是找了我大半年,可谓历经千辛万苦,不过到手后感觉一切都值啦,哈哈哈~ 尺寸是1.4*0.8,拉出来就能挤下6人,空间小没办法,两个人的时候是特别宽裕,媳妇喜欢在上面办公,感觉比较舒服~

【餐厅3-3】这是入住后的第一餐
阳台

【阳台3-1】原先水池的部分敲掉,把不锈钢防盗网也拆了

【阳台3-2】左边做了一个窄的储物柜,边上留下空间给洗衣机烘干机,唯一要注意的是要根据洗衣机烘干机管线和插座的位置做好提前开孔!不然安装橱柜的师傅走了,我是和水电师傅把橱柜艰难的拆开,才开好的


【阳台3-3】吊轨灰波隐藏门套的移门,也是耗尽精力,找个时间再单独好好和大家分享
走廊

【走廊2-1】走廊左侧做了一个通向书房的隐藏门,由木工现场打一个,我淘宝自购了两个亚固的隐形门合页,不到400,(开启<85°时能自动关闭,>时可以定住),最后木饰面贴皮

【走廊2-2】客厅从这个角度能一窥书房
书房

【书房2-1】现在还是空空如也,就一台笔记本,一个nas主机,以后慢慢添置~

【书房2-2】这张是书房的效果图
卫生间

【公卫3-1】公卫马桶上方装了一个大于的壁挂洗衣机,背后就是电视背景墙,按要求壁挂洗衣机背后的是厚度大宇22cm的实心墙体,我家不满足需求,所以索性把后面的墙敲掉,局部用钢筋水泥浇筑了一块来满足安装条件,另外为了美观和管线机一样提前预埋了50管在墙内,这样可以隐藏好进水、出水管和电源线 ⭐值得注意的是大宇二代和三代机子背部管线出来的地方还不一样,接下来有要预埋的朋友要注意了,做泥水的时候就要确定好机型,不然管子的位置埋偏了,洗衣机就不能居中了~


【公卫3-2】做悬空浴室柜的时候,最好能嘱咐师傅在关键的几个点打好膨胀螺丝,第一次我没注意,师傅固定点做少了,第二天直接掉了下来,后来亲自监督,看着师傅在正后方和侧面都打好膨胀螺丝,现在人站在上面都稳的很~



【公卫3-3】toto162b,这款马桶我觉得性价比很高,坐感也不错~不容易挂污
卧室


【次卧1-1】次卧很小,还被公卫偷了一些面积,因此就弄的简简单单,能睡觉就好~

【主卧8-1】果断把墙敲掉,阳台包进来,木作打底垫高

【主卧8-2】主卧是我觉得最舒服的地方~这个阳台朝向西南,以后小孩出生,可以让他趴在这里嗮太阳

【主卧8-3】在和媳妇去商场把床垫躺了一个遍,最后选了金可儿匠意,躺下去真的不想起来

【主卧8-4】这个黄铜的灯晚上开起来很有感觉~


【主卧8-5】家里的第二个隐形门放在了衣帽间~




【主卧8-6】在4平米不到的小空间里努力挤出来一个小的衣帽间,还兼具了一个小梳妆台。。。安装的时候我全程在场帮忙,真的太不容易了。。。

【主卧8-7】挡水条忘拆了

【主卧8-8】主卫因为空间不够了,做了一个马桶不设淋浴,加了个排气扇,这样跟衣帽间一门之隔,能做到没有水汽,没有味~ 唯宝萨泊威基本什么都好,就是有时候对男生不太友好,因为比较短,所以我还是习惯去公卫上toto ⭐衣帽间,主卫,厨房我都有在状态里发小视频,有需要了解的住友可以自行前往~