原创作者:张向荣
1、什么是钢板止水带?
混凝土结构中,地下室墙体施工中,如果底板和墙体分开浇筑,就需要留置施工缝。
施工缝:施工缝并不是一种真实存在的“缝”,它只是因先浇筑混凝土超过初凝时间,而与后浇筑的混凝土之间存在一个结合面,该结合面就称之为施工缝。

施工缝构造大样
一般施工条件允许,尽量底板就和墙体一起浇筑了,不需要留置施工缝。但施工面积较大,工程量较大,结构复杂的情况下,就需要底板与墙板分开浇筑,留置施工缝。
留置施工缝的墙体,此属于防水混凝土防水的薄弱环节,容易出现渗水现象,为了避免墙体出现渗漏水现象,就需要在施工缝的位置增加止水带。

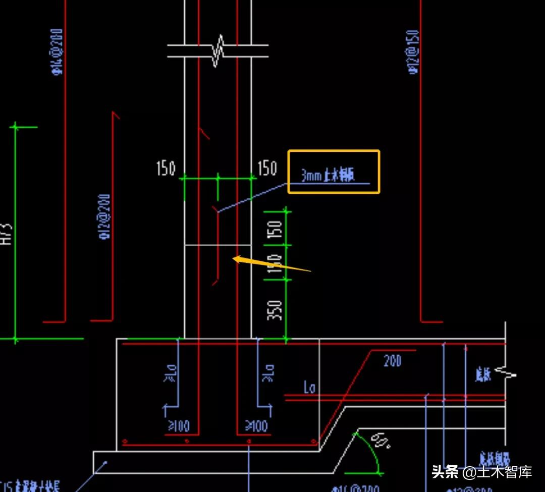
钢板止水带
钢板止水带就是其中一种,增加止水钢板后,水沿着新旧混凝土接茬位置的缝隙渗透时,碰见止水钢板即无法再往里渗,止水钢板有一定宽度,也延长了水的渗透路径,起到了切断水渗透路径的作用。

钢板止水带

外墙钢板止水带

外墙钢板止水带

后浇带钢板止水带
止水钢板的中心线与施工缝重合,并安装在1/2板(墙)厚的地方,新旧混凝土内各埋置一半,先浇混凝土再倒混凝土,以确保水平和垂直。
止水板燕尾的要求如下:上,下燕尾朝上,侧壁垂直施工缝面向水侧。将钢板搭接并焊接焊接面,钢板的相交处焊接有四个侧面。焊接的钢板是紧密的。如果发现焊缝不合格或渗漏,应进行修整或修理。

2、钢板止水带工程量计算
前面了解钢板止水带的概念,在看图纸时注意地下室工程的位置。主要留意:挡土墙施工缝位置,地下室底板后浇带位置、地下室顶板后浇带位置,挡土墙和基础位置施工缝。
如下图,都是止水钢板图纸节点。



钢板止水带的工程量,一般根据延长米计算,
用广联达软件做,通常是采用代码提量的方法。
方法如下,如果没有套用构件做法,可以批量选中挡土墙,查看工程量。


外墙的长度即是止水钢板的工程量。
还可以套用构件做法,工程量表达式选用YSCD(原始长度)。

最后在导出做法工程量汇总表里,就有所体现。
如果是后浇带的止水钢板,选用代码HJDZYBXZCD(后浇带左右边线总长度)即可。因为一般后浇带两侧都需要止水钢板,也可用后浇带在中心线长度*2。

如有特殊要求,要根据重量计算的
计算公式:7850*厚度*宽度*长度
(7850是指普通钢板密度)
计算出来是钢板的重量
例如:
3*300规格的止水带计算公式是。(3mm厚,300mm宽)
7850*0.003*0.3*1米 =7.065kg/m
关于止水钢板就讲到这里,还有补充的欢迎留言评论。
注:欢迎大家关注小编的微信公众号“土木智库”,里面有小编整理的建筑行业的众多资料,有一建、二建、造价、消防视频和课件,欢迎大家的加入