目录
01 / 华润悦玺
现代原木
生活是一幅画卷,夫妻、孩子皆是执笔者
02 / 绿野天城
复古不设限
没有固定章法的轻复古,热爱就是第一位
03 / 中洲锦城湖岸
现代日系
原木文艺风,住进日剧里的House

生活是一幅画卷,夫妻、孩子皆是执笔者
这是他们一家四口的新家,家里的两个宝贝年纪尚小,有许多新奇的事物等着他们,去探知,去学习,东西多了自然需要更多的收纳空间。并且他们需要具备成长性的空间,陪伴宝贝的成长而能够不断调整,改善。
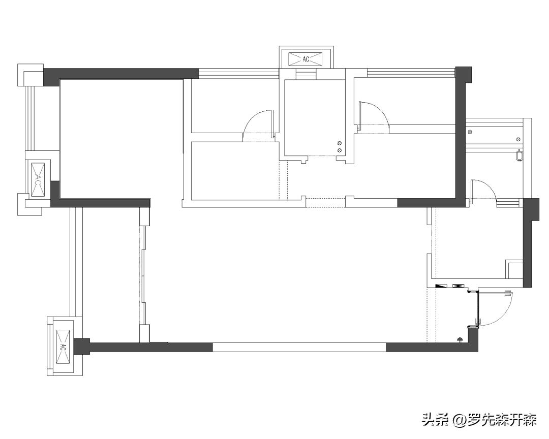
改造前
❶ 房屋拥有大面积窗户,采光条件比较好,但需要考虑隐私性
❷ 房屋结构具有比较强的可变性
❸ 厨房较小,能够提供操作的空间不足
❹ 二楼现有空间较小,利用率较低
改造后
❶ 楼梯移位:将楼梯移至客厅一侧,释放厨房空间的同时,在原楼梯位置增加了一个储藏间,收纳孩子以后的玩具及杂物。
❷ 客厅:楼梯移位后,客厅布局也变得更为合理。楼梯下方做木饰面装饰,并增加了隐形门,分割公区(客餐厅)及私区(卧室、多功能室)。
❸ 多功能房:打通1楼的卫生间与小房间,考虑为开放式的多功能房,将轻办公+亲子空间融入其中。
❹ 2F:客厅上空进行搭建,扩大二楼主卧的空间。并且,还打造了一间茶室,供屋主平日里的休息闲坐。
DESIGN



玄关配合简洁明快的色调,营造出简约大方而不单调的居家氛围。
弧形的墙面从入户延伸到公共空间的尽头,延绵流畅,仿佛一幅展开的画卷。以简单又具有体量感的设计,丰富了墙体的视觉化享受。
原始户型狭长的过道,暴露于入户的视野中。以木饰面与隐形门结合的形式,分隔公区与私区,也巧妙地缩短视觉距离。



以"家庭空间"作为核心概念,发现家庭在物理空间、精神空间和社会空间,三个层面上呈现出分化与融合两种趋势。设计师将家庭内部的典型的空间:客厅、餐厅、厨房,打造为相互联系的开放空间,让家人在生活起居时,能够感知到彼此的存在,增加家人的沟通机会。
客餐厅设计成横厅布局,餐桌、岛台临窗而起,让窗外的风景尽收眼底。餐前饭后,都能轻松惬意地晒晒太阳、喝喝茶、聊聊天。可以坐在窗边看外面的世界,或在餐厅欣赏夕阳下的美景。





二楼搭建后,满足套房卧室、茶室的功能需求。主卧足够舒适的面积,可以尽情享受大面积的落地窗。
梳妆台从衣柜的腰线中延伸出来,增加功能的同时,弱化视线的繁复感,将美观与实用协调在一起。推开一侧的隐形门,便是主卫及衣帽间。






没有固定章法的轻复古,热爱就是第一位
一个人的生活是什么样子。寂寞?无聊?无所事事?
一个人的生活其实能够精彩,自在。就同歌词里述说的那样:心情好or心情坏,有什么好假装……我要一个人在线梦见苏格拉底,我要一个人的通宵看完鲁迅的背影,我要一个人呆呆的在浴缸里思考阮玲玉……
改造前
❶ 原始房屋年代比较长,房屋基础差,有许多需要空鼓,老化的地方需要改善
❷ 一居室的户型,各空间虽然都比较方正,但房屋整体通透性不足,显得比较压抑
改造后
❶ 考虑到屋主作为单身住宅使用,我们设计了许多开放式的空间,让每个空间敞亮通达,在家里的行动变得顺畅,房屋越住越舒适
DESIGN



公共区域拆除了部分原始的墙面,将其设计为LDKG一体化布局,让客厅、餐厅、厨房、阳台融合在同一空间内,屋主的行动自由无阻,让家变得通畅明亮。
房屋顶部利用石膏骨头线的设计,在不降低房屋层高的情况下,增加顶部层次感,为空间营造出较为温馨的氛围,同时更加突出屋主的软装陈设。
空间拥有细微的变动,会让生活获得更为自在的欢喜,于是我们特意选择了体量较小,方便移动的沙发和电视等等,让屋主随时能将家调整为自己想要的状态,时刻保持对家的新鲜感。



并且顶面预留出灯带槽,未来如果需要加装投影幕布,这里刚好合适。家从而都不是一次性“商品”,规划出未来生活会出现的不可预料,也是设计师需要考虑的情况之一。



餐边柜+入户鞋柜形成L型的造型,尽可能满足功能需求的同时,为空间留出舒适的居住尺寸感。
金属隔板,为温馨柔美的空间带来精致与硬朗,两种截然不同的感觉组合在一起,没有突兀,更多是一种惊喜感。金属隔板上,摆放各式各样的杂物,既实用又美观。
小圆餐桌不仅能够摆放日常用餐所需食物,还可以根据个人喜好放置一些装饰品或物品,增添生活气息。即使是想要拍照分享自己家的美貌,也是很好的选择。





厨房优化为开放式厨房,原始厨房水槽的位置,改为厨房&盥洗区双用的岛台。不但增加了厨房的操作面积与储物量,也不会占用过多地方,使整个公共区域显得宽敞整洁。
木饰面上安装的壁灯,显眼地写着“Daydream Island”的字样,寓意家,便是屋主彻底轻松自在的梦想岛。


原始卧室门洞的位置,成为了盥洗台的位置。卧室的门洞改在客厅位置,大面积双方格玻璃的折叠门,成为划分主卧与客厅的界限。
平时可以将房门打开,让整个空间更为宽敞通透。睡觉或有好友聚会时,关上房门便形成隐私空间。这样做一方面可隐藏自己的隐私空间,另一方面也给屋主一个安静和谐的睡眠环境。






原木文艺风,住进日剧里的House
家庭人口增多,房屋的空间也越发不足,早出晚归的屋主夫妇,两个需要照看的宝贝,如何调节这样常见的生活问题?
这套房屋的屋主选择在居住同小区购置了第二套房屋,工作日的时候,方便父母来照看一二,解决工作与带娃的选择。
改造前
❶ 原始户型动静合理,充足的通风采光面积
❷ 房屋赠送空间很多,也导致了隔墙很多,但对于6个人的生活,空间大小还是过于局促
❸ 整屋只有一个卫生间,对于6个人的生活,压力比较大,于是如何合理规划卫生间的功能结构,成为重点之一
❹ 厨房和生活阳台的面积都比较局促
改造后
❶ 客餐厅设计了整面墙的多功能柜体(实木定制柜体),保障一家人的收纳需求与多重功能
❷ 厨房与生活阳台连通,增加厨房的开阔性
❸ 阳台设计了地台,嵌入了榻榻米形成休闲+亲子互动+儿童玩乐的区域
❹ 重新规划卫生间空间,规划成四分离空间。双马桶设计,需要延长下水管道,为了减缓下水的隐患,选用了壁挂式马桶。双洗漱台,也很是个一家人的起居室使用,缓解厕所压力
DESIGN



房屋餐厅与客厅连通,整个公共区域宽阔敞亮,一整墙实木定制柜体,规划了多重功能,为屋主一家提供丰富的储物系统与使用功能。两扇白板柜门可以提供给家里的小宝贝随意绘画,陪伴宝贝们的成长需要。推开白板门,电视机隐藏其中,为客厅提供娱乐功能。
屋主一家有在家写字、画画、办公等习惯,设计师为了让屋主一家拥有随处都可以书法、办公的环境,引入了“全屋即书房”的理念,屋主一家不仅可以在餐桌上进行操作,定制的柜体里也隐藏着办公桌板,需要时打开柜体,抽拉出来即可成为办公桌板。









安定而宁静,素净的茶室和敞亮的空间,停歇在一方天地,体会生命的诗意律动。设计师抬高阳台,做了榻榻米茶室,仿佛进入了日剧传统庭院。
樟子门开合间,或连接或隔断与客厅的联系,极具古典雅韵,原木地台铺上榻榻米,与空间的氛围相呼应。同时,屋外的阳光透过樟子门延伸至客厅,给室内空间获取更多的自然光线。
榻榻米空间的定位是一家人休闲+亲子互动+儿童玩乐的区域,软垫的加持,使家里两个宝贝的玩乐足够安全。角落处的柜体设计成地柜+吊柜的形式,中间安装了休闲的沙发位,让茶室的功能更丰富,为屋主提供看书的一隅。






男女主人对于睡眠的舒适感有着自己的喜好选择,他们根据自身的舒适度选择舒适的床垫,让双方都会得安心舒展的睡眠感受。
木饰面床头上设计了一扇隐藏的桌板,使得它可以不受阻碍地将卧室变成一个多功能的工作空间。 放下桌板后,卧室里就拥有了一张可以供工作或学习的桌子,可以把书本、文件和电脑都放上去。
这种新的布局可以让屋主有更多的空间来做自己想做的事,而且比起单纯的卧室,这种设计更加有利于创造性思维的发挥。



宝贝们的成长,总是让人感受到时光的流逝。
为了达到宝贝舒适的睡眠、学习尺度,并且长期使用舒适的空间,儿童床+衣柜+书桌设计为一体,节省出更多的卧室空间。

原始房屋是单卫生间的布局,对于日常6口人的活动空间,使用空间远远不够。
设计师设计了卫生间与儿童房之间的布局和开门方向,规划成四分离空间。双悬挂式马桶+双洗漱台,适合一家人的起居室使用,缓解厕所压力。


#夏日生活打卡季##头条文章养成计划##暑期创作大赛##家居##装修##成都头条#
