面积:138㎡
风格:现代简约
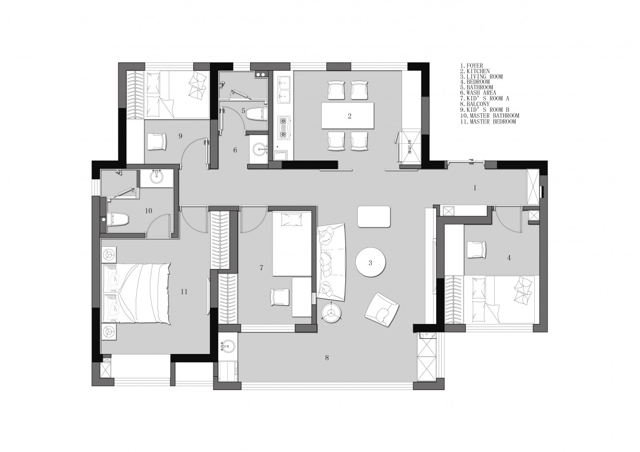
业主需求:考虑到两个孩子均已上小学,对独立空间的需求较高,因此在设计中需要考虑4个卧室的全利用率,除去主卧和两个儿童房外,第四个卧室作为客房及书房的功能。
设计方案:1、将餐厨空间合并,形成中西厨位列东西两侧,餐厅居中的布局。使空间更为开阔,机动性更强。
2、将主卧房门改至南侧,既避免了走廊尽端是门的感受,同时规避了北卧门正对卫生间台盆镜面的尴尬。
3、将主卫墙体南移,拓宽卫生间面积,并将主卧与隔壁儿童房的隔墙设为S型墙体形成双向的空间互借,满足双侧空间的收纳需求,避免主卧侧向衣柜压缩主卧空间影响居住舒适度。
从客厅视角去看,沙发后面深色的木饰面延伸至走廊,左侧采用灰色艺术漆形成粗犷肌理感,玻璃砖小窗为内部儿童房增加了趣味感与神秘感。餐厨合并后的空间更为开阔,可以满足多人就餐的需求。西厨区,黑白配色营造出现代硬朗氛围,原木色的椅子充当了空间的调和剂。东侧客房兼顾了书房的功能,深色的柜体使人产生安静情绪,儿童房采用分色半墙处理,并用灯槽形成落差,塑造立面变化,主卧延续了公共区木饰面配色,搭配灰色布艺墙板传递质感。








