您的家装顾问小珅 小珅居家装设计 今天
雪化后那片鹅黄,你像;
新鲜初放芽的绿,你是;
水光浮动着你梦中的期待的白莲。
你是一树一树的花开,
你是爱,是暖,
你是人间的四月天。
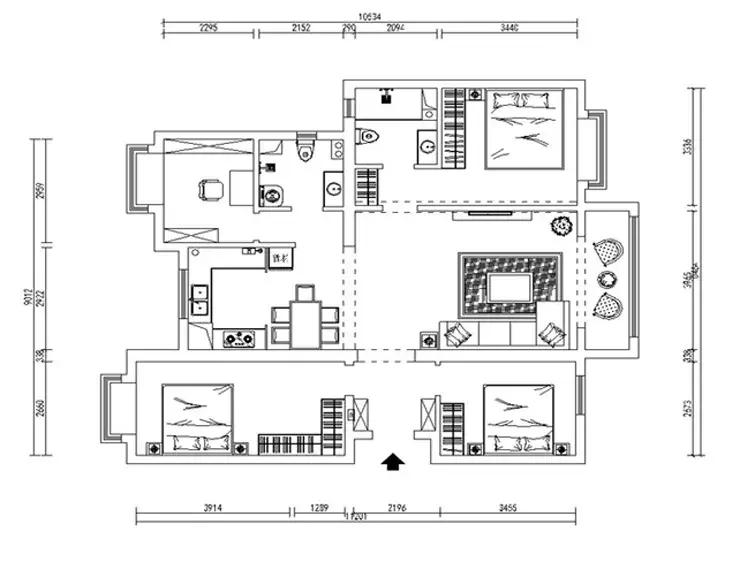
世茂五里河 155平 田园美式风格
案例风格美式案例户型三居案例面积155平米楼盘名称世茂五里河设计师罗佳案例类型改善性住宅
设计理念:世茂五里河155平三居室林凤装饰设计采用美式田园风格,随意不过分张扬,而又恰到好处地把田园风所特有的清新之气渗透到每个角落,既突出房子本身的建筑美感又适当彰显业主个人的独特品味。




世茂五里河155平3居室美式风格林凤装饰的客厅以仿照木梁尺寸的石膏板边棚以及米黄色的硅藻泥墙面为基础装饰,褐色的仿古砖搭配,蓝棕条纹的布艺沙发,家具的陈设让整体色调趋于清新、简单,完美的营造出甜蜜而温馨的生活风格。

的世茂五里河155平3居室美式风格林凤装饰餐厅造型呼应客厅的整体风格,浅褐色桌面的餐桌,白色的椅背,体现了田园亲近自然的氛围,棚面的造型以田园风格特有的直线边棚为主,整体搭配会给业主一种贴近自然感觉。

世茂五里河155平3居室美式风格林凤装饰的卧室,没有做过多的造型,米黄色的墙面颜色,米白色的地板,黑色床品的搭配使整体色调趋于安稳,而墙面与地板颜色的搭配,整体提升卧室的暖意,使人的睡眠环境安静,祥和。

世茂五里河155平3居室美式风格的卫生间,选择了最近几年比较流行的AB上下版的瓷砖,颜色上以深黄浅黄色搭配,亲近自然,结合自然,又整体提升了卫生间的暖意,使得业主不会感觉到水的寒意,充分享受自己的沐浴时光。

世茂五里河155平3居室美式风格的厨房设计上设计师运用温馨的色彩搭配,白色的橱柜选择使原有的厨房空间得到了更大的视觉空间,在美观的基础上有多了更多的使用功能,米白调的设计也使厨房空间更加温馨。

围脖:宋大人吖
一个专注家装的公众号
公众号:小珅居家设计
VX:sgs960329
call:18940095835