开关插座虽小,但在日常生活中承担着重要角色,这个道理大家似乎都明白,所以大家在装修时也愿意在开关插座上多花点钱,毕竟事关日后使用,而且开关插座在日常生活中的使用频率也很高。钱花了,精力也花了,可在实际使用中还是会发现一大堆问题,例如当初花大价钱买的开关插座其实并不好用、有些地方漏装插座了、插座安装高度不合适、有些插座装了从来没用过等等,这些问题当初装修时都没考虑到,但在实际使用中都一一暴露出来了。

以上问题很多小伙伴可能都曾遇到过,我自己也不例外,所以这次新房装修前我花了不少精力在开关插座方面上,也算是做足了功课。开关插座的质量和安装布置将极大地影响日后的使用,所以说装修时选购开关插座这一步显得尤为重要,而质量好的开关插座要是没布置好,那也是白搭,所以开关插座的选购和安装布置是一样重要的,两者是相辅相成,缺一不可。
下面就和大家系统地分享下开关插座的选购以及安装布置需要注意的一些要点,尽可能地帮大家避免踩坑、后期使用没遗憾。
Part 1:开关插座怎么选
关于品牌

家家户户装修都少不了开关插座,而且全屋所需数量也不少,所以在开关插座这块也是各大电气厂家的必争之地,行业竞争相当激烈。不光开关插座的品牌多得让人眼花缭乱,而且每个品牌还推出了很多系列,在价位、材料、样式、颜色等方面有所差异,作为消费者的我们真的是无从选择啊。
那就先来说说开关插座的品牌吧。目前市面上的开关插座品牌无非就两大阵营,一个是进口品牌,还有一个是国产品牌,虽然归根到底都是国内工厂生产的。其实很多开关插座品牌都是大家耳熟能详的,一些国际大牌也都有涉足开关插座这块业务。根据各大开关插座品牌的口碑和销量,这里给大家推荐10款知名度相对较高的开关插座品牌,进口品牌阵营推荐松下(日本)、西门子(德国)、施耐德(法国)、立维腾(美国)、西蒙(西班牙),国产品牌阵营推荐公牛、飞雕、德力西、正泰、欧普。以上只是我个人推荐的10个品牌,并不代表其他品牌的开关插座不好,我觉得选购开关插座时尽量选择知名品牌的购买,预算充足的话可以选择购买进口品牌的开关插座,开关插座虽小,但也是有一定技术含量的,那些国际品牌的研发力量是国产品牌无法比拟的。
关于种类

接着来系统地梳理下到底有哪些种类的开关插座,这里主要根据开关插座的用途来分类。
插座类: 首先来说插座,家用插座按电流分一般可分为10A、16A,普通插座都是10A的,空调、热水器等大功率电器需要使用16A的插座。插座有三孔、四孔、五孔之分,还有带开关的插座,建议厨房可安装带开关的插座,这样可以避免一些小家电的频繁插拔。最近几年,带USB的插座也越来越普及了,这次我也购买了带USB的插座,可以方便地为数码设备充电。
开关类: 除了插座,用到最多的就数开关了。开关可分为一开、二开、三开、四开,另外还有单控和双控之分,甚至还有多控开关。常规的就是单控开关,也就是一个用电设备只能由一个开关控制,双控就是一个用电设备可以由两个开关来控制,其实家里很多场景都需要用到双控开关,例如卧室里的主灯,门口和床头的开关都可以控制,双控开关略微会比单控的贵一点。
弱电类: 除了常规插座,还有一些弱电插座。弱电插座主要包括电话、电视、电脑等接口插座,有单独一个的,也有二位组合的,推荐购买二位组合的弱电插座,既节省位置又美观。弱电插座相比普通的开关和插座在价格上要贵不少,所以在安装布置时要考虑周全,如果家里不打算安装电话和广电电视,那么电视和电话的弱电插座可以取消掉,这样可以省下不少钱。
电子类: 电子类开关普通家庭一般用不到,不过这里也提及下。电子类开关有调速开关、声光控开关、触摸延迟开关等,调速开关用于控制吊扇,声光控开关和触摸延时开关一般用在电梯厅、楼梯等公共部位,另外还有一些影音方面的控制开关。
配件类: 除了以上这些开关插座外,一些配件也是必不可少的。用得最多的就是开关插座的暗盒,每个开关插座都要用到的,开槽后就要预埋好暗盒。其他还有防水盒、空白面板等等,实际可以根据需求来购买。
关于安全

开关插座都是与交流电接触的,所以其安全性显得尤为重要,尤其是插座。插座的安全性可以从保护门、载流件、接线端子、阻燃性等几方面来一探究竟。这次新家装修需要的开关插座已经买回来了,拆解一个斜五孔插座给大家看看内部结构。

现在的插座都是有保护门设计的,上图红框中的就是保护门,设计的初衷就是为了防止孩子把异物插到插孔中引发意外,有了保护门后,两个插孔同时受力后才会打开。保护门一般都是PA66材质的,弹簧可使保护门自动复位。看似简单的保护门,好坏差别也挺大的,家里之前安装的部分插座就因为保护门的缘故插入时需要费很大的劲。之前安装的是德国某品牌的插座,在保护门这块体验不佳,所以这次弃而不用,选择了这个来自美国的立维腾,实际试验了下,保护门松紧程度恰到好处。

这是插座内部的载流件,一般选用锡磷青铜、红铜、黄铜等材料,市面上主流品牌的高端系列插座基本都是选用锡磷青铜的,锡磷青铜各方面的性能要优于纯铜。评判一款插座质量好坏,其实载流件的质量是关键,我们可以从铜件厚度、韧性、抗氧化性、一体式这四大指标来看,铜件厚说明导电能力强;韧性强的铜件插套可以保证长时间使用不变形;抗氧化性能较优的载流件可以避免因生锈而导致电阻增大,从而杜绝发热现象;一体式的铜片性能肯定优于铆接式的,导电性能会更佳。以上这些都需要把插座拆解后才能看到,上图就是立维腾插座的载流件,采用了一体式铜片。

说到安全肯定要说说开关插座的接线方式,接线方式无非就是螺钉压线、压板压线、鞍型端子接线这三种,上图就是鞍型接线端子,早几年的开关插座基本是采用螺钉压线的,弊端就是容易把电线压断;压板压线可以增加与电线的接触面,但是对于较粗的电线接起来会比较费劲;所以相比而言,还是鞍型接线端子使用起来最为方便, 夹线 更紧且不伤线,而且也最为安全。
还有开关插座的阻燃性,其实有很多火灾都是由插座引起的,所以开关插座的阻燃性不可忽视。一款开关插座的阻燃性如何关键要看外壳材料的材质,一般主流品牌的开关插座都会采用PC料的,一些高端系列还会采用进口PC料,例如德国拜耳的,PC这种材料的阻燃性很好。一些低端开关插座则会采用ABS料和PA66料,两者不管是阻燃性还是其他方面性能都要比PC料差。
关于颜值

每个开关插座品牌都会推出多个产品系列,除了用料、功能等区别外,主要就是外观和颜色上的不同了,其实就是我们所谓的颜值。开关插座的外观大致有简约型、时尚型、奢华型等等,颜色更是多种多样,当然最多的还是白色,至于怎么选关键还是要看家里的装修风格和个人喜好,毕竟颜值这个事主要还是看个人的审美观念。我比较推荐大家购买白色无边框的开关插座,不仅颜值高而且耐看,这次新家装修购买的立维腾开关插座就属于这种无边框设计,十分纤薄,可以很好地融入各种家居装修风格。

上面主要是从开关插座的品牌、种类、安全、颜值这四个方面来讲述开关插座选购时的注意要点,当然其他还有不少值得关注的要点,如果全部展开讲的话没几万字估计也讲不完的,所以其他一些要点这里就一笔带过了,其他值得关注的还有插座错位设计、底座物理分隔、固定支架强度、翘板触点、开关按键手感、3C认证等等。
以上都是选购时需要注意的要点,下面再给大家理理选购的思路。首先要定好预算,有了预算开关插座选购起来才更有目的性。接着根据预算来挑选,你可以把几个主流品牌的开关插座都大致看一篇,一遍看下来你心里大致也有底了。然后可以根据我上面提到的一些注意要点来深入剖析下这下开关插座,看看是否经得起推敲,没问题的话就可以放心购买了。推荐大家选择主流品牌的开关插座购买,预算充足的可以选择进口品牌。关于开关插座的质量问题,首先市面上正规销售的产品都是是符合国家强制标准的,不过在使用寿命上肯定是存在差别的,毕竟开关插座也是一分价格一分货的。
Part 2:开关插座的安装布置
最佳安装高度

首先来说说开关插座的安装高度,上图是网上流传比较广的一张开关插座安装高度建议图,图中给出了一些常用开关插座的建议安装高度,具有一定的参考性,当然大家也可以根据实际使用需求进行适当的调整。常规的灯具开关安装高度一般在1.3米~1.4米之间,床头开关一般在0.8~0.9米之间;墙面插座的安装高度常规都是0.3米,电热水器、油烟机的插座可以隐藏到吊顶上面,平时正常使用也不会去插拔;壁挂空调插座安装高度一般在1.8~2米之间,需要安装16A插座;厨房插座一般安装在距台面0.3米的高度,建议选择带开关的五孔插座,避免频繁的插拔;厨房地柜和吊柜中的插座安装高度建议跟专业的橱柜设计师沟通后再定。
那些容易被忽视的问题
1、插座错位设计

传统五孔插座中的两孔和三孔都是上下对齐的,不过这些年越来越多的厂家开始推出斜五孔插座,斜五孔插座相比正五孔插座确实有很大的优点。传统的正五孔插座间距较小,如果插头稍大些就有可能出现无法同时使用的现象,而斜五孔插座彻底解决了这个问题,两孔和三孔上下错开了,两者的间距增大了很多。这次购买的立维腾开关插座中,正五孔和斜五孔这两种类型的插座都有,所以特意买回来给大家对比展示下。在左边的正五孔插座上,两个插头大小刚刚好,只要任意一个稍微再大一点,就无法同时使用了;而在右侧的斜五孔插座上,两个插头之间还有不少间距,即使插头再大点也无妨,完全不会影响同时使用。

实测下正五孔和斜五孔两种类型插座的插孔间距,正五孔间距为17mm,斜五孔有22mm,足足多出了5mm。别小看了这5mm,就是这么点差距可以让日后使用时变得更加方便。
2、建议预留插座

在开关插座那些事儿上,很多小伙伴装修时自以为考虑得很周全了,但在实际使用中,或多或少会存在漏装的现象,这会给日常使用带来极大的不便,这点我深有体会,虽然可以使用插线板,但插线板并不是万能的,所以关于插座的安装布置一定要深思熟虑。下面给大家分享10个建议预留插座的位置,大家可以根据自家的实际情况来判断,尽量避免漏装的遗憾。
●马桶旁:这个是老生常谈的地方了,不管你近期有没有打算安装智能马桶,建议还是预留插座,谁都不确定几年后智能马桶会普及到何种程度;
●厨房水槽下:这位置一定要装,而且建议装两个五孔插座,水槽下要装的电器太多了,净水器、垃圾处理器、小厨宝每个都要用电;
●弱电箱:靠谱的精装设计师一般都不会漏下,建议装两个,光猫和路由器都要用电;
●玄关处:可以把插座安装鞋柜台面上方,这个插座的用处还是挺大的,可以给手机充电,或者插个小夜灯,还可以在此处放置一个安防摄像头;
●沙发旁:根据沙发宽度来预留插座,在日常生活中可以给落地灯、手机等供电,如果你打算购买电动沙发,那就更要考虑预留插座了;
●电视机柜旁:电视机背面一般都会预留好几个插座,但大家往往会忽视电视机柜旁的插座,建议两侧各安装1~2个插座,日后可以给空气净化器、扫地机器人、吸尘器等家用电器供电;
●浴室柜旁:在浴室柜上方建议预留插座,这样日后使用电吹风时就会方便很多,同时建议加装防水罩;
●窗帘旁:如果日后你打算安装电动窗帘,那么装修时就要考虑在窗帘盒旁预留好插座;
●飘窗旁:飘窗是个很惬意的设计,但别忘了在飘窗旁预留一个插座,这样以后在飘窗上喝茶、阅读、工作都会变得更加方便;
●天花板:天花板上预留插座主要考虑安装摄像头和投影幕布,如果后期有这个需求,在装修时可以提前预留好插座。
插座安装布置实例分享

最后跟大家分享下插座安装布置的实例,其实就是我即将开始装修的新房。我们这边县级市房价还算便宜,均价还没迈入2W大关,所以之前看准机会把孩子读书的学区房买了。前几个月终于交房了,也不急着入住,所以这次打算慢慢装修,装修设计图基本是敲定了,关于开关插座的布置也改了好几次了,这次要力求完美、不留遗憾。下面就和大家一起分享下,其实开关没啥好多讲的,主要还是插座的安装布置,每个房间的插座布置都有一定的特点,下面就按房间来逐一分享。

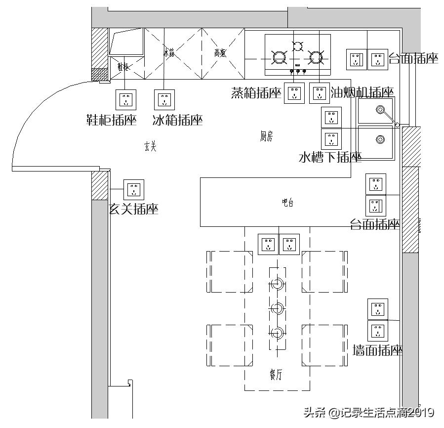
玄关: 进门左手侧鞋柜台面上布置一个五孔插座,我打算在这里安装一个智能摄像头。
厨房: 在台面上方布置两组五孔插座,每组两个五孔插座,其中一个带控制开关,可以避免频繁插拔。水槽下方预留两个五孔插座,主要给净水器和垃圾处理器使用。燃气灶下方布置一个五孔插座,留给蒸箱使用,此处吊顶上方预留五孔插座给油烟机使用。另外,放置冰箱的位置插座也不能落下。
餐厅: 在餐桌旁布置两个五孔插座,以供火锅、烧烤炉等电器使用,如果餐桌是不靠墙放置的话,也可考虑设置一个地插。在餐厅的墙面上再布置两个五孔插座,以备不时之需。

客厅: 电视背景墙上需要不少插座,我布置了两个五孔插座,外加网络和TV接口组合插座,虽然现在的机顶盒都支持无线连接的,不过还是留个网络接口比较放心。沙发旁布置两个五孔插座,其中一个带USB接口,可以方便地为数码设备充电,另外再加一个网络和电话接口的插座,沙发旁插座布置时一定要考虑沙发宽度,以免后期挡住。客厅角落布置一个16A的三孔插座,用于给立式空调供电。墙面再布置两个五孔插座,日后可以留给空气净化器、扫地机器人等家用电器使用。弱电箱设置在电视机旁边的壁柜中,这里布置了两个五孔插座,用于给光猫、路由器等网络设备供电。


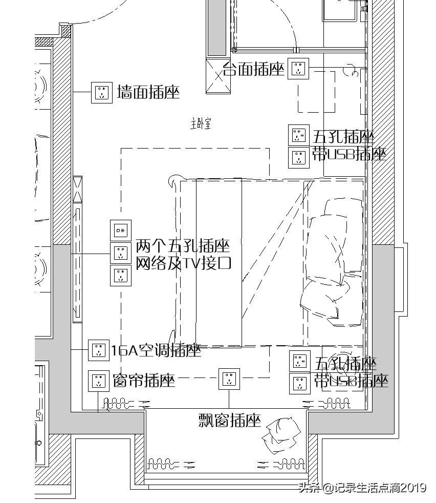
卧室: 床两侧各设置两个五孔插座,其中一个带USB接口,插座位置要根据床的宽度来布置,以免出现被挡住的尴尬。电视机旁布置两个五孔插座,外加网络和TV接口组合插座。两个卧室我都打算安装壁挂空调,所以在安装空调处距地1.8米处布置一个16A插座。我考虑后期安装电动窗帘,所以在窗帘盒旁预留了插座,建议大家也可以预留这个插座,毕竟现在智能家居越来越普及了。主卧室的飘窗下布置了一个五孔插座,这个很有必要,以后在飘窗上使用电器会更加方便。另外,墙面上的插座大家可以实际需求来预留,建议每面墙上最好都预留有插座。

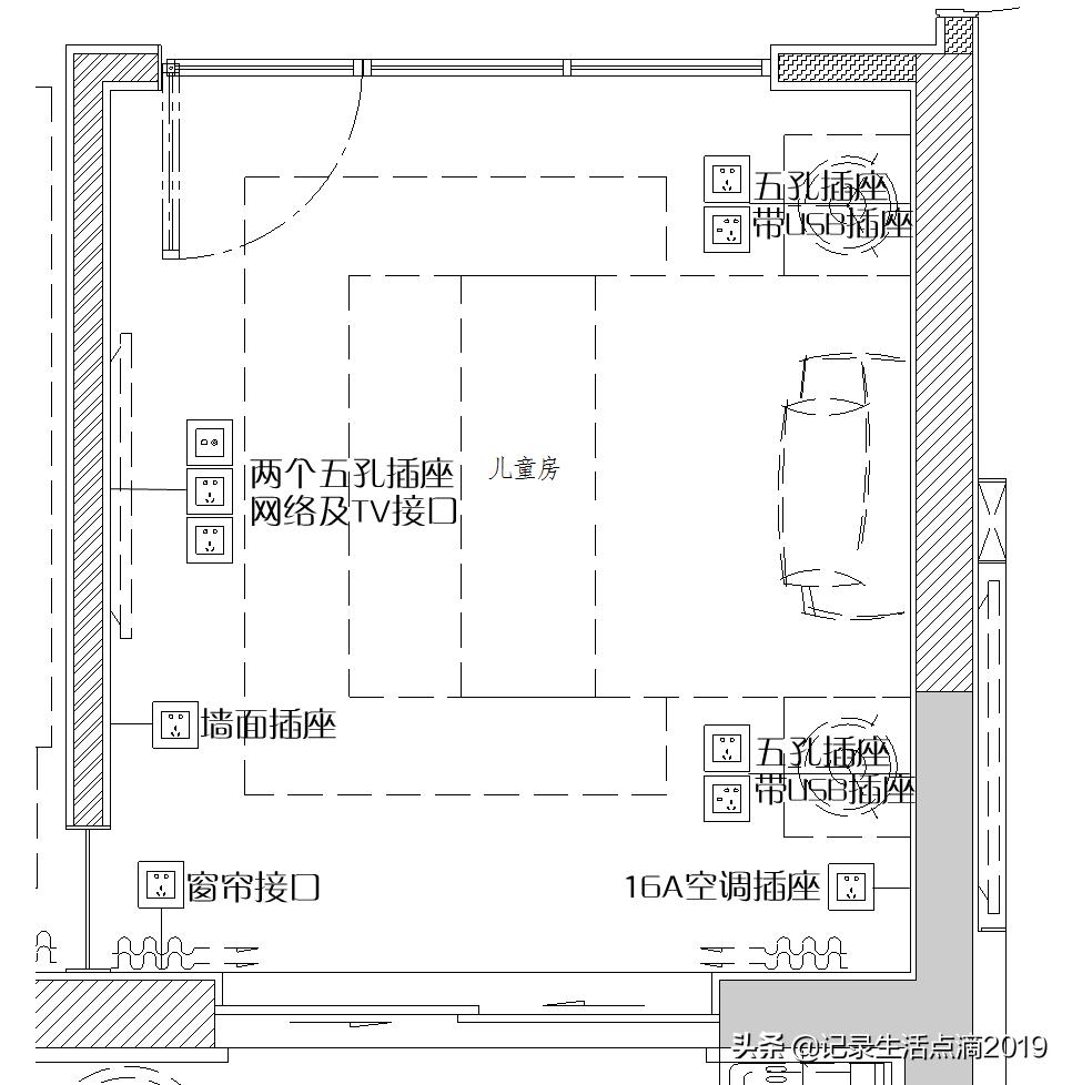
书房: 书房中的插座主要还是考虑书桌的摆放位置,我在书桌旁布置了两个五孔插座以及一个网络接口插座,另外在两个墙面上各布置了一组插座,16A的空调插座也别落下了。

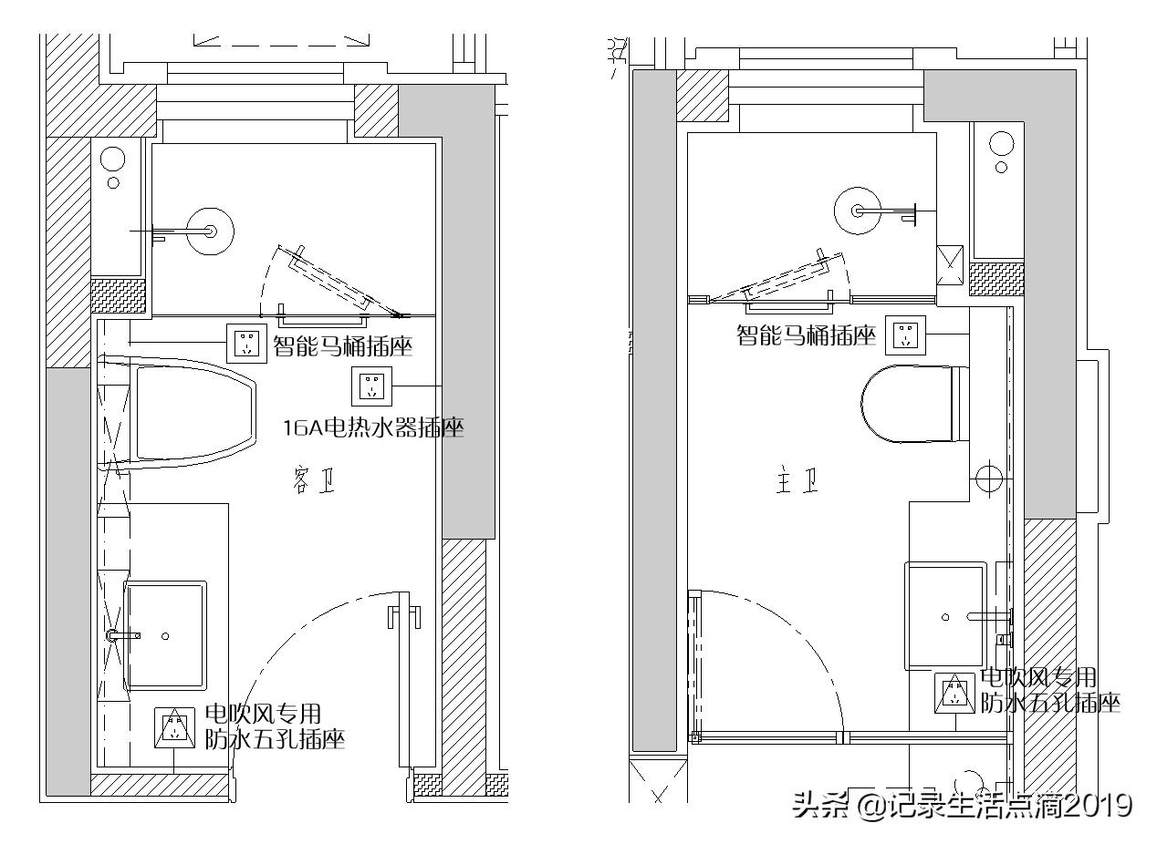
卫生间: 卫生间的插座建议设置防水盒,浴室柜上方设置一个五孔插座,主要留给电吹风使用,当然也可以给电动牙刷、剃须刀充电使用。马桶旁记得安装一个五孔插座,要不以后想安装智能马桶盖都实现不了。我在客卫集成吊顶上方预留了一个16A的三孔插座,用来给电热水器供电。

阳台: 阳台预留插座也要考虑周全,首先是洗衣机的一定要留好,在吊顶下方记得也预留一个五孔插座,用来给电动晾衣架供电。其他墙面上建议也预留插座,这样夏天吹个电风扇都会方便很多。阳台的插座记得加装防水罩。
以上就是这次和大家分享的关于开关插座的那些事儿,一不小心写了6K多字,如果哪位小伙伴家里马上要装修的可以仔细看看,也可以收藏备用。要想日后使用更省心、更顺手,开关插座一定要选好,只要根据我上文中提到的几个要点来选购,基本都没问题,我这次新家装修选购的是立维腾的开关插座,这是一个在美国保有量超过65%的百年品牌,所以还是比较放心的,其实选择知名品牌的购买基本都没啥问题,总之开关插座也是一分价格一分货的,所以装修时在开关插座上多点预算也是值得的,毕竟在日常生活中天天都要用到。选择好的开关插座固然重要,但关键还是要看安装布置,合理的布置才能让开关插座发挥出更大的作用,上文分享了一些插座预留建议,同时还介绍了我家的插座布置方案,希望对大家有所帮助。最后提醒大家,确定开关插座布置方案前一定要提*考前**虑好家具尺寸、家电型号,否则会给你带来很多麻烦。