[摘要]本套案例介绍的是成都华汇天地一套83平米港式风格三居室,对于83平米的房子来说,港式风格会更加的美观大气。户型设计成三居室,更能满足生活需求。如果你家也是面积相差不大的户型,可以参考本套案例。
成都华汇天地一套83平米的房子,业主将它装修成港式风格三居室,装修完效果非常好,不仅能满足日常生活需求,更能最大限度的利用房屋面积。
楼盘:成都华汇天地
装修公司:成都大树装饰-成都环保家装公司
设计师:全案设计师-崔然
风格:港式风格
设计理念:合理划分空间,让设计融入生活,营造自然,品味,格调。
客厅装修最重要的是采光和室内布局。客厅装修不仅要有充足的采光和亮眼的墙壁,而且还要有巧妙的空间布局,以及加上独特的创意性设计,让生活充满更多的乐趣。







客厅
餐厅的设计以米色和白色为主色,让空间看起来简洁干净。


餐厅

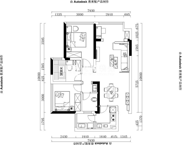
平面图
以上展示的就是83平米港式风格的三居室装修效果图,本套案例位于成都华汇天地,户型,面积差不多的朋友们,可以吸取一点经验,把自己的爱巢打造的更加的满意。
想了解更多的户型案例,更多的装修风格,请关注成都大树装饰官网,让你更懂家装,把新家装修成自己喜欢的样子。
我们秉承绿色、平价、整体家居的发展方向,围绕以客户为中心的服务理念,走专业化、标准化、精细化、流程化的发展之路。致力于从根本上解决客户一站式的家装难题,构建最具竞争力的行业标准和家装品牌,让百姓住上有品质的家,我们只做有温度的家装。