项目地址:西安市灞桥区灞业大境
面积:89㎡
户型:三室一厅
风格:现代简约
花费:7.5万
设计方:百懿装饰
施工方:百懿装饰

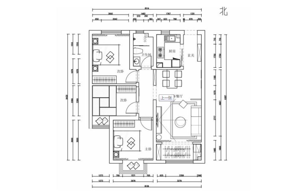
户型图 三室一厅

次卧室色调偏卡通,可以做儿童房

餐厅合理运用,吊灯的灯光让吃饭的过程变的更温馨

主卧简单温馨不复杂

书房浅色以黄白为主,书香气息

客厅偏小,所以在设计上并不填充过多东西

客厅

客厅
项目地址:西安市灞桥区灞业大境
面积:89㎡
户型:三室一厅
风格:现代简约
花费:7.5万
设计方:百懿装饰
施工方:百懿装饰

户型图 三室一厅

次卧室色调偏卡通,可以做儿童房

餐厅合理运用,吊灯的灯光让吃饭的过程变的更温馨

主卧简单温馨不复杂

书房浅色以黄白为主,书香气息

客厅偏小,所以在设计上并不填充过多东西

客厅

客厅