
俄罗斯方块概念的加建
Tetris Extension / Crosshatch
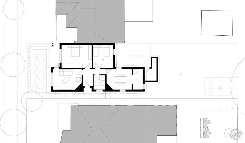
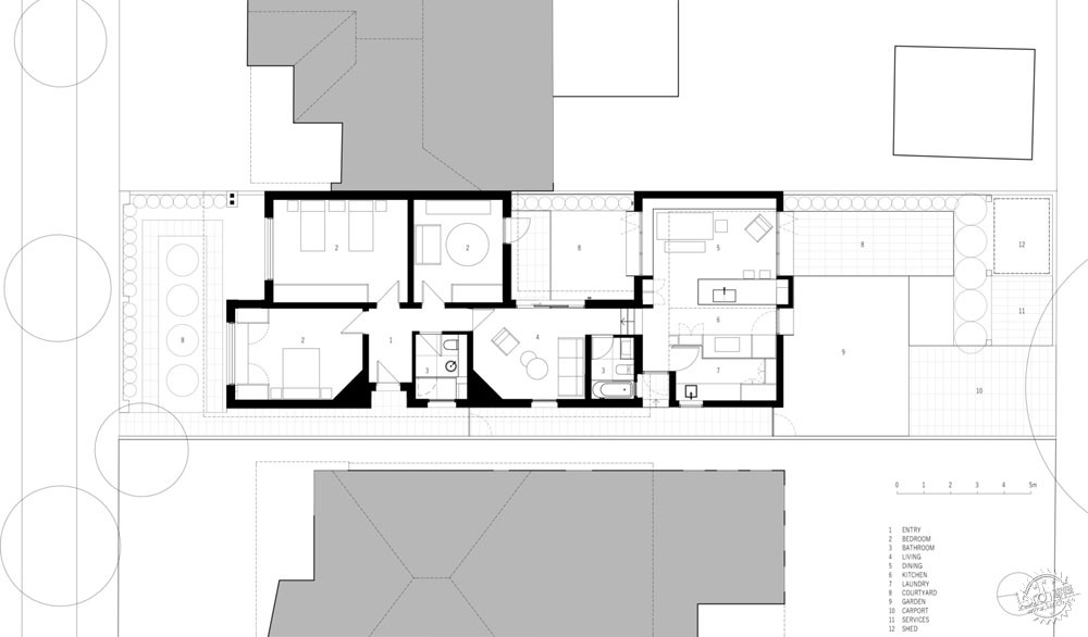
文字描述由建筑事务所提供。俄罗斯方块住宅位于墨尔本内西北部,属于扩建类型的项目,该项目在2018年年初完成。该项目的客户是一对带着两个小孩的年轻夫妇,他们原本居住在位于加州的整洁的平房中,现在他们需要更多的活动空间。Crosshatch也致力于创造出一种既富有同情心又高效的布局,以满足家庭的需求,同时还要保留最初两卧室住宅的可爱之处的特性。现有的平面图也被重新配置,以创造第三个卧室、额外的浴室和一个中央休息室。
Text description provided by the architects. Tetris Extension in Melbourne’s inner north-west is a compact addition completed in early 2018. The clients, a young couple with two small children, had outgrown their neat Californian bungalow and needed more room to move. Crosshatch was engaged to create a sympathetic yet efficient rear extension to meet the family’s needs, while still retaining the much-loved character of the original two-bedroom home. The existing floor plan was also reconfigured to provide a third bedroom, additional bathroom and central lounge.




关于项目的解决方案。
结果则是扩展的简单性掩盖了高度的复杂性和多功能性,建筑师考虑了站点及其周边的各个方面。Crosshatch最引人注目的设计是有效的利用45平方米的额外楼层空间,容纳一个舒适地新的厨房、餐厅和洗衣房。
A hard-working solution.
The simplicity of the resulting extension belies a high level of complexity and multi- functionalism that considers every aspect of the site and its surrounds. Crosshatch’s most compelling articulation is the efficient use of 45 square metres of additional floor space to comfortably accommodate a new kitchen, dining area and laundry.

如何可以在室内捕捉到北极光是建筑向南延伸的首要任务。建筑师通过在建筑内引入中央庭院和重要位置的窗户,从而来实现这一目标。
Capturing northern light was a priority for the south-facing extension. This was achieved with the introduction of a central courtyard and strategically positioned windows.


把外面的视野带进来。
建筑在扩展之后看起来比实际的空间要大得多,这在很大程度上是因为其内部的极简布局,并且加强了光的渗透和与户外的关系。引入外部的景观对客户和Crosshatch的联合创始人Jaime Diaz-Berrio以及Mark Allan来说都很重要,建筑师通过在餐厅区域设置大画窗,深开窗和双折玻璃门通向中央庭院这一系列的举措将外部的景观引入室内。这个活跃的绿色空间连接着新旧建筑,将生活区扩展到它们的边界之外,创造出一种宽敞的感觉。建筑师还在空间之间设计了视觉上的连接,因此父母总是能从厨房清晰的看到孩子们的活动,无论他们是在卧室、休息室、庭院还是后院玩耍。
Bringing the outside in.
The extension appears much bigger than it actually is, due in no small part to the interior’s minimalist arrangement, even light penetration and strong relationship to the outdoors. Bringing the outside in was important to both the clients and Crosshatch Co-founders Jaime Diaz-Berrio and Mark Allan and it’s made possible through the dining area’s large picture window with deep reveals and bi-fold glass doors that open to the central courtyard. This active green space connects old and new and extends the living areas beyond their boundaries, creating a sense of spaciousness. The design also allows for visual connection between spaces, so the parents always have a clear view of the children from the kitchen, whether they’re playing in their bedroom, the lounge room, courtyard or backyard.



俄罗斯方块的郊区。
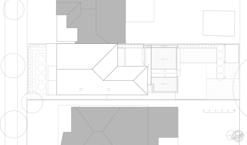
加建的部分是以四边形的形式排列,在平面图、立面图和剖面图中进行表示。联锁的体量结合了新旧的形式和功能。俄罗斯方块的概念通过室内的细节进一步表现出来,包括定制的橱柜和定制的厨房门把手。
The suburban tetris.
The forms of the new extension are arranged in a tetris-like configuration, expressed in the plan, elevation and section. The interlocking volumes unite the form and function of the old and new. The tetris concept is further iterated through the interior detailing, including bespoke cabinetry and custom kitchen door handles.

尊重环境。
引人注目的4.5米高的窗户连接了外部环境,并在后方形成了巨大的橡胶树框架,敏感地将扩建部分和现有住宅与郊区环境联系起来。回收的红砖被用来作为尊重家庭的原始材料调色板,以保持该地区的传统覆盖。
Respecting context.
The striking 4.5m high window articulates the exterior and frames the large gum tree on the rear property, sensitively grounding the extension and existing home within its suburban context. Recycled red brick was used to respect the home’s original material palette, in keeping with the area’s Heritage Overlay.


每一个设计的决策,都是从最小的室内细节到外部的整体形式,经过仔细的考虑,以实现一个令人信服的小足迹的现代生活方式。
Every design decision, from the smallest interior detail to the exterior’s overall form, has been carefully considered to achieve a convincing approach to small footprint modern living.








建筑师:Crosshatch
地点:澳大利亚
总面积:326 m2
建筑面积:145.0平方米
项目年份:2018年
摄影师:Jaime Diaz-Berrio
Architects: Crosshatch
Location: Australia
Total Area: 326 m2
Area: 145.0 m2
Project Year: 2018
Photographs: Jaime Diaz-Berrio
由专筑网王沛儒,蒋晖编译
【专筑网版权与免责声明】:本网站注明“来源:专筑网”的所有内容版权属专筑网所有,如需转载,请注明出处