
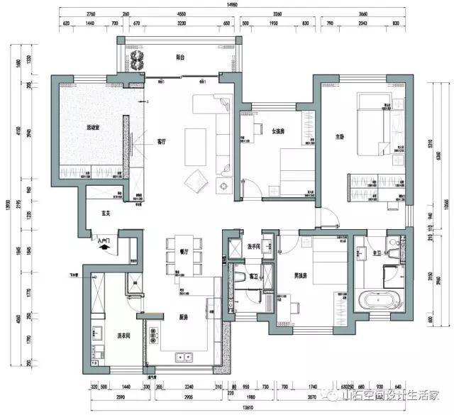
项目地址:沈阳富海澜湾半岛
项目面积:176㎡
风格定位:后现代

宽敞、实用、合理科学的动线结构,不仅令室内成为既往商业的独白,更成为对居住文化的一种述说。








公共空间,给家人更多共度好时光的完美空间。





我们希望,在这个喧嚣的都市里创造一种闲情雅致,带点拙朴又不失都市质感,简净却有力的表达对生活的热切与踏实的美。

项目地址:沈阳富海澜湾半岛
项目面积:176㎡
风格定位:后现代

宽敞、实用、合理科学的动线结构,不仅令室内成为既往商业的独白,更成为对居住文化的一种述说。








公共空间,给家人更多共度好时光的完美空间。





我们希望,在这个喧嚣的都市里创造一种闲情雅致,带点拙朴又不失都市质感,简净却有力的表达对生活的热切与踏实的美。