近期,贵阳地铁沿线多个楼盘规划调整,这些项目中都有新建超百米建筑。个头虽比不上动辄200米往上的摩天大楼,但也算是区域商业的小地标,预示多个楼盘开发布局收尾。观山湖八匹马商圈,万科翡翠天骄项目收官组团落地。此次公示的C地块中,将有高约150米塔楼,主要涵盖SOHO以及LOFT公寓。

新组团位于效果图最右侧(资料图)新地块中也有项目配建12班小学,作为商品住宅的配套开发。

乾图中心广场改造后裙楼外立面此前,国贸集团入驻八匹马区域,重新打造B地块的乾图中心广场商业。近期项目建设持续推进。明年2号线观山西路站建设开通,当年沉寂一时的商圈,有望通过地铁商业的连接,迎来商住板块的焕新。 同样是在2号线白云行政中心站,名不见经传的中京国泰(原博泰世界岛)调规。

项目区位卫星示意图(资料图)本次调整优化,将原来负二层的机械车位改成平面车位。由于调整产生的34个车位缺口,将会在博泰路上增加侧方位车位补足。而从规划细节来看,同样能有最高约160米建筑,成为这个站点的商业小地标。 搭乘3号线地铁快车,花溪大道传统老盘腾龙湾,呈现完整布局。此前先期公示了A3-(5~13)栋、A3区地下车库、酒店,其中酒店建筑高度199.95米,层数为55层。


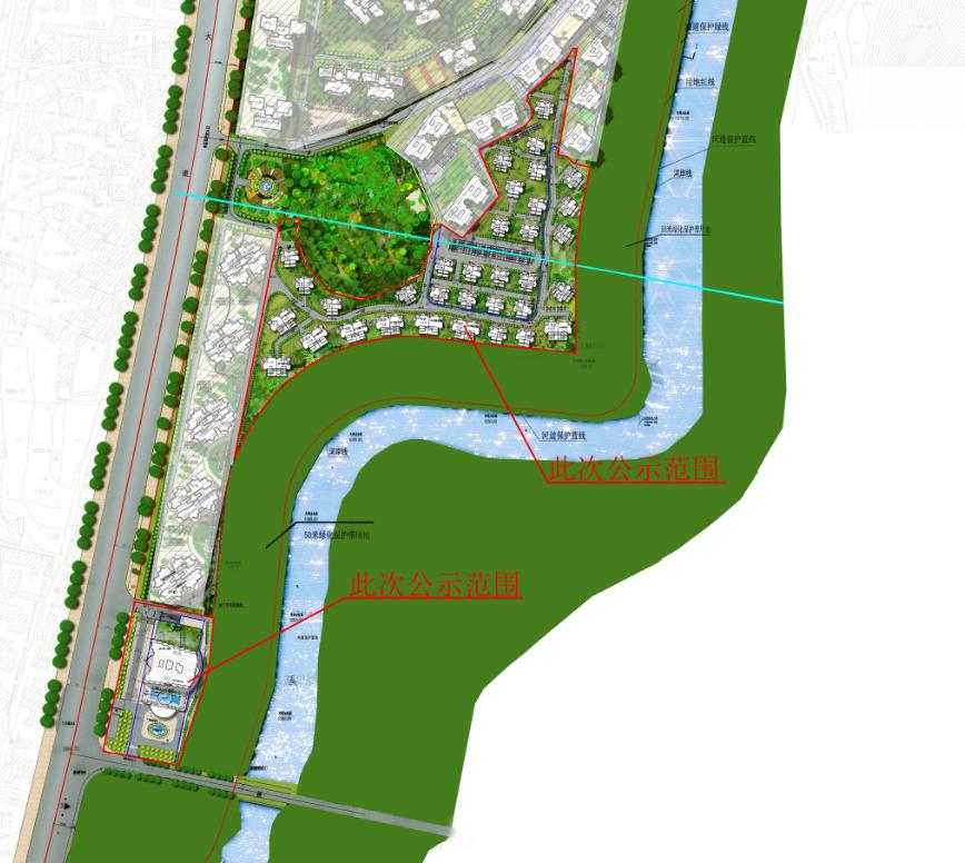
而此次公示的就是其余的14~47栋的项目,主要以高层和洋房搭配。尽管距离3号线中曹司站有点距离,但是遇上新花溪大道建设,还能赶上轨道交通到来,确实沾够了光。最后,还有十分期待轨道交通到来的未来方舟。此次公示的E12组团位于北京东路西侧,紧邻未来方舟医院旁边。不仅填补区域中心空白,也完整中央组团的版图。

未来方舟组团区域图(非公示内容)本次报建的1栋楼为商业、酒店式公寓业态,其高度也达到145.5米。隔岸相望,就是方舟湾畔的世贸中心超高层集群。

贵阳世贸中心早在2019年中旬,未来方舟贵阳世界贸易中心项目E栋成功封顶,高度突破201米。这也成为了贵阳世贸中心项目首个封顶的超高层建筑。 伴随高达77层的A栋主楼建设,贵州首个世界贸易中心以及国际大都市生活的巨擘级建筑综合体,也将巍然而立于温泉旅游城的商业水岸。/ 以下是详细内容 / 万科翡翠天骄新组团来了!
日前,贵阳万科翡翠天骄项目规划方案由贵阳市金城汇置业有限公司申报。

项目总体规划经济指标如下:

此次公示的项目C地块总指标如下:

白云地铁盘中京国泰车位调整!
日前,贵阳市自然资源和规划局关于中京国际贵阳北部CBD建设项目规划设计方案行政审批批前公示。申报单位为贵州博泰投资管理有限公司,项目性质为酒店、商场、办公。据公示,项目位于贵阳市白云区云峰大道199号,用地面积58048.6平方米,建设用地面积43675.5平方米,总建筑面积348178.88平方米,计容建筑面积217617.06平方米,不计容建筑面积130561.82平方米,建筑密度40%,容积率4.98,绿地率25.43%,建筑限高160米。


项目建筑分为9栋建筑,包含办公楼A、办公楼B、办公楼C、办公楼D、酒店塔楼、酒店裙房、北地块裙房及地下室、南地块地下室、南地块商业裙房。本次申报类别为总平面图、单体方案调整。审查事项及审查内容为以下几点。


(一)取消机械车位变更为平面车位将项目地下室-2层177个机械车位调整为143个平面车位,-2层车位数量减少34个,其余项目指标不发生变化。(二)博泰路增加平面车位在项目内部道路博泰路上增加侧方位平面停车位34个,保证总车位不变。(三)博泰路增加平面车位鉴于住建局提出云峰大道酒店出入口处消防登高面不应布置停车位的意见,现将原此处12个地面停车位移至博泰路。 3号线花溪大道腾龙湾新增组团!
腾龙湾A3-(14~47)栋及酒店,由贵阳凯宏房地产开发有限公司申报。项目性质为居住、酒店。项目用地位置,位于贵阳经开区花溪大道中曹司中段龙王村。腾龙湾A3-(14~47)栋及酒店项目规划总平面图方案于2019年11月27日通过技术审查,现项目单位申请核发腾龙湾A3-(14~47)栋及酒店内容的建设工程规划许可证。

此次发证总建筑规模为118035.4平方米,其中计容建筑面积:94422.52平方米(含住宅建筑面积:17247.48平方米,酒店建筑面积:77175.04平方米),不计容建筑面积: 23612.91平方米。规划依据是筑经开国用(2015)第1012号、黔(2018)经开区不动产权第0000671号。 未来方舟中心区E12组团来了!
日前,渔安安井温泉旅游城“未来方舟”E12组团,由中天城投集团贵阳房地产开发有限公司申报。项目性质为商业、酒店式公寓及停车库。用地位置:贵阳市云岩区渔安安井片区、北京东路西侧。主要经济指标,总用地面积:8643.78㎡,净用地面积:8643.78㎡,总建筑面积:70333.55㎡。

总图 计入容积率面积:50305.74㎡(其中商业3354.38㎡,酒店式公寓46555.25㎡,配套设施396.11㎡),不计入容积率面积:20027.81㎡。


效果图建筑密度28.84%,容积率:5.82,绿地率25.08 %,停车位353个(其中地面车位26个,地下车位327个)。本次楼栋数和层数:本次报建共1栋楼,层 数-3+33F,建筑高度145.5米。
来源 | 市自然资源和规划局 动静贵州、贵阳楼市网