导语
好消息!最近,上海又将新增5所幼儿园!其中一所公立园可容纳450位小朋友!还有世外教育集团联合办园!
哪区如此幸运?新增园所又规划在哪里呢?托幼君为大家带来最新报道~
- 美兰湖第三幼儿园

(图片来源:上海宝山)
为进一步扩大学前教育资源,推动罗店学前教育的优质均衡发展,满足各类人群接受学前教育的需求,罗店美兰湖北欧风情小镇里正紧锣密鼓地建设一所幼儿园。

(图片来源:上海宝山)
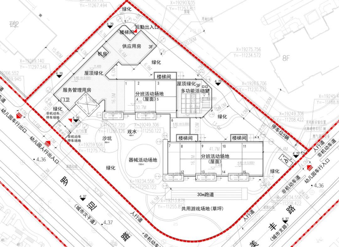
新建的美兰湖第三幼儿园——作为罗店新镇的重点建设项目,由上海金罗店开发有限公司建设。该项目位于罗迎路与美丰路交叉口北侧。基地总用地面积为6386.4平方米,容积率1.02,总投资约5,236万元。
建成后,教学楼将共有三层,设有15个标准幼儿教室,配有配备设施齐全的现代化多媒体幼儿活动室及丰富多彩的幼儿园游戏场地。整个幼儿园可容纳近450名幼儿入园。

(图片来源:上海宝山)
该幼儿园项目预计在2022年3月移交罗店镇政府。未来,美兰湖第三幼儿园将成为美兰湖区域硬件设施完备,环境温馨舒适的公立性幼儿园。
在已公布的设计工程平面示意图(见下图)中,这个新建幼儿园将配备86㎡的沙坑,48㎡的戏水,150㎡的器械活动场地,还有30㎡的跑道以及一个在草坪上的共用游戏场地。

(图片来源:上海宝山)
注:本项目规划总平面图以主管部门批准的最终方案为准
有沙坑、戏水、跑道还有共用游戏场地,还能容纳450个幼儿,住在周围的宝宝们,简直太幸福了吧!
- 枫叶幼儿园
建设地点
位于宝山区宝山工业园区,东至94-03地块,南至沪品路,西至萧云路,北至94-01地块
建设内容
主要工程内容包括新建一栋4层幼儿园主楼、一栋1层门卫及变配电站和1层垃圾房及室外总体

(图片来源:上海宝山)

(图片来源:上海宝山)
效果图



(图片来源:上海宝山)
- 新江湾社区幼儿园
建设地点
位于宝山区淞南镇新江湾社区,东至规划A3-01A地块住宅、南至规划A3-03A地块防护绿地、西北至规划A3-02A地块九年一贯制学校
建设内容
建设内容包括幼儿活动及辅助用房,教师和行政办公及辅助用房,生活用房
建设规模
项目规划建设为12班制,规划用地面积4746平方米,总建筑面积约5280.57平方米

图片来源:宝山区政府
- 庙行镇康家居住区幼儿园
建设地点
位于宝山区庙行镇,东至东茭泾、南至一二八纪念路、西至康宁路、北至规划绿地
建设内容
儿童活动单元、分班活动场地、专用活动室、多功能音体室、教师办公室、厨房、食堂、特殊消毒间、门卫设备用房、道路、绿化等
建设规模
用地面积6500平方米,总建筑面积6498.80平方米(以审定的方案为准),班级规模为15个班。

(图片来源:宝山区政府)

幼儿园效果图(图片来源:上海宝山)
依据《上海市建设工程设计方案规划公示规定》的要求,由上海市宝山区规划和自然资源局监督,庙行镇康家居住区L-07地块幼儿园新建工程设计方案正在进行公示。

据悉,该幼儿园建设地点位于康宁路以东、规划绿地以南、东菱泾以西、一二八纪念路以北范围内。建筑面积为6432.72㎡。




(图片来源:上海宝山)
- 云尚欧莱幼儿园
开园时间:2020年9月
园所性质:民办未定级
园所地址:上海市宝山区云上路21号
上海世外云尚欧莱幼儿园是上海世外教育集团、上海欧莱教育集团联合办园。园所位于宝山区云上路21号,占地面积11亩,于2020年9月开园。

(图片来源:顾村新鲜事)
园所课程以世幼母体园—青浦世幼成熟的国际化课程为蓝本,再次进行本土化融合与完善,还全面引入和贯彻IB PYP国际教育理念和教育模式,开设特色类课程包括运动俱乐部、绘本俱乐部、艺术俱乐部、科学俱乐部、生活俱乐部、自然俱乐部等。
上海世外云尚欧莱幼儿园整体建筑邀请国内著名建筑设计师庄慎先生以“会生长的小世界”为目标而设计,共设有15个教学班,配备有:内院多功能活动空间、无终点屋顶运动平台、科技互动馆、乐园式公共探索空间等。

主体俯瞰图

内庭院

生活馆

绘本馆

互动科学馆

多功能小剧院
(图片来源:顾村新鲜事)
园所配备中外教团队持证上岗,90%以上拥有名校本科及以上学历。外教团队均来自母语国家,采用全天带班制,打造浸润式、国际化语言教育环境。
家长反馈
今年托班14000左右,小班11800,校车餐费其他费用另算。
我们问的时候是说,新人新办法,老人老办法,明年说不定就不是这个价格了。
(信息来源:综合自上海宝山、园所官网)