

城市是人创造的,城市给人最精彩的感觉应该是起源于艺术,发展于需求;一个可读的城市,他的街区,标志或是道路,应该容易认明,进而组成一个完整的形态。
——凯文·林奇《城市意象》

· 背景介绍 ·
Future-oriented, Multi-component
项目位于青岛黄岛城市规划核心区域的中心地段,主城区向北发展的方向上,可作为城市价值北溢的首站,片区规划目标为完善中心区功能,适应黄岛区未来城市发展。

▲大区位关系
项目位于商住混合用地的西北侧,东侧为规划停车楼,南侧为大区住宅,东西向场地高差1.7米。地块资源不成熟,场地有局限,规模受限制,在这样一个区位内营造出一种可以领先的生活模式并不是件容易的事,V盟荟就是这样的区域目的地型商业街区,设计时需要深刻地考虑区位人群、周边环境、城市发展、营销成本等在地性因素来建立叙事线索。

▲小区位关系
故事线最终建立在天空彩虹环这样一个核心IP的引入来展开,并且通过标识性与话题性的景观、室内和业态的导入来吸引人群,为项目填入饱满的烟火气息,从而拉动新都会整个大盘的人气,以期成为西海岸的新地标。

▲全期叙事图


▲ 全期鸟瞰效果图
· 糖果小镇规划设计 ·
PLANNING DESIGN
规划设计中,我们没有刻意回避场地天然的高差和车行流线,通过对西雅图城市商业空间案例的深入分析,提出了“共享街道”的概念,提倡无道牙设计的人车共享空间,场地预留停车场,人车混合且慢行,道路断面强调混合功能,漫步、聚会、停留小驻、玩耍和餐饮等在此发生。两侧商业开放,不同的街道活动,如露天电影、市集、现场音乐会等进一步丰富了街道的公园精神。

▲规划生成

▲规划概念分析

▲总平面图

▲鸟瞰实景图
· 建筑设计·
ARCHITECTURAL DESIGN
结合场地特性,设计团队从环境地形、空间结构与商业流线几个层面,对基地进行了多个维度的解析。
关键点:客户体验、IP植入、空间极致、商业激活;思路:商业零改动,植入社区聚合力--悬浮“彩虹环”
街区中央植入IP彩虹环,商业街区向两侧呈线性展开,如聚能环一般将商业空间串联并激活;内街商业与外街商业点线结合,最大化的引入周边客户。

▲IP植入

▲建筑概念分析图

▲沿街正透效果图

▲沿街正透实景图

▲街角入口效果图

▲街角入口实景图
售楼+精品零售+儿童业态多元化的功能并置其中,街区尺度宜人,强调人与人之间的交流,形成年轻活力童趣的“家庭式购物公园”——营造更具亲和自然的有烟火气息的购物氛围。

▲功能分布图
· 立面设计·
ELEVATION DESIGN
对于商业立面气质的塑造,设计以适应周边的氛围、呼应西海岸文化气质为出发点。建筑师为营造轻盈精致感的立面,以金属框架式与大玻璃面体块组合来体现虚实和简洁有力的现代感;玻璃面以竖向划分为主,局部增加金属浪板和金属灯槽,营造精致通透且开放的商业界面。
材质及典型断面

▲立面材质指引

▲沿街面标准段断面

▲内街面标准段断面
· 彩虹甜甜圈 ·
RAINBOW DONUT

五彩斑斓的彩虹环凌空而起,在外部,它是对城市形成具有吸引力的界面,如同一条丝带将整个商业空间串联起来,促进商业活力;在内部,他是城市上空观景的五彩滤镜,如同一道彩虹将色彩赋予空间。对于主打亲子童玩主题的V盟荟,彩虹环如同空中悬浮的彩虹甜甜圈,将不同家庭、人群的生活贯通起来,从垂直方向上激活空间的活力和能量。

彩虹环内部“空中步道”也增加了空间体验的可能性和乐趣——人们在步道上可以边运动边欣赏空中色彩变换的景色,之后可以顺路买一杯咖啡,或小憩一会后去接刚刚上完培训班的孩子回家,或者逛一下店铺再回酒店等等。

彩虹环色彩的呈现是个难题,在地面看向它时,我们希望它是一个高饱和度色彩的呈现;在环内慢步时,我们希望它是一个通透可见的有色滤镜;为同时能满足要求,在考虑多种彩色玻璃方案后,最终选择彩色釉点玻璃。


对于彩色釉点的排列与遮盖度,团队和业主方、玻璃厂家、幕墙顾问、灯光设计经过4轮的样板制作与优化才最终确定最优的效果并且达成共识。

▲彩色玻璃选样
INFORMATION
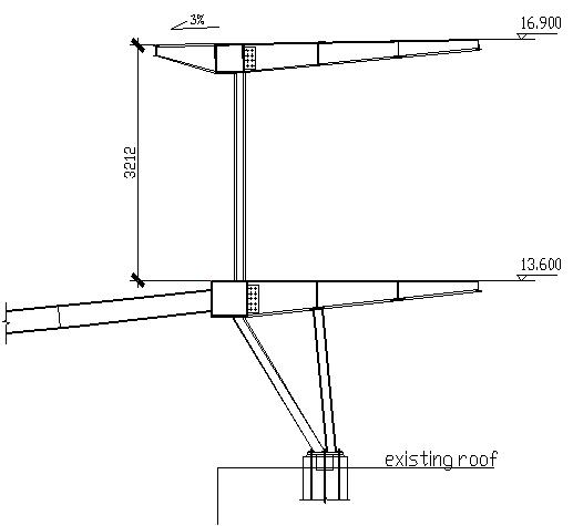
彩虹甜甜圈的环形走廊标高13.6m,屋顶标高16.9m,通过多根倾斜的钢柱,支撑在3座既有建筑上。走廊宽3.4m,外径24.5m。内侧为下凹的玻璃采光顶。建筑面积:486㎡,用钢量:146T。

▲彩虹环顶视图

▲彩虹环人视图
内部采光顶下凹,构件仅受单拉,中间留孔,风动性能好。

▲内侧采光顶
CREATIVITY & INNOVATION
彩虹甜甜圈结构仅靠内侧桁架支承屋面外挑,利用形状效应来保证几何不变,形成独特的单边支撑体系。外侧观景视野无结构阻挡。

▲单侧支撑体系
环廊楼面和屋面的钢梁上下侧均焊接钢板,各自组成巨型箱型截面来抗扭。

▲单侧支撑体系剖面示意
彩虹甜甜圈最大跨度30m,为实现细柱的效果,设计通过控制施工顺序及细部构造来使斜柱按照设计意图分阶段承受荷载。对该大跨度两侧8根落地斜柱,通过控制施工顺序,每侧的其中2根斜柱会待钢结构和玻璃完成安装并卸载后再进行安装,保证每侧钢柱协同且合理承担不同阶段的荷载;另外,有4根斜柱柱脚位置均先焊内棒,使钢柱先仅承担恒载下轴力。待钢结构和玻璃安装完成后再以极缓慢的速度焊接端部短套管。这样使套管单独承担后续活载产生的弯矩。

▲后焊套管
SUSTAINABILITY & SUMMARY
屋面钢板在焊接完成后进行蓄水试验,以保证防水效果。钢板参与结构受力,且代替了防水,从而降低工程造价。楼面及屋面采用耐候钢板,减少了后期维护成本。
本项目的建成,即实现了其本身的建筑功能,为场所及人群提供了雨雪天的活动场所,又丰富了街区景观,提升了街区品质及土地价值。

▲彩虹环内侧实景




▲彩虹环内部实景
· 示范呈现 ·
DEMONSTRATION AREA
整个设计构思营造出一种可玩、可游、可商与可居的多元化“斜杠”时尚生活场景,创造人与人、人与自然、建筑与自然有机碰撞的生活与城市界面,在这里“一切皆有可能”。各类人群在此汇集,各种活动连续发生,从白天到晚上,从上班族到社区长幼,从逛街休闲到商务聚会……所有活动在这片场域内都能自然顺畅地展开,每个人都能乐在其中。








设计团队试图以不同于一般的建筑环境去创造一种新的生活方式,使之成为一个区域性符号,并且以分形的设计导则,叙事性的方法,来关注项目的在地性、场所精神和作为建筑师的职责,以城市设计的大盘思路织补西海岸版图,促进街区内容的丰富度,为整个西海岸带来一处新形态的活力中心。


名 称:青岛万科新都会-V盟荟
业 主:万科集团
地 址:青岛市
用地面积:12720㎡
建筑面积:9954㎡
建筑方案:AAI国际建筑师事务所
景观设计:凯盛上景(北京)景观规划设计有限公司
室内设计:北京界面空间室内设计有限公司、青岛北洋建筑设计有限公司
照明设计:佐一照明
幕墙设计:CAC楷宴建筑咨询( 上海) 、北京盛世维工程技术有限公司
施工图设计:青岛北洋建筑设计有限公司
彩虹环结构设计:袁鑫工程顾问(上海)事务所
业主设计师:赵晓刚、张烨、王信臣、马振昌、李宇航、王泽昊
设计团队:James Xie、Eric Yu、Joye Liu、Shaw Shao、Li Zhong、Peng Li、Renjie. He、Hu Zhang、Chuanchao Zhang、Wenxing Lian、Yun Zhang、Xing Jiang
建筑摄影:曾江河、胡义杰、*克王**功
※结构设计篇图文由袁鑫工程顾问(上海)事务所提供。
※本文版权归AAI所有