
2019年9月18日,漕湖置地以总价24.01亿元拿下澄阳街道30号地块,楼面价13000元/㎡,底价成交。

当月27日,漕湖置地又以总价26.07亿拿下澄阳街道38号地块,楼面价13000元/㎡,底价成交。

两宗地均位于相城区澄阳街道相城富元路,属于相城经济技术开发区,为连体地块。地块周边配套齐全,距离地铁2号线不太远,且靠近苏州北站高架路、中环北路,自驾方便,附近有澄阳小学、苏大第二实验学校、广济医院、苏州市第五人民医院等教育、医疗资源,开发条件相对还算可以。

根据当时两宗地块的出让规划条件,"所有住宅面积不得小于100㎡;特定绿化范围绿化率大于等于70%;住宅高差需大于等于12米;住宅建筑预制装配式建筑面积比例应达到100%,成品住宅(6层及6层以下住宅除外)比例应达到100%",也就是说,未来将打造的项目偏改善,且要带装修,将为片区改善群体提供新的购房选择。

近日,有消息传来,这两块地上打造的住宅项目终于要首次"亮相"了——其在苏州中心的城市展厅,将于本周末对外公开!
据悉,该项目案名还未最终确定,暂名"省建弘阳40万方纯住区",由弘阳地产与漕湖置业合作开发,两宗地均由弘阳地产操盘。月前,两宗地块项目的建设工程规划均已出炉,并在苏州规划公示网上进行公示。


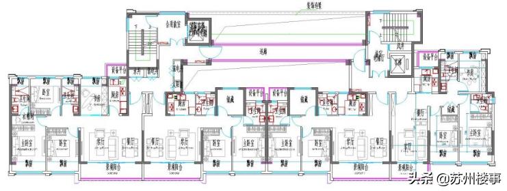
规划显示,两宗地块将合成一个项目进行开发,整体规划了36幢精装小高层、高层,楼层18-27F,总户数3188户。主力户型建筑面积分别为100㎡2房2厅2卫、140㎡3房2厅2卫和160㎡4室2厅2卫。

30/38号地块整体鸟瞰图
项目具体规划:
苏地2019-WG-30号地块拟建17幢18~27F小高层、高层住宅产品,其中:21、22、25、26、29号楼为18F;23、27、28、30、31、32、33、34、35、36号楼为27F;24号楼为23F。项目的这一部分用地面积73873㎡,总建筑面积261583.5㎡,容积率2.5,绿地率37%,总户数1542户,机动车停车位2366个(地上63个,地下2303个),非机动车停车位1615个。

带编号项目规划俯瞰图

项目总平面图
从项目公示的总平面图可以看出,该项目规划了有南、西两个出入口,东南角还规划了一所幼儿园。另外,规划还公示了29#、31#楼标准层户型的设计:
- 29#为1梯2户设计,户型为4房2厅2卫,入户设置了玄关,5开间朝南,主卧套房,带有衣帽间;客餐厅采用了横厅设计,U型厨房采用中西双厨设计,每个房间包括卫生间都配有飘窗,有大面积宽景阳台,观景效果不错,南北飘窗赠送面积多,真正纯改善。


29#户型图
- 31#为2梯4户设计,两梯之间设有连廊,除中间户户型相同之外,边户户型各不相同:西边户仍为4房2厅2卫,三开间朝南,U型厨房,稍显不足的是景观阳台较小;中间户则为2房2厅2卫,三开间朝南,主次卧均为南向飘窗设计,餐客厅朝南面向宽景阳台,北向还有一间储藏室;东边户为3房2厅2卫,三开间朝南,餐客厅一体纵向设计,稍显狭长,包含一间小的储藏间。


313户型图
- 三种户型除东边户之外,其余全部为横厅设计。
苏地2019-WG-38号地块规划了19幢18~27F小高层、高层住宅产品,其中:1、2、3号楼为24F;4、5、8、9、11、12、15、19号楼为27F;16为23F;6、7、13、14、17、18号楼为18F。
这一部分用地面积80228平方米,总建筑面积283310平方米,容积率2.5,绿地率37%,总户数1646户,机动车停车位2525个(地上64个,地下2461个),非机动车停车位1726个。

总平面图
从项目公示的总平面图可以看出,该项目除了上述南侧、西侧小区出入口,北侧还有人行出入口,整个小区共3个出入口。
这一部分规划也公示了部分楼栋的标准层面图及户型设计:
- 6#为2梯4户设计,中间有连廊设计,均为4房2厅2卫,三开间朝南,L型厨房,主卧套房设计,带有衣帽间;同样是所有房间均有飘窗,客餐厅为横厅,宽景阳台,大面积飘窗赠送等。


6#户型图
- 而5#、9#、12#户型则和30号地块项目中的31栋户型相同。


5#、9#、12#户型设计
点评:
从社区规划与户型设计来看,该项目是一个比较大型(40万方,包含3188户)的纯住宅改善社区,没有所谓的底商,有的只是超高的绿化率及遍布全区的中庭园林。但是正是这样的一个大型纯住社区,恰恰要求项目内外公共设施要配备完善,才能算得上是宜居盘。从项目规划情况我们了解到区内的机动停车位一共有4891个,其中地下车位4764个,地上车位127个,人车比例超过了1:1.5,并有非机动车位3341个,完全可以满足区内停车需求。
从配套资源上来看,项目周边配套还算完善,交通上,227省道、康元路、中环北线、苏州北站高架路(在建)等,开车到苏州工业园区仅需20分钟,出行便捷。此外,根据苏州轨交7号线将经过地块附近,设立富元路站点,未来当地居民出行更为便利;教育上,除了西北侧2公里范围内的澄阳小学、苏州大学第二实验学校初中部,小区内部自带一个幼儿园;医疗方面,项目与苏州市广济医院、苏州市第五人民医院都不到1公里,距相城人民医院也仅有4公里;商业配套上略显不足,不过5公里范围内的采莲广场、天虹商场也能满足日常购物需求;另外,文徵公园、澄园、桂花公园等景观资源可供社区居民日常休闲所用……整体来说,这是一个比较宜居的项目。

不过,不可忽视的是,项目周围工厂也不少,富阳工业坊、苏州特雷卡电缆有限公司等距离都颇近,居住氛围稍有欠缺,城市界面有待提升。好在接下来周边这些工厂都可能会搬迁,所以未来还是比较值得期待的。
值得一提的是,随着今年苏相合作区的成立以及全力推进,以高铁新城为纽带、正成为长三角城市群中桥头堡和主阵地的相城,再次进入发展加速道,除了大批高端企业,还有大批人口的强劲流入,以及必然增长的置业需求。庞大的购房需求向以苏相合作区为中心的周围板块外溢,而紧靠高铁新城板块的澄阳街道片区自然而然也再度热了起来。

图片来源于网络
目前,区域内在售的雅居乐新乐府、宽泰铂园、东原阅境、紫郡兰园等项目新房价格2.3W/㎡左右,待入市的还有5月刚成交的中锐地块,也已于近日出炉规划,将打造12栋10-18层的小高层住宅,且所有住宅户型面积也不小于100㎡,同样偏改善。相比片区内在售的多是高层刚改产品,漕湖置地&弘阳地产的这个大体量项目以大三房、大四房起步,将进一步补仓改善区域内房源,但同时,市场竞争依然存在。