1、剪力墙模板
剪力墙模板采用组合全铝合金模板,模板定型化、模数化,模板左右、上下、纵横之间均可组合拼装,模板的通用性好、互换性好,可供各种建筑平面形状的大模板工程使用。组合铝合金模板周转使用次数达200~250次以上,模板每次的摊销费用小,经济效益明显。
模板之间用快速锁销连接,如图7,使用穿墙螺栓Tr17,背楞用两条60X30Xδ2.5矩形钢管焊接而成,背楞有直背楞,直角背楞两种,和非标背楞(根据剪力墙截面专门设计订做的背楞),如图8

图7 快速锁销连接示意图

图8 背楞
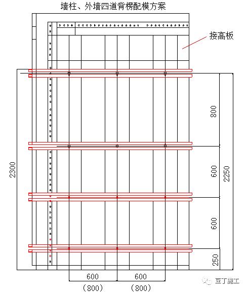
剪力墙墙身主拼模板宽是400mm,用400mm宽开孔拉穿墙螺杆模板,补充模板宽有: 350mm、300mm、250mm、200mm、150mm、100mm、50mm,配模时优先使用400mm宽标准模板,嵌补模板选用按从大到小的原则。
400mm开孔模板与400 mm模板交替安装,开孔模板上安装穿墙螺栓,并且水平安装背楞,穿墙螺栓之间的距离600~800mm,不得大于800mm。L形剪力墙内墙安装直角背楞如图8。两条背楞对接如图9-1所示


剪力墙铝合金模板配模图

图9-1 背楞对接示意图
外墙面和电梯井配置模板时,上部水平配置200 mm开孔模板,水平模板与楼面平,并在K板开孔处用M16X100螺栓安装M16螺母,水平模板长度与外墙长度一致。利用穿墙螺栓安装外墙模板支撑,K板伸入下层不少于200mm能够保证上下模板交接处平整不错台。如图11。
拆除这层模板时不用拆除这个水平放置K板模板,它做为安装上层模板时的支撑。

图11 外墙上层与下层模板交接安装示意图
墙体厚度控制:在两模板之间对拉螺栓上安装定位穿墙管,定位穿墙管由定位胶塞和PVC管组成,墙体厚度控制准确。如图13

图13 墙体厚度控制方法
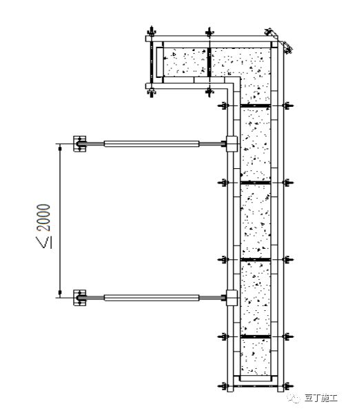
外墙体垂直度控制:为了准确、方便调整墙体垂直度,在墙体模板一侧安装斜支撑,在一侧安装2支以上斜支撑,斜支撑间距不大于2000mm,墙柱根部加装压角木条.防止调整柱位移动,而且可防止柱根部漏浆.如图14,楼面板浇注时必须预留斜支撑安装孔。


图14 墙体垂直度控制
2、梁模板
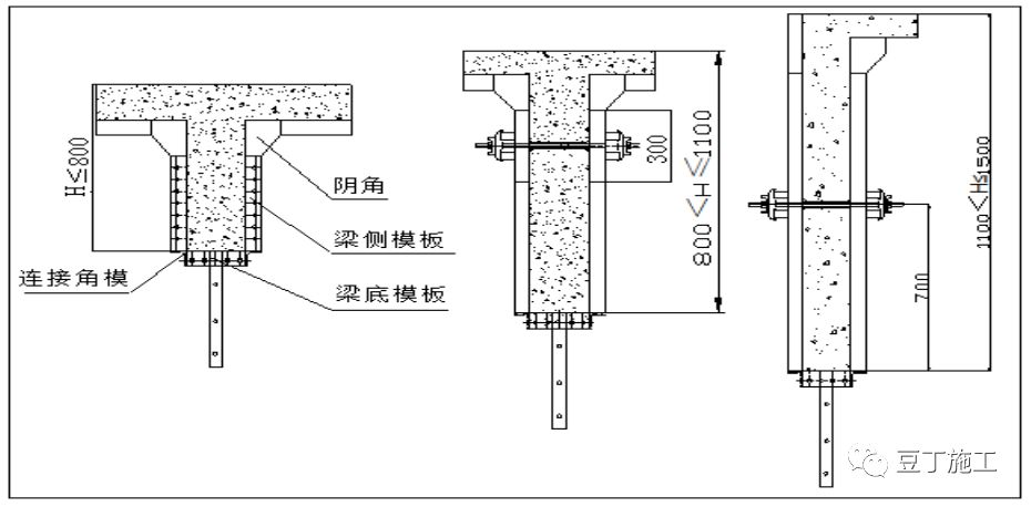
梁底、梁侧模板采用全铝合金模板,梁侧模板与梁底模板以连接角模连接,主次梁侧模以铝阴角连接,梁侧模板与楼面模板以铝阴角连接。如图17

图17 梁模板的组成
在梁底模板设置梁底早拆模板,在梁底早拆模板下安装独立钢支撑,支撑间距最大不超过1.3米,如图18

图18梁底早拆头布置示意图
当外侧梁没有楼面时,梁侧模板配到与楼面平,斜支撑安装在梁底早拆头上,以此防止胀模及校正侧模垂直度和平直度,如图19

图19 梁侧模板斜支撑安装
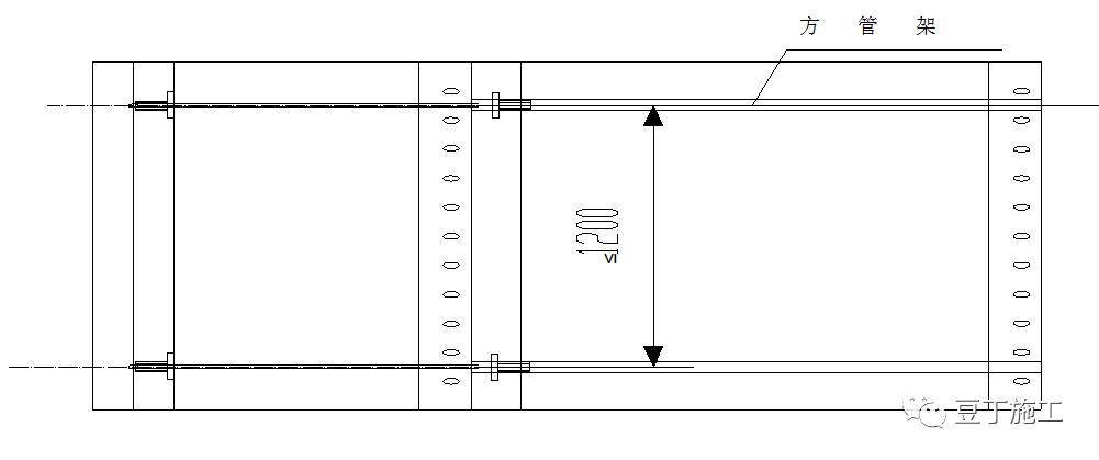
当梁两侧都没有楼面时,在梁侧模板上部用对拉板连接,对拉板间距不大于1.3米,如图20

图20 对拉板连接
3、楼面模板
采用全铝合金,模板重量轻,拼接操作灵活方便,表面质量好,配用早拆支撑系统可提高模板的周转效率,使用独立钢支撑,支撑间距为1100mm~1200mm。如图21

图21 楼面铝合金模板图

图22 楼面模板配模

图23 楼面支撑方案
4、沉箱模板
基本体系:支撑水泥垫块+定型铝合金模板+拉杆,支模要求如图24所示:
(1)、支撑水泥垫块,高度按现场所浇混凝土板的厚度进控制,间距控制≤1m。
(2)、沉箱采用铝合金模板,四周采用铝合金阴角模,边长大于1.5m以上的中间用拉杆进行加固,防止中间变型,沉箱周边进行拉杆固定,拉杆分沉降下部角铁拉杆和上部角铁拉杆.如沉降80的只采用上部角铁拉杆。

图24 沉箱100模板支固方案
5、飘台模板
当墙面有上下两飘台时,下飘台与墙体一起浇注,支模如图25所示
(1)、支撑水泥垫块,高度按现场所浇混凝土板的厚度进控制,间距控制≤1m。
(2)、飘台上方吊模用方管连接
(3)在吊模对面阴角上开孔,装穿墙螺杆加固,一端模板开孔。
(4)、墙体厚度控制则在两模板之间装定位胶管。
(5)、吊模下边用拉杆与飘台端部模板连接。


图25 上飘台模板加固方案
6、下飘板支固配模方案 如图26

图26 下飘板支固配模方案
7、预留孔及管道的预留方法
(1)先做钢框,其大小同留孔尺寸,厚度为内外两模板之间间距,在留孔部位.铁箱内部有2销钉孔,与楼面板连接.
(2)固定在模板上的预留件和预留孔洞均不得遗漏,安装必须牢固,位置准确,其允许偏差,应符合要求。如图27
(3)传料口:为方便模板上下转运材料,根据楼层面积特设传料口, 传料口尺寸200X800加固方案如图28


图27 控制孔方案


图28 传料口方案
8、梁板支撑系统
本系统是独立式钢支撑,只用可伸缩微调的单支顶来支撑,是一种技术经济效果明显的早拆支撑系统,主要用于建筑物水平结构作垂直支撑,承受梁板结构自重和施工荷栽。
钢支撑系统的特点
(1)该系统是真正意义上能够实现早拆的支撑系统,当混凝土达到拆模强度时,除单支顶和早拆头外,其余均可拆除,既保证上层结构连续施工又能加速模板周转使用,可以大量节省模板一次投入量,减少模板配置量的1/3~1/2。如图31
(2)应用范围广,支撑杆不受固定平面尺寸的约束,因此对于不规则建筑平面应用自如,支撑杆间距、纵横梁间距可根据梁板荷载及时调整,不受连接杆件约束,比碗扣架应用方便。
(3)同样支模面积条件下,本系统比碗扣架、钢管扣件架耗钢量少得多,仅为碗扣架或钢管架的30﹪,因此塔吊的垂直运输量少。
(4)支模现场的支撑杆相对少,因而人员通行、材料搬运畅通,现场施工文明。
(5)支模速度快。以塔式住宅楼为例,每层600~800㎡支模面积仅需半天时间,仅为其它支撑系统二分之一至三分之一的时间。
(6)铝合金模板、钢支撑拆除后,集中到卸料平台上或传料口处,由塔吊垂直运输,也可由人工从楼梯间传料口转运,受机械制约少,有一定灵活性。

如图31 楼面、梁模板实际早拆效果
楼层高度为3.0米,直接用单支顶支撑,如图32


图32 直接用单支顶支撑