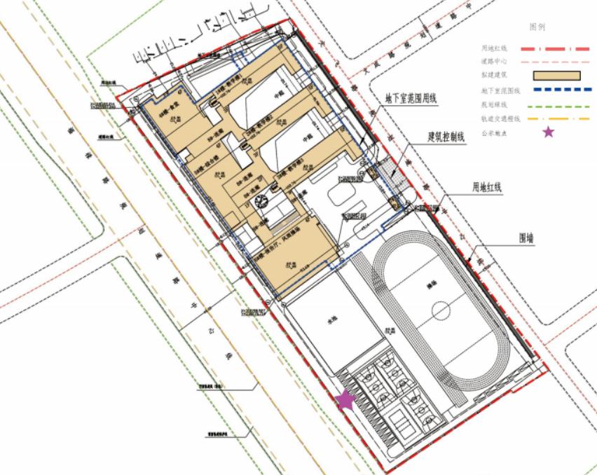
江宁区政府网站上贴出了关于“禄口中心小学原址重建工程项目规划设计方案”公示。

禄口中心小学原址重建工程项目位于南京市江宁区禄口街道福禄路以东、信诚大道以北,规划用地面积约54.8亩,规划用地性质为A33a小学用地,容积率≤1.2,建筑高度≤24(m),建筑密度≤30%,绿地率≥35%,拟建一处36班小学。

目前项目单位已完成了该项目规划设计方案,规划总建筑面积约4.8万平方米,其中地上建筑面积约3.4万平方米,地下建筑面积约1.4万平方米。


目前禄口片区有三所小学(禄口小学、禄口二小、空港小学),有各自的施教区划分,具体施教区划分如下:
空港小学:来凤路以西、信诚大道以南、翔宇路以东、华商路以北区域。
禄口二小:永欣新寓(含机场二期复建房)、天元新城(里外城)、玺禄苑(葵花社)、机场社区(一小区)、白云路社区茅村、永欣社区四角井与肖家山村。
禄口小学:除空港小学和禄口二小施教区以外的其他各社区。
双学区一:百利明珠、百利华府、百利广场和来凤小区。以上社区的适龄儿童可以自由选择禄口小学或空港小学,只能选择一所小学报名。
双学区二:黄桥社区、永欣社区臧家村、高伏社区大伏泽村。以上社区的适龄儿童可以自由选择禄口小学或禄口二小,只能选择一所小学报名。
教育资源爆发!将新增3所学校
除了现有的3所小学之外,禄口空港新城还将新增3所学校。
1、玉振路幼儿园
南京空港玉振路幼儿园建设项目位于南京市江宁区空港新城玉振路以东、礼尚路以北,规划用地面积约 12.31 亩,规划用地性质为 Rax 幼托用地, 容积率≤1.0,建筑高度≤12(m),建筑密度≤30%,绿地率≥35%,拟建一处18班幼儿园。
项目大致位置在中海云麓公馆、奥园金基天著尚居附近,未来将为周边小区业主孩子提供教育配套服务。

目前项目单位已完成了该项目规划设计方案,规划总建筑面积约 1.05万平方米,其中地上建筑面积约0.7万平方米,地下建筑面积约0.35 万平方米。

2、礼尚路小学
礼尚路小学位于江宁空港开发区龙川路以西、礼尚路以北。我在地图上标注了大概位置如下:
可以看到,这所小学是目前如意湖核心区唯一的公办小学,未来将承载柏景湾、如意郡、碧桂园和中铁地块等一大批业主孩子的入学。
项目总建筑面积38822.99㎡,总投资额24770.2万元。招标公告显示,工程总服务期约900日历天,也就是2年5个月左右,如果能在2021年一季度开工建设,最快2023年9月即可招生。
3、赫贤国际学校
赫贤国际学校校舍等由禄口空港新城或第三方投资建设,义格教育负责后期的教*运学**营,学校建设体量约50000平方米,将建设教学楼、宿舍楼、剧场、操场、食堂、防雾霾气膜运动场、游泳馆等设施。

学校计划招生规模为1800~2000人,将满足幼儿园、义务段和高中多层次教育需求,高*特中**色阶段将引进英国赫德伍德豪斯高中联合办学。赫贤国际学校建成后,可辐射全南京乃至苏皖两地,满足周边更多入学者更高的教育需求。
禄口空港新城的教育资源一直以来较为匮乏,仅有一所学校挂牌百家湖小学,未来新增学校是否会引进名校资源,值得期待!