你好,这里是 BIMBOX。
过去的这两年,是国产软件爆发的两年,我们看到不断有新的 BIM 软件出现在大家的视野里,行业变得很热闹,未来的市场也变得扑朔迷离。
不过软件有比较长的研发周期,我们看到一款软件发布,却很难知道它背后几年甚至十几年的故事。
今天想和你聊的,是一家我们从学生时代就成为用户的老牌国产软件公司:PKPM 软件的开发公司构力科技,和他们几经波折才诞生的国产 BIM 软件: PKPM-BIM。
咱们先讲故事,再看看这款软件到底怎么样,最后再聊聊我们自己对于 BIM 软件市场的一点看法。
文章会谈到下面四个内容:
➤ 构力科技的BIM之路
➤ 认识PKPM-BIM
➤ 构力科技的BIM理念
➤ BIMBOX观点:服务与生态
01▼ 构力科技的 BIM 之路
构力科技前身是中国建筑科学研究院建筑工程软件研究所,这家在结构计算方面有着极高市场占有率的公司,在 BIM 的探索之路上却是充满了曲折。
国产 BIM 软件的研发,构力科技出发的很早。那还是 2011 年,BIM 的风刚刚在国内刮起来不久,国外软件在中国落地生根,而大家对于国产 BIM 软件该怎么做还没有什么方向。
构力那时候还叫建研科技设计软件事业部,当时用于结构计算的 PKPM 在市场上发展了20多年,取得了很大的成功。建研院领导带队到美国考察学习 BIM之后,决定在 BIM 技术的研发上发力。
最初的产品规划,是要开发从三维图形平台,到BIM平台,包含建筑、结构、水暖电全专业的 BIM 设计软件。
此后的三年时间,基本上是完全基于自己的技术积累开展研发。从建筑科研院所诞生的软件公司有一个先天的优势,就是在产品尚未成熟的时候,就能有兄弟单位的设计师不断提供软件功能的需求,这在开发初期是很重要的资源。
那三年研究下来的成果,已经能初步完成房建领域全专业的三维建模、基于模型的出图,以及算量清单等功能。
也正是在那个时候,他们碰到了研发 BIM 建模软件最大的困难: 三维图形引擎的性能和效率 。最直接的体现就是模型体量一大,软件就承载不了了。
于是他们在自主研发的同时,也开始向国外优秀的BIM软件公司寻求合作,了解学习他们的先进技术,尤其是三维图形引擎,和正向设计理念。通过和大厂之间的合作,PKPM-BIM 一定程度补上了短板。
2015年9月22日,他们举办了「中国BIM软件生态环境大会」,发布了PKPM-BIM软件(当时叫PBIMS)。17家中外企业宣布共同建设中国 BIM 软件生态环境,近千名行业里的观众参会,这样的发声在国内属于首次。

借助 PKPM 已有的影响力,积累了一些种子用户。但受制于当时研发资源还比较有限,在一些软件的细节上没有很好的落地,一线设计师对软件的期待和他们实际开发的成果存在着差距。虽然提出了生态建设的理念,但是由于时间、技术、商业等各种原因,没有很好的达到预期。
在Revit 已经席卷了国内九成以上的 BIM 建模软件市场时,构力科技既要研发国产软件,又要考虑生存问题。恰逢十三五期间国家提出了发展装配式建筑的指导意见,构力找到装配式建筑设计这个方向作为BIM软件市场化的切入口。一方面是看到了政策的大方向,一方面也是抓到了 BIM 精细化设计能施展手脚的领域。
有时候,除了耐心和眼光之外,一家企业还需要一点点运气。这一次选择,赶上了国内装配式政策的利好和项目需求的爆发式增长,而市场里还没有很成熟的国外软件能满足国内的装配式设计要求。
他们在这个环境下加大了资源投入,开发出来的 PKPM-PC 迅速迎合了市场需求,2017年后的爆火很快给团队带来了效益,到今天已经是一个成熟的产品了。

点击图片查看 PKPM-PC
基于 30 多年在图形引擎技术积累,加上十年的自主 BIM 软件研发实践的历程,2021 年,构力科技发布了基于自主三维图形内核的 BIM 基础平台 BIMBase,包含几何引擎、渲染引擎、数据引擎三大核心,提供了九个大功能,包括参数化组件、通用建模、数据转换、数据挂载、协同设计、碰撞检查、工程图、轻量化应用、二次开发。

而这一次,因为中美贸易战引发的BIM软件「卡脖子」问题被行业内广泛探讨,企业、政府对于自主可控的BIM软件也有了迫切的需求,出台了相关的鼓励政策。
资金、技术和政策几个利好因素都凑齐,构力终于可以依靠内部的持续研发和外部的环境支持,完成了一次彻底的国产化替代,将 PKPM-BIM 软件的底层平台替换为完全自主知识产权的 BIMBase,建筑专业的功能也全部自己重新研发。
这次基于自主三维图形平台的 PKPM-BIM,做到了在建模功能方面基本与国外软件相当,在专业功能上面也凸显了构力公司的本土技术优势,也得到了一批有国产化情怀设计院的力挺,目前他们和国内多家设计院,在项目和合作研发方面都铺开了深度的合作。
尽管在软件完成度方面和国外软件还有一些差距,但对于普通公建和住宅项目已经可以有比较好的支撑了,在报审、数字化交付和正向设计等方面,也逐渐开花结果。
现在这套体系被构力科技整合成一个全新的 BIM 产品,就是今天咱们要重点聊的 PKPM-BIM 。

从 2011 年启动 BIM 软件研发,到 2021 年发布 BIMBase、PKPM-BIM 和 PKPM-PC,这十年时间里,构力科技除了软件本身的研发,对待使用者、合作者的视角也发生了非常大的变化,这一点我们在聊完软件之后,放到最后来和你说。
01▼ 认识 PKPM-BIM
目前这款软件可以提供建筑、结构、水、暖、电五个主要专业的数字化建模和应用功能,主要包括模型创建,BIM 模型审查,以及设计协作这几个大的方向。
软件在很多细节中也为设计师开发了不少的功能,所有细节功能没办法一个个拆解开讲,咱们先按照几个大的视角,快速带你体验一遍这套软件,再来聊聊我们关于国产 BIM 软件的一点思考。
1.工具视角:怎样提升效率?
在产品的研发理念上,PKPM-BIM 借鉴了很多二维的设计习惯,同时引入了一些三维的工作方式,尽可能让设计师在继承传统工作流程的前提下,逐渐习惯 BIM 的工作方式。举几个例子。
➤ 出图
拿出图这个工作来说,软件是从模型空间形成视图的映射,再形成一套图纸集,虽然是三维工作方法,但本质上是继承了 CAD 软件里面图纸布局的理念。
这里 PKPM-BIM 有个比较特殊的地方,它是先有了模型,然后通过一定的规则,来为你生成一个图面,而不仅仅是把三维模型的平面投影给「切」出来。
比如,为了符合国内出图的标准要求,软件提供了符号化的功能,通过选择和匹配,三维的设备构件可以用符合国内要求的二维符号来替代生成。

另外,你不需要为了出专业图,逐个设置每个视图各专业的显示状态,而是可以在生成图纸的时候,选择某个楼层,再选择对应的某个专业系统,比如采暖图,软件会自动完成筛选构件、隐藏无关专业的工作。
➤ 识图
很多项目的实际情况是,方案阶段图纸会有大量的调整,二维的效率要高于三维,所以往往是在方案设计师已经生成了一套 CAD 方案图纸的情况下,基于 BIM 的深化设计才正式介入。
在这样的情况下,基本的墙柱板就不需要手动建模,可以从图纸提取这些基本数据,除了一般的 CAD 图纸,软件还支持识别天正的图纸。
天正图纸一般是多个楼层合并到同一个文件里,PKPM-BIM 可以在同一个文件里逐层提取标准层图纸。拾取之后通过楼层组装功能,定义好每一层的标高以及标准层的数量,就可以初步自动生成建筑模型。
图纸中的墙、柱、门窗、楼板等构件,以及房间信息,都会按照设定好的楼层关系识别到三维软件环境里,节省基本建筑的建模时间。

△天正图纸直接识别为BIM模型
当然,你也可以不用 CAD 识图,而是自己重新创建墙梁柱板、门窗、楼梯台阶、屋顶幕墙等建筑构件。这个过程会提供很多提升效率的工具,比如可以框选墙体批量布置楼板,批量创建和编辑幕墙嵌板等等。
软件的效率提升,在机电这个专业体现得很明显。
➤ 机电智能连接
从开发完成度来看,目前软件对三个大专业的建模支持比较完善,给排水系统、消防系统、风系统、空调系统、采暖系统、照明、配电、动力等常规常见系统,都可以完成管线绘制和设备布置,同时也支持设备管线智能连接、自动规划路径、自动计算参数等快捷功能。

目前机电专业的绘制已经达到比较自动化的程度了,绘制管道的过程中可以自动生成过渡件、弯头和三通等管件,也可以通过框选,自动生成正确系统的支管,连接干管和末端设备。
在调整管线综合的过程中,软件也通过内置避让规则,提供了一些便捷的调整工具,比如管道对齐、打断、连接、翻弯等操作,给调整工作增加了不少效率。
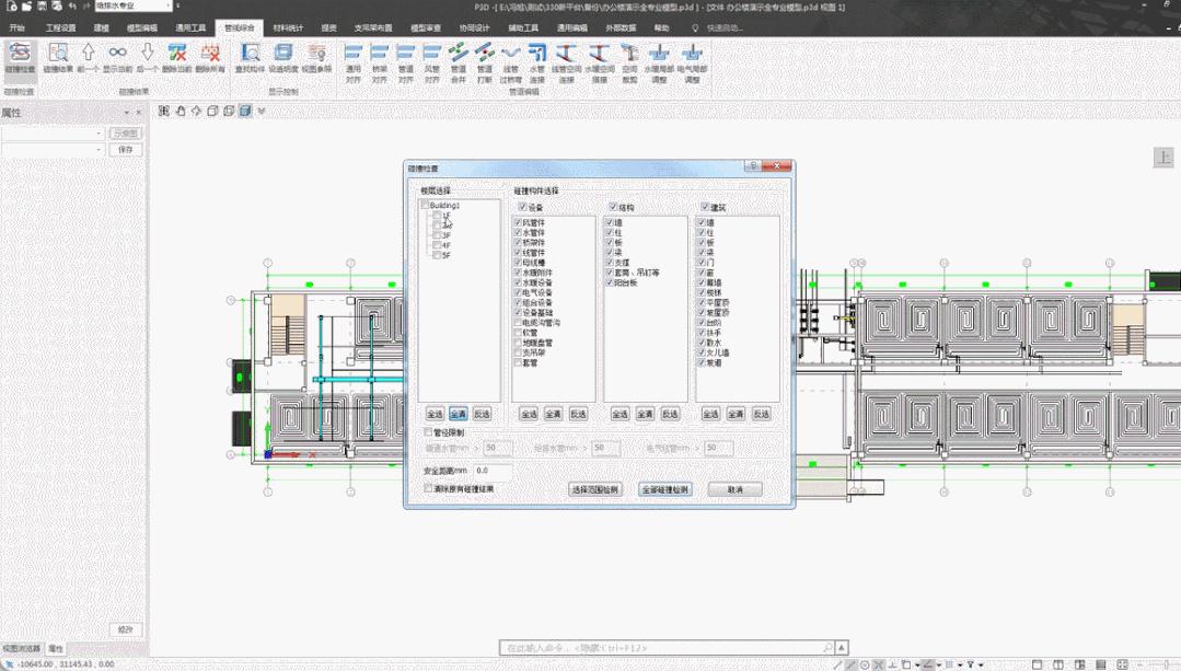
➤ 碰撞检查
用 PKPM-BIM 做碰撞检查,设计师不需要把模型导出、检查出错误再回到模型修改。选择楼层、构件和检查范围,就能在软件内生成检查报告,可以在报告里直接点击,定位到碰撞位置,直接修改。
比较有特色的地方是可以按管径来筛选碰撞,比如小于 50 毫米的给排水管、小于 20 毫米的线管不做碰撞,减少没必要的检查和调整工作。

2.专业设计视角:解决核心设计业务
PKPM-BIM 这个产品的总体定位,是面向设计院的一线人员,希望给他们提供一个替代现有设计工具的选择,去解决自身的核心设计工作业务,而不仅仅是满足 BIM 翻模的需求。
设计关注的工作领域很多,咱们举几个例子。
➤ 规范检查
目前有一些省份已经有了模型审查的相关规定,PKPM-BIM 也专门提供了相关的功能。
关于 BIM 审查的争论比较多,主要集中在应不应该强制要求,以及检查项目是否完备。在 BOX 的视角来看,「把一些技术指标交给机器去检查」是一个确定性的趋势,而技术层面来看,现在也确实是在发展的过程,对于各省繁多的检查项,规则和算法的建立也还不算完备。
所以这里我们重点讨论的并不是行政层面的报审问题,而是规则检查是否能带来帮助的技术问题。
你可以在软件里设置整个建筑的各种属性,比如建筑分类、耐火等级、建筑级别、消防系统、最大净高等信息。

模型检查之前,可以选择依照哪本规范来进行审查,目前软件提供了广州、湖南和南京三地的审查范围可以批量选择。

你可以基于所在省份的 BIM 审查规则进行模型自检,比如哪些构件缺失了必要的属性信息、房间和分区是否创建完成、对应的图层是否设置正确、防火等级是否达标等等,对于不满足要求的构件,可以高亮定位,批量修改。

自检完成之后,就可以一键把模型上传到服务器,进行正式的 BIM 审查,审查结果会从服务器返回到软件里,弹窗提示模型中哪些地方不符合审查规范中的哪一条。
你可以直接选择某一条,对应的未过审构件会以列表形式显示出来,按照审查要求作出修改。对应的错误全部修改之后再提交,就可以通过审查了。

构力科技认为,即便在非强制 BIM 报审地区,这样的规则审查也是有价值的。它能通过在企业内部建立一定的规则,帮助设计师快速查找一些设计失误。一些二维图纸中一眼就能看出来的问题,其实不需要 BIM 来帮忙,而有一些规范项目,比如建筑的防火疏散距离,在图纸上就很难发现问题。
对于一些经验不足的年轻设计师,这个功能不仅能帮助他减少错误,也能在三维设计的过程中像一位老师傅一样随时给与指导,让他不是陷在简单枯燥的建模工作里,而是能实打实提升自己的专业知识水平。
这背后的产品思路是:不要让 BIM 给设计师增加工作,而尽量让它帮助设计师去解决问题。
➤ 结构计算
因为是自家的体系,所以软件和 PKPM 结构计算是可以无缝对接的,结构计算模型可以在 PKPM-BIM 里直接打开,生成结构构件。
当然,你也可以用常规的三维结构模型,添加符合出图规范的轴网、标注、剖面示意等元素。
反过来,软件中建立的模型,也可以直接导出到 PKPM 结构计算软件中来验算结构。

△PKPM-BIM中如何做结构分析计算
➤ 节能分析
基本建模工作完成之后,可以一键跳转到节能设计专业模式,你可以设置项目的位置信息、用地性质、建筑类型等属性,然后选择这个项目遵照的节能设计标准,给软件节能计算做基础参考。

△PKPM-BIM中如何做节能分析计算
利用软件提供的智能房间匹配,可以直接把建筑模型中的房间类型与标准中规定的房间类型做匹配,不需要重新定义房间。
接下来对建筑内的材料进行编辑,给屋面、内外墙、窗、幕墙等构件设定传热系数、太阳辐射吸收系数、传热阻等参数。
剩下的规定性指标计算就交给软件自动完成了,还可以直接生成一份节能设计报告书,不满足要求的部分会重点提醒。

➤ 设计与运维对接
目前很多项目的设计,不仅要满足施工出图的要求,还要与后期的运维对接。
PKPM-BIM 在这方面使用的是 xdb 数据格式,里面的数据类型还在不断完善,软件提供了类型属性管理器,让设计师能方便地添加不同构件的属性。

3.协同工作视角:让工作流通起来
在这个视角从现在往回看,你会发现 BIM 的发展史,很重要的一条主线是从单机软件走向多人协同的历史。
不同开发商对协同的解决方式不太一样,Autodesk 和 Graphisoft 都使用了基于服务器的多人协作模式,Revit 使用中心文件的方式,ArchiCAD 的解决方案是 BIMCloud。其他市场里的解决方案,大多数都偏向于模型轻量转化后的在线协作。
PKPM-BIM 为了迎合国内多专业异地办公的需求,提供了更优的方案:基于中心数据库构件级别的协同模式,也就是多人提前分配好用户权限,在同一个模型中工作,每个人只能编辑自己的构件,避免数据冲突。数据在同步服务器及本地*载下**的过程,又用增量更新的方式提高数据同步的效率。
这种协作模式带来的直接好处就是,建筑、结构和机电等跨专业的设计师,可以从「各自画图、定期开会」的模式,转变为随时互相帮助的实时协作模式。
目前软件提供的协同功能里,有几个比较突出的功能值得说一下。
➤ 权限管理
管理者可以通过预设不同专业的权限,解决工程师对构件的管理和编辑,避免多个设计师的操作冲突。
一个构件被某个人锁定,其他人就失去了对这个构件的编辑权限,但可以查看到它的所属权限,直到锁定这个构件的设计师释放锁定,其他人才能进行操作。

➤ 变更查询
设计过程中可以查看不同版本构件的变更情况,每次从服务器上*载下**数据,都可以查看最新的变更情况,同时变更构件会高亮显示,方便快速定位。

对于服务器上记录的不同版本,还可以通过「版本比对」的功能查看两个版本构件的变化情况,并且通过列表和构件高亮的方式呈现出来。

➤ 开洞提资
项目各专业实施过程中,往往不是完全按顺序逐个完成工作,而是在深化的过程中互相参照修改。
软件提供了一套从提资到处理的工作流程。
比如,对很多管道穿墙穿板的地方,软件提供了自动开洞和加套管的功能,机电专业设计师只要批量选择楼层、机电专业和建筑结构,就可以一键在整个项目范围里搞定。
机电和建筑设计师的权限有明确区分,开洞的尺寸和位置是机电专业提的,但洞口要在建筑模型上开,所以这里的批量操作会作为「提资」发送给建筑专业的负责人,建筑专业就会在模型里看到红色高亮的开洞位置。
这时候建筑设计师不需要像以前那样照着洞口图一个个去开洞,只需要选择楼层,审批通过,就能一键批量给墙体开洞,这个功能的效率还是非常高的。

除了建筑专业外,结构专业也可以实现与机电专业的开洞提资处理。目前还没上线的功能里,还有设备专业给结构专业提资荷载、建筑专业给设备专业提资点位这样的流程,这样的功能还挺值得期待的。
另外,除了基于模型内部的协作,PKPM-BIM 也支持轻量化的协作模式,模型可以一键导出 PModel 格式,生成一个二维码,用在线方式给没有建模软件的人,浏览内嵌了信息的模型,也可以针对特定视角和构件在线批注问题,方便多人在线协作。

4.生态构建:强项互补
在反思 2013 年到 2016 年这几年的产品时,构力科技会经常想到「生态」这个词。早年的做法,就是死磕技术,把用户所有需求都列在自己的开发清单里,但 BIM 这片海太广袤了,不寻求合作很难把船开远。
如果单纯从一个三维设计工具这个视角来看,PKPM-BIM 已经做的很好了,有自己的图形平台,有全专业的设计支持,也有外部的数据互通,但如果把视野放到生态的宽度,它还有很长的路要走。
作为一家从老牌软件向 BIM 转型,也经历了无数市场「拷打」的公司,构力自己也深知生态的重要。至少在几个方面,我们看到了他们「共创国产 BIM 生态」的行动。
➤ 中信数智:智能构件库
PKPM-BIM 自带了常用素材库,按照二维和三维进行了区分。于此同时,他们也联合中信数智,合作开发了一个基于 BIMBase 的参数化构件库,按照国内的编码标准进行分类,可以基于 Python 编程脚本创建参数驱动的自定义构件。

➤ 中建西南院:结构出图
其实对于结构专业来说,BIM 模型的基本构件创建并不困难,主要难在结构计算和出图。
在这个领域,中建西南院对接 PKPM-BIM 开发了 EasyBIM,集成在软件里,可以基于 BIM 模型生成全套的结构施工图。
拿梁配筋图举例,你不需要再做繁琐的配筋设计,基于BIM模型就可以迅速生成符合工程习惯的梁配筋图。
在参数设置面板里,可以根据设计师的习惯进行大量的出图配置,比如梁配筋倾向表、钢筋贯通原则、钢筋选型等等很多的选项。

设置完成之后,只要选择需要出图的楼层,软件就会读取模型里面的构件尺寸参数,以及设定好的各种配筋规则,自动生成带有完整平法标注的结构配筋图,也可以方便的进行快速修改和一键式校对审查,效率真的是非常高。
此外,可以针对不同项目类型创建和使用不同的配筋方案,如住宅方案和公建方案。支持配筋方案的导入导出,便于设计师之间分享与协同工作。

此外,他们正在和高佳科技联合开发的工业设计软件 EP3D,是一套三维工厂的设计软件,也在和品茗公司对接,在场地布置、施工管理和造价算量领域展开合作。
软件的主观体验咱们就聊这么多,如果你希望自己尝试一下这款软件,也可以很简单的*载下**使用。
目前构力已经把以前每个软件单独授权的模式,改成了一个叫做「构力云账号」的形式,无论是老用户还是新用户,都可以像在 Steam 里购买游戏一样,用一个账号*载下**试用 PKPM 所有专业的软件,一键*载下**自动安装,软件试用期是一个月,到期也可以再继续申请试用。
03▼ 构力科技的 BIM 理念
咱们看一个软件,不光是看功能,也会去看他背后的开发者为什么要做这些功能,背后体现着什么样的理念?
在准备这一期内容的时候,我们和 PKPM-BIM 的产品经理进行了两次长谈,他也是行业里一位真正的老法师了。我们谈到了很多这家老牌软件公司的故事,也询问了他们对未来的看法。
他告诉我们, 2015 年整个行业里还在探索的时候,PKPM团队就把「正向设计」这个理念先讲出去了,经过了六七年时间,他们还是希望自己能做正向设计的引领者。这当然不是说建个模、出个图就算正向设计了,而是希望去帮助设计院在下一个时代里重新梳理自己的业务流程。
一方面他们希望把出施工图这件事做得更专业,就像一开始讲出图功能时说到的,不是把三维模型切一刀就叫出图了,而是要基于国内标准,用模型去生成图纸,在继承传统二维出图方法的同时,把 BIM 能发挥的价值给发挥出来。
另一方面,他们希望做「智能设计」而不是 BIM,因为对于设计师来说,一个工具是不是 BIM 不重要,重要的是能让设计这件工作本身更智能,让算法更多替代那些低效率的工作,让知识在项目之外得到传承。
最后,他们认为设计是数字化建筑的源头,所谓设计院的转型也肯定不是传统业务更高效一点的升级,而是能在整个数字资产交付这个层面完成业务扩张,用数据去推动解决后期运维的应用。
04▼ BOX 观点:服务与生态
过去一年,我们看了很多国产软件,他们功能各异,对市场的视角和玩法也不一样,但和国外软件相比,我们看到了六个字的共通点: 强服务、弱生态。
「强服务」体现在软件本身的设计语言,也体现在针对用户的服务态度上。
咱们有时候在抖音和淘宝里会刷到一些不那么「国际化」、但又解决真问题的小物件,比如这种在家具背后能拐弯的插座:

这种产品能做出来,卖得还真好,背后是对真实生活中的痛点、对用户的抱怨有觉知的体现。
国内做得比较好的软件公司,都积累了大量来自一线工作人员的痛点和诉求,并把它们转化成功能,这是本土化软件最明显的优势,也是在国外软件已经占有市场这个局面中的「*局破**点」。
而这些需求当然不是用户白给的,而是在地毯式服务中一点点拿到的。
采访构力科技的时候,他们给我们讲了两个故事。
当时南京地区第一个 BIM 过审项目,铁北中学项目,在争夺001号BIM审查证书的时候,选择了用 PKPM-BIM,当时设计人员对 BIM 软件还不熟悉,就请他们去驻场服务。
构力的团队用3天的时间教他们怎样使用软件,又在20多天的时间里辅助他们在设计过程中用规范检查工具来审核模型。另一家设计院的项目也在竞争,他们对国外 BIM 软件比较熟悉,所以提交报审的时间比较早,但是多次修改未通过。结果构力服务的这家设计院,因为提交模型之前已经进行全面的内审,反倒是一次性通过,成为南京第一个BIM过审项目。

另一个是他们最近一直在配合的广东省院,这家设计院曾经尝试过用 BIM 技术,但因为对软件功能的定制需求一直得不到开发商的反馈,导致技术落不了地。从去年开始他们跟构力合作推进 BIM 正向设计,构力的产品和研发人员都扎在广东驻场,以天为单位跟一线设计师收集问题反馈,提出来的功能需求能在一两个月给做进去。

这两个故事体现了国产软件公司贴身服务的两个特点:一是同时扮演咨询和培训的角色,陪伴客户做项目;二是快速响应使用者需求,把诉求转化为生产力。
甚至可以说,我们看到国产软件很多独特的功能,都是这样被用户的需求给「养」出来的。
而「弱生态」则是体现在研发费用有限,只能深耕某一个领域,不太可能遍地开花;同时因为入局比较晚,建立合作的伙伴数量也比较少。
在生态建设这个领域,构力找到了该去的方向,但还有不少工作刚刚起步,正式合作并有了成果的伙伴还不算多。
与国外相对成熟、生态已经很完善的软件相比,构力也很明确的表示,不仅欢迎、也愿意投入资源,去和行业里潜在的伙伴建立合作。
而在这种生态还没完全建立起来的背景下,我们也看到摆在很多有意从事研发工作的人和企业面前的新机会。
比如,目前软件还不支持完全的可视化界面来创建自定义参数化构件,这就有大量真实的构件库需要创建积累,这项工作需要有一定 python 语言基础的人才能完成,这就是一个有点门槛、但跳跳脚也能够得到的机会。
再比如,尽管我们看到 PKPM-BIM 已经有很多方便一线设计师工作的提效功能,但软件的开发有自己的节奏,一些设计细节处的二次开发、智能化设计的联合研发,乃至于施工深化阶段和运维阶段的功能创新,都是一家公司无法兼顾的,那么无论是小规模的二次开发、深度的联合研发,哪怕是在其他平台已有插件功能的底层移植,都还有很广阔的合作空间。
我们也看到像西南院这样的国企单位,选择在国产自主软件上研发结构出图功能,把自己积累多年的知识凝练成一个简单好用的软件,既能避免重复造图形引擎的轮子,也能在完成某些科研项目的同时,开辟出新的市场化道路。
回想 BIM 刚刚进入国内,还很少有人了解的年代,就有很多人白手起家,在欧特克还很空白的生态中做二次开发,十年一轮的跑马圈地之后,很多当年的小公司,现在已经长成很大的企业了。
对于很多国内有二次开发能力的个人和团队来说,和国产软件的生态合作,或许是一个竞争更多元的市场中全新的机会。
好了,今天的内容就聊到这儿,有态度,有深度,BIMBOX,咱们下次见!