【楼盘名称】亿都新天地
【装修面积】97㎡
【装修风格】现代
【装修费用】10万
【户型结构】三居室
【设 计 师】宾莉

设计说明
客户是一对年轻的夫妻,希望自己的家能够简约、时尚、大气又不乏有一些传统的文化气息,在讲述自己的需求的时候,描述得比较简单,希望满足基本的功能的同时,不会让空间看上去太拥挤太繁琐。

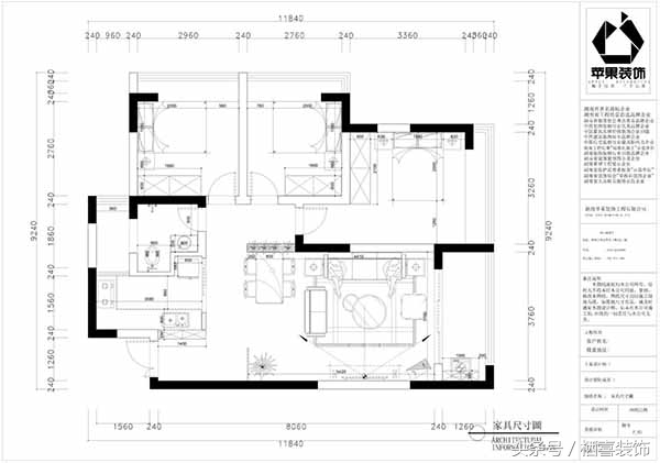
平面方案
根据业主的需求,我们给出了下面的方案,在充分利用空间的基础上,展现业主的个性需求。

客厅
休闲阳台与客厅之间的推拉门用棕色木质镂空形式,若影若现之中体现空间功能的明确分区,不再是单调的一张门。石膏板出墙做错层的方案让电视背景墙的文化石非常的有格调,零落的层次让背景墙非常有立体感。配合背景墙的颜色,布艺沙发让人感觉非常的舒适,而沙发背景墙的空间也没有闲置,而是被置物架充分的利用起来,让功能和美观都得到了满足。

三维立体图
由于线条简单、装饰元素少,现代风格家具需要完美的软装配合,才能彰显出美感。例如沙发需要靠垫、餐桌需要摆设装饰、床需要窗帘和床单陪衬,软装到位是现代简约风格家具装饰的关键。通过这张三维立体图,我们可以很清晰的看到全套房屋的布局结构。

设计师 介绍

姓名:宾莉
入行时间:3年
设计理念:色彩能够表达情绪,也能够影响情绪,在色彩搭配完美的基础上提升设计的深度和感染度,也是保证生活品质的开始。
更多装修案例请关注:栖喜装饰官网