开春了,相信很多人家在选择自己心爱房子的样式,争取2019年住上新房子,但是有些地方建房面积可是有限制的,那怎么办呢?
小编今天推出这款,占地面积仅75平米,也能建出豪宅的即视感!

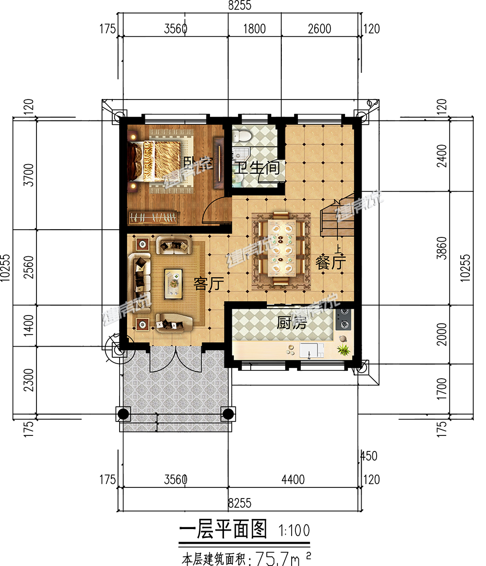
编号:JF8132,层数:3层,结构形式:框架结构,造价23-30万,开间8.255米,进深10.255米,占地面积75.7平方米,建筑面积197.22平方米,建筑高度12.1米



一层:客厅、卧室、洗手间、厨房、餐厅

二层:2个卧室、书房、洗手间

三层:2个卧室、洗手间、露台
开春了,相信很多人家在选择自己心爱房子的样式,争取2019年住上新房子,但是有些地方建房面积可是有限制的,那怎么办呢?
小编今天推出这款,占地面积仅75平米,也能建出豪宅的即视感!

编号:JF8132,层数:3层,结构形式:框架结构,造价23-30万,开间8.255米,进深10.255米,占地面积75.7平方米,建筑面积197.22平方米,建筑高度12.1米



一层:客厅、卧室、洗手间、厨房、餐厅

二层:2个卧室、书房、洗手间

三层:2个卧室、洗手间、露台