小白下面从八个方面全方位剖析此楼盘的产品细节,分析观点维持客观,中立,第三方。

先上规划总图

(地块示意图)

(图中楼栋间距标注均取整)
总图排布特点分析:
1、B、C地块相对规整,楼栋前后阵列式排布,东侧D地块较为异形且面宽不足,楼栋排布受限,难以形成较为规整的景观轴线;
2、楼栋朝向上主要为偏东南;
3、楼栋之间间距主要为33~40米左右,由于地块内主要为小高层,间距指标较好。
1、指标分析

(来源:自规局官网)
B地块小区分布23栋小高层,综合经济技术指标可得出:
1、住宅地块容积率为2.29,绿地率35%,建筑密度21.41%,整体指标数据较好(地块大,人口少);
2、商住比为0.86%,几乎为纯住宅地块;
3、未见明显的人防设施,可咨询下是否设置;
4、住宅地库车位配比为1:0.9,车位较为紧缺;
5、户型面积大于150㎡的占比为11%,主要瞄准刚需人群。
C地块小区分布18栋小高层,综合经济技术指标可得出:
1、住宅地块容积率为2.36,绿地率35%,建筑密度20.9%,整体指标数据较好;
2、商住比为1.7%,配置合理;
3、设置人防地下室,可咨询具体楼栋(地下大堂入户会存在高差,人防门等);
4、住宅地库车位配比为1:0.9,车位较为紧缺;
5、户型面积大于150㎡的占比为11%,主要瞄准刚需人群。
D地块小区分布8栋小高层,综合经济技术指标可得出:
1、住宅地块容积率为1.93,绿地率35%,建筑密度19.8%,整体指标数据较好;
2、纯住宅地块;
3、设置人防地下室,可咨询具体楼栋(地下大堂入户会存在高差,人防门等);
4、住宅地库车位配比为1:0.85,车位较为紧缺;
5、户型面积均小于150㎡,主要瞄准刚需人群。
2、区位分析

(示意图)
片区及地块本身素质:此地块位于天心长株潭商圈,处于三环外,但周边配套已经较为齐全。

(示意图)
地块周边主要节点:
1、800m~1.1km左右:先锋城铁站,中信广场站,尚双塘站(地铁1号线,步行10~15分钟左右);
2、直线200m~1km左右:友阿奥特莱斯,中信城市广场,环宇城,红星美凯龙;
3、直线1.2km左右:长沙理工大学云塘校区;
4、直线3.3km左右:大托机场。
综上所述:地块离地铁口不远,乘公共交通去市中心或上下班总体比较方便;在生活配套上,周边有两大商业综合体,比较便捷。
3、交通分析

高速路网 :往北可达长沙绕城高速(3.4km左右),通达省内外较为方便;
城市路网 :距离芙蓉南路很近(650m左右),为河东主动脉,不仅南北贯通河东各区,去株洲,湘潭也较为便利。
4、小区流线

人行、车行出入口: 各开口详见上图示意,下面主要讨论其合理性;

B地块北侧地上人行入园流线(次入口)与地下车行流线存在一定交集。

B地块东侧,地上人行入园流线(主入口)与地下车行流线分开设置,更加安全。

B地块西侧设置人行入口,可便捷通往公共绿地。

C地块北侧地上入园流线(次入口)与地下车行分流,设置合理,但与地上停车位车行会有一定交叉。

C地块东侧设置纯人行出入口(主入口),南侧设置纯车行出入口,完全分流,设计较好。

D地块西侧人行出入口与地下车行出入口并行设置,但流线错开,设置较合理。
5、教育配套

(示意图)
学校配套方面:配建18班幼儿园、6班托儿所,规划九年一贯制师大附中双语学校 ;周边现有长沙市长郡湘府中学等,具体教育配套以楼盘公示为准。
6、地块细节分析


(示意图)
垃圾站:B地块位于19#与20#之间,D地块位于24#与25#之间。



(示意图)
公厕:B地块位于4#北侧,结合商业布置;C地块位于35#底部,与外侧商业街连通;D地块位于26#底部结合物管用房设置,便于清洁,设置合理。


(示意图)
B、C地块内部呈现三级台阶,总高差达6米(通过内部台阶解决高差),对园区的排水要求较高,不然水都会往最下面一级台阶汇集。

(示意图)
非机动车停车区:B地块位于11#东南侧。

(示意图)
地上停车位:B地块南侧,C地块北侧设置,离周边楼栋较近(特别与一层住户相距极近),可了解下管理方式。

(示意图)
5G基站:位于B地块20#屋顶。

(示意图)
幼儿园围墙:30#与31#中间户距离围墙较近,分别为5m和4m左右(可了解下围墙具体形式);31#东单元的南侧为幼儿园活动场地,可能有一定的声音干扰(尤其是低楼层)。







(示意图)
消防扑救场地(需采用硬质铺装):上图楼栋之间的登高场地在一个面,有限的间距内,硬质铺装较多,软景配植较少,后期景观打造较为局限。
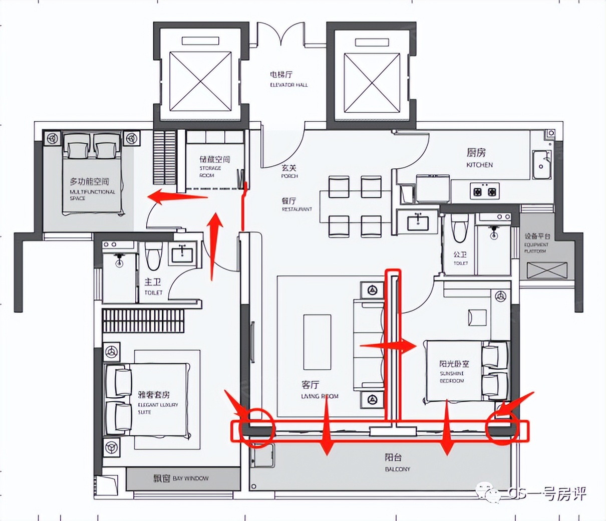
7、小区典型户型分析

114户型亮点:
1、独立电梯厅入户,归家体验较好;
2、设置家庭储物间,目前居家使用的电器和小物件越来越多,收纳较为方便;
3、双面宽阳台,尺度较大。
户型遗憾:
1、厨房过于长条,不便于家庭多人下厨;
2、餐厅空间太小,多人聚餐较为局促,且离卫生间较近;
3、次卧外设置盥洗室,对其静谧性可能有一定影响。

(框选为去墙后、空间连通示意)
户型可改造性:客厅、次卧与南侧阳台之间可推出,扩大室内空间,但中间有承重墙垛(上图红圈处),自理受到一定程度限制;
客厅与次卧可联通,做成横厅;
主卧与北侧多功能房之间可连通,做成主卧套间。

130户型亮点:
1、玄关处设置储藏空间,较为实用;
2、客餐厅南北通透,采光通风较好;
3、主卧尺度较大,预留了衣帽空间,能较好满足女主人需求。
户型遗憾:
1、玄关柜空间太小,基本收纳不了几件东西;
2、北侧生活阳台太小,最多满足一两个人的晾晒需求。

(框选为去墙后、空间连通示意)
户型可改造性:
客厅、次卧与南侧阳台之间可推出,扩大室内空间,且中间无承重墙垛,无自理限制;
客厅与东侧次卧可联通,做成横厅;
主卧与北侧儿童房之间可连通,做成主卧套间。

143户型亮点:
1、独立电梯厅入户,归家体验较好;
2、客厅东侧设置老人房,可满足一定分区居住需求,但老人房临电梯,可能会有一定噪音干扰;
3、客厅横向布置,起居体验感佳;
4、主卧与主卫纵向布置,采光通风较好,但主卫门正对床头,后期需通过软装做一定遮挡。
户型遗憾:
1、主卧门直接通向客厅,私密性较差;
2、户型南北不够通透;
3、北端多功能空间,三面开窗,夏天使用起来比较费空调。

(框选为去墙后、空间连通示意)
户型可改造性:主卧与北侧次卧之间可连通,做成主卧套间。

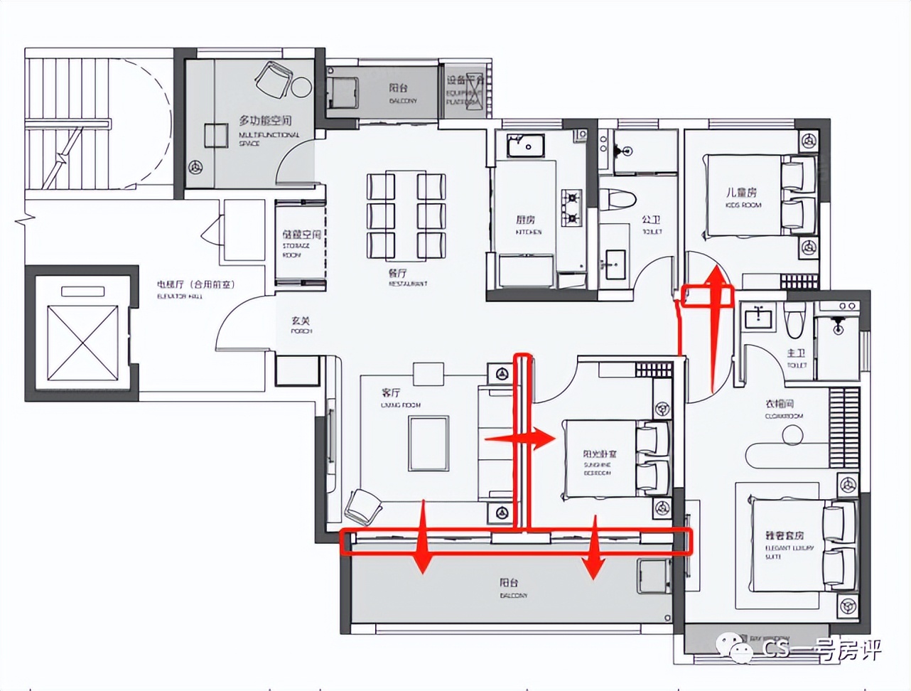
189户型亮点:
1、独立电梯厅入户,归家体验较好;
2、入户花园较大且有采光、通风,做玄关空间使用,体验较好;
3、客餐厅一体化且等面宽,装修出来效果较好,有一定奢华感;
4、阳台横跨两个面宽,尺度较大;
5、主卧与主卫南北纵向布置,采光通风较好,但是主卫门正对床头,可通过后期软装遮挡;
6、客厅东侧设置父母房,尺度较大且设置独立卫生间,考虑周到。(老人睡眠浅,分床睡可以避免老人打鼾,翻身等的互相影响)
户型遗憾:
1、餐厅处于入户交通位置,流线上有些交叉;
2、老人房与电梯相邻,可能会有点噪音干扰;
3、三间卧室的房门相距较近,相互之间干扰较大。

(框选为去墙后、空间连通示意)
户型可改造性:客厅、次卧与南侧阳台之间可以打通,扩大户内空间,但中间有承重墙垛(上图红圈处),自理受到一定程度限制;
主卧与东侧次卧、北侧次卧可联合做成主卧套间(设置两房或者三房套间)。
8、总结
地块综合:此地块位于天心长株潭融城区,主打生活配套与交通,地块本身总体较为规整,品质不错。
适合人群:河东上班族或偏爱此处区位的刚性需求。
如何选:优先选B地块,小区基本自成体系且总体形态均衡;其次为C地块,其主要缺陷为面宽较长而进深较短,园林营造上有些劣势;D地块则较为异形,素质一般。
至于楼栋选择上一般考虑中央楼栋;B、C地块西侧设置公共绿地,故而西侧一排也还不错。
文章不做任何引导性购买建议,纯粹从客户角度分析项目。
文中户型改造部分均为示意,如需采纳实行,应找具有资质的装修单位做详细施工方案。
纯干货软文编写不易,欢迎点赞、关注、转发。