小区:富士嘉园(深圳)
面积:65㎡
户型:2房2厅1厨1卫
费用:7.3万
风格:现代简约
我和媳妇在深圳打拼多年,终于攒够了积蓄,买了这套65㎡的两居室,虽然面积不大,但总算在深圳扎根,一家五口也有了落脚之地!
现在新房装修竣工了,通风散味一段时间便可入住,下面给大家看看我的小窝:

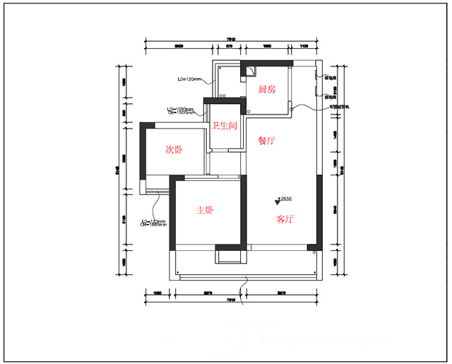
先来看看我们家的户型图,65㎡2房2厅1厨1卫,装修总费用7.3万(硬装)。户型虽然不是南北通透,但每个房间都有窗户,通风光线都不错!

再来看看我们家的客厅,很简约的现代风格,特意刷了一层米黄色的墙漆,整个客厅看起来简洁又温馨!

电视背景墙做了一些小造型,在电视机的上方打了一排收纳柜,入住之后可以摆放一些绿植,或者家居装饰品!

我们家客厅买了三人位的布艺沙发,主要考虑的因素是房子面积小,一字型的沙发比L型沙发更实用,同时也方便日后我和媳妇摆折叠床!

餐厅的布置也很简洁,后期会在餐厅的墙面做一个照片墙,给餐厅增添一点情调!

厨房的结构有一点点怪,两边都有承重柱,考虑了很久,做了个双一字型的橱柜,左侧是烹饪区,右侧是清洗区,合理的利用了空间!

厨房清洗区。

主卧是岳父岳母的房间,面积不算大,为了合理的利用空间,特意定做了移门衣柜,再摆一张1.5m大床,位置刚好够用!

主卧外面有一个小阳台,入住之后可以在这里养一些花草!

次卧是我们家小宝贝的房间,因为摆不下大床,所以打了一款1.2m的榻榻米。

榻榻米下方有四个大收纳格,正好满足家居收纳需求!

客厅旁边有一个超大的阳台,可以满足一家人洗衣、晾衣的需求!

卫生间。
如果你家有房子需要装修,想了解装修价格,可点击下方大图,即可免费获得装修报价一份!