在亲戚朋友眼中,设计师是这样的......

实际的我们却是这样的......

再帅的小哥哥经过通宵加班的困扰,
也会变成油腻大叔。
再美的小姐姐也会从女神变大妈,
所以做室内设计师这行,
加班改图都是习以为常了。

其实呢,现在任何行业都有加班加点的时候,
室内设计师在付出的同时,也是收获颇多,
各种软件随手捏来。
随便拿出一项来,都是高薪就业!

家装设计师
家装设计主要是指住宅空间设计,
包括商品房、洋房、别墅、大宅设计。



随着经济的不断发展,人类对生活的需求不再是局限于吃饱穿暖,更多的是对住宅空间的高品质改善。
不仅要住的好,还要好看,对住宅空间的设计美感要求愈发强烈。室内设计近几年也是一个十分热门的行业,
未来几十年仍然有很大的发展前景!
那么家装设计师都要会哪些技能呢?
1、施工图设计
2、施工工艺材料的认识
3、工程预算表的编制
4、方案设计,户型优化的能力
5、谈单的技巧
6、等
可能现在还有很多人不懂这些到底是什么,现在给大家科普一下:
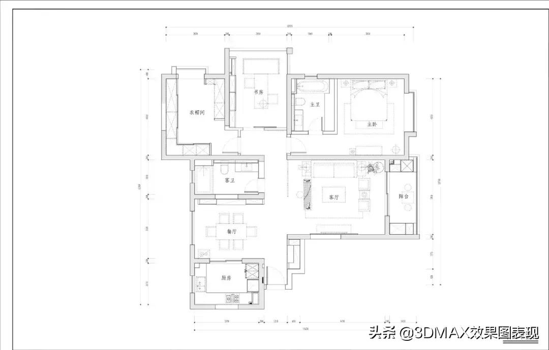
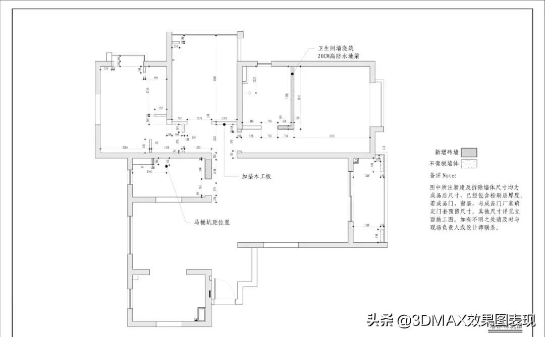
一、施工图:包括原始结构图、平面布置图、
墙体拆改图、地面铺贴图、水电图、吊顶图......




二、 施工工艺:装修施工工序和工期、
水电泥木油五大工种工艺和材料规格


三、家装预算:装修施工项目工程量和价格明细
(直接影响到设计师的提成哦!)

四、 户型优化:小户型、大户型、复式楼、别墅、
总之所有的住宅空间都要能够解决原始户型结构的缺点,
做到最大化的利用空间!



五、谈单技巧&家居风水:
家装设计师除了软件操作和专业设计基础外,
还要有一定的家居风水常识和能言善辩的谈判技巧,
谈单如谈判,掌握一定的心理学和营销技巧,才能运筹帷幄!


工装设计师
工装设计的领域就十分广了,小到街边的商铺,
大至一整栋写字楼和大型商场......
几乎所有的公共场所都是需要室内设计师来完成的!




1
所以说室内设计领域这么广,你还怕找不到工作?


2
那室内设计师薪资多少呢?


3
做个小单,赚几千,做个大单几十万。
所以说学好室内设计,年薪百万不是梦!

问:那我是零基础可不可以学习呢?

不管你是零基础还是科班出身,
你都可以通过室内设计增加自己的价值,走向高薪之路!
学习最大的理由就是摆脱平庸,早一步就多一份人生精彩,
迟一步就多一天平庸。

学习资料获取方式
转发本文,然后
私信我回复:室内设计