实创装饰官网:WWW.SC.CC
小区名称:经典小区
房屋类型:三室两厅一厨两卫
装修面积:154㎡
装修风格:后现代
首席设计师:张元祯
装修方案:完美家装

1/6 客厅
完美家装:软装+硬装+全屋德式定制家具不限量+室内面积计价(沙发,茶几,餐桌,餐椅,衣柜、床、床垫等等)

2/6 走廊
设计说明:以黑白灰为主并不是缺乏设计要素,它是一种更高层次的创作境界。在室内设计方面,不是要放弃原有建筑空间的规矩和朴实,去对建筑载体进行任意装饰。而是在设计上更加强 调功能,强调结构和形式的完整,更追求材料、工艺、空间的表现深度与精确。用黑白经典色的手法进行室内创造,它更需要设计师具有较高的设计素养与实践经验.

3/6 餐厅

4/6 阳台

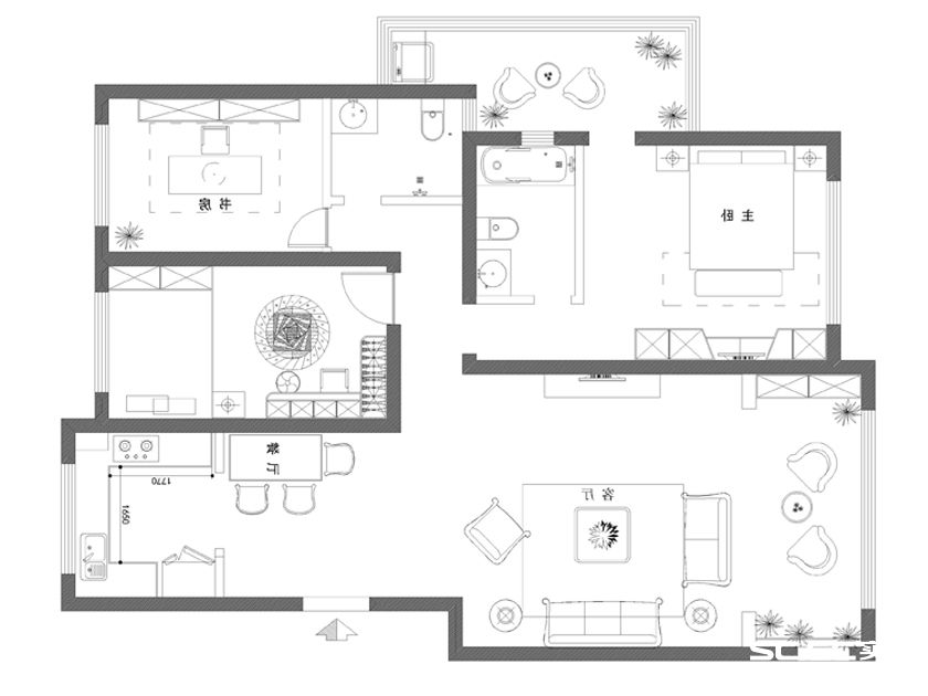
5/6 原始户型图

6/6 平面布局图
【在线交流联系方式】:QQ:631183422
【微信】:zhuhong927/13007769906(添加qq或微信即可参考里面的装修案例,也会及时更新各个工地施工的进度。)
【全球直购、十八项欧标工艺、10万平米自有木作工厂】
【你的家就是你独一无二的范儿,装修就是如此简单】
新房/老房为您提供整装全包,硬装+软装+全屋定制家居,一站装修、全责售后!
【懂家装,更懂你的理想】