木饰面
是一种以木材为基础材料的装饰板
主要用于制作护墙板、墙面木饰造型等
根据现场尺寸定制的木饰面产品
可以大大的增强房间的装饰效果
同时还可以有效保护墙面


木饰面这么美,但是设计时应该注意什么问题?
本期深挖一步,来聊一聊木饰面的各类设计问题
01 现场墙板如何固定安装?
用木工板、多层板、欧松板等在现场加基础
且尽量用厚点的板材,直接用枪钉+结构胶固定安装即可

木饰面必须要做基层,除了便于安装,还有以下几点原因:
1、不做基层会直接影响木饰面的平整要求
2、不做木饰面基层会导致木饰面直接吸收墙体中水份而产生霉变
3、基层可以防止墙板变形,增加木饰面的质量及寿命
需要注意的是做木基层前最好进行墙面处理,做基础的材质最好两面用清油涂刷
02 圆形柱子和方形柱子如何做墙板?
1、圆形柱子

注意:异型造型墙板以放样模板做
2、方形柱子

注:工厂出厂前四个角度对好角,做整体;芯板散装;
安装时先装四个角,再装芯板
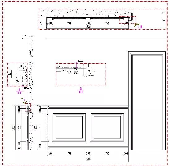
03 设计半墙板时应该注意什么?
半墙腰线收口,见下图 A 节点
半墙与门套收口,见下图 B 节点

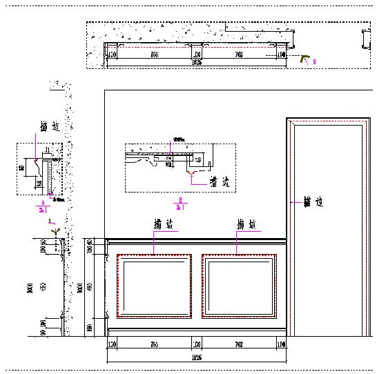
04 墙板做套色、瞄色应该注意什么?
见下图(立面图结合节点图)
需要描色的地方用特殊颜色标注

05 设计整墙板高度时应该注意什么问题?
超过2400的墙板要分段做,用腰线连接见A节点
带有脚线的墙板,墙板距地预留2公分左右,起到防潮作用
带有顶线的墙板,墙板距顶预留2公分左右,起到防潮作用

06 楼梯墙板如何测量?
测量前现场基础要做好石材贴好
每个台阶高宽度要一致
当起始步尺寸与其他台阶尺寸不一致时,从第二个台阶处开始测量

07 木饰面顶部、墙面阴阳转角怎么处理?
见下图

08 木饰面与其他介质如何收口?

09 顶线、腰线、踢脚线的转折太小怎么安装?
加大转角角度


10 木饰面上设计隐形门时应注意哪些问题?
1、隐形门开启方向一定要备注

2、隐形门的尺寸一定要标注清楚

3、隐形门做双色门时分界点在什么地方一定要备注

4、隐形门的基础画法
先画原始平面图(俯视图),
再画侧视图,最后画原始立面图

注:画图的前提,现场基础做好,木工结束
11 异性墙板如何测量及放样?
见下图

看了这么多的干货
大家是不是都累了了
那下面来看一组木饰面案例来养养眼吧







—THE END—