
以“奶茶”为灵感,为居家空间挥洒淡雅的中性色调,包覆一抹温柔与安定,筑起一座能与屋主夫妻相伴四季的家屋。面对狭长格局条件、被打散的空间关系,装修巧妙整合夫妻俩对收纳的讲究,以开放式、连续性视野穿引日光的漫步,敞开家的无拘和宽敞,同步藉由异材拼接、几何跳色之手法,立下一道道缤纷端景,成为一室点睛之笔,为夫妻俩的理想生活挹注了意料之外的迷人火花。
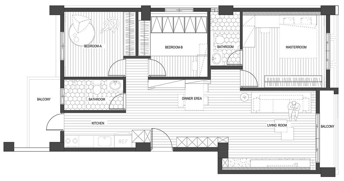
户型图

使用面积116㎡,本案格局属于狭长型,客餐厨一字排开,私领域亦是水平布局。尽管公私界线看似分明,却存在着不少小问题,在不动隔断的前提下,如何连贯公领域间的互动成为重点。设计顺应屋主对收纳性的要求,利用柜体串连视线,连贯客餐厨,也用各种收纳形式,搭配色彩、几何效果,筑起重点墙景,改善既有格局缺陷。
玄关

原本没有独立玄关的户型,改造后巧妙化解了无玄关格局,利用收纳柜围塑玄关区域,两侧不同尺度的收纳柜,梳理出进门动线。储物柜留一展示平台,除了摆放随身物件外,还引导屋主转往客厅。
客厅

客餐厨一字排开,无隔断阻碍空间瞬间宽敞不少,直线的规律排序,加上长方体的交错堆叠,造就有序稳定的画面。或深或浅的墙面设计,以浅灰墙漆、格栅、木纹以及水磨石装饰,呈现各自风采。

浅灰色的电视墙搭配格栅装饰,打破了一整面墙的单调。原木色电视柜与水磨石的组合,呈现自己独有的质感。

沙发背景墙还是蛮有代表性的,局部弧线拼接设计,搭配沙发和柔润曲线造型的壁灯,平衡背景墙的条理井然。
餐厅

餐厅一堵灰墙再次进入视野,承接着背景墙的使用,衬托出轻松自然的用餐氛围。同时,成为返家后的第一道端景。

餐厅位于动线交汇处,也是公共区域的中心地带,背景墙设计更加的个性,将收纳、展示结合,并结合生动的跳色设计,烘托趣味性。

为了改善厨房收纳的不足,在入户区域设计了电器柜,在不压缩动线的前提下,弹性增加了收纳空间,让屋主日常更加游刃有余。
厨房


一字型厨房,满足了夫妻俩日常所需,流畅的洗、切、炒动线,让日常下厨更快捷。灶台位置布置在靠阳台一侧,便于油烟的排散。除了橱柜和吊柜外,右侧还设计了折叠桌,提高厨房操作台的空间。
主卧


清浅色调的主卧设计,整体清透且柔软。背景墙采用波浪板装饰,刻画了光影变化,为清透空间带来层次感的变化。

善于主卧空间打造梳妆台,结合饰品柜拉开L型布局,满足日常梳妆之余,各种化妆品也可以轻松陈列。
次卧

次卧在有限的空间内,通过定制设计,提高空间整体利用率。通过小体积的家具和色彩轻重,平衡空间配置,让视觉感不那么拥挤。

架高的榻榻米床设计,有效的提高了收纳空间,整体采用上掀式设计,便于日常对物品的收纳。
儿童房

儿童房暂时充当娱乐空间,以灰绿和浅灰色做几何造型拼接,为空间增加了些许俏皮感,同时也弱化了衣柜的分割线条,淡化柜体的存在感,让空间更显宽敞。
卫生间

卫生间以六角瓷砖铺叙整个空间,以不同纹理的图案,区分地面和墙面。典雅的墙面图案,渲染着欧式古典气息。定制悬空浴室柜和镜柜,满足使用需求,又不占用太多面积,让空间从容优雅。