
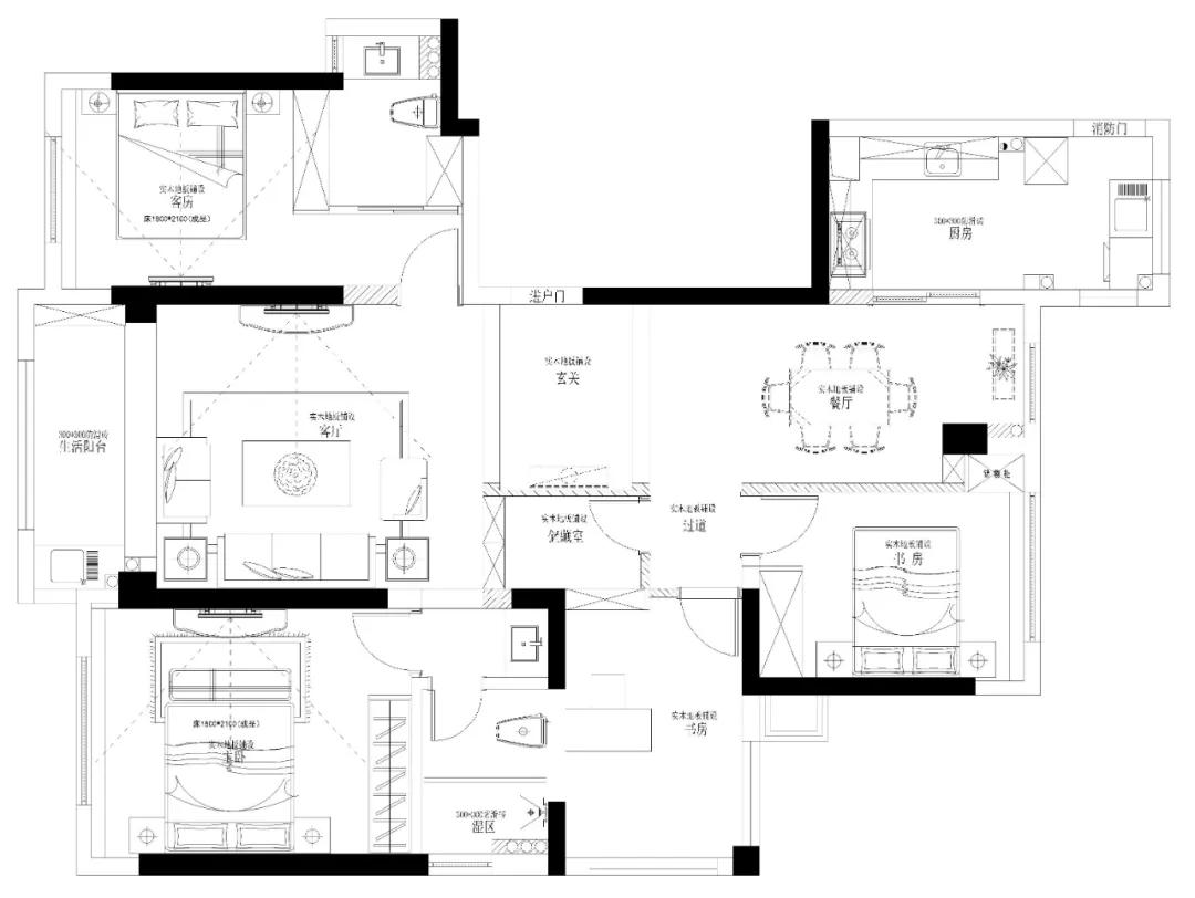
项目地址 / 望湖名都
项目类型 / 住宅
项目面积 / 132㎡
项目风格 / 港式风格
装修投入 / 47W (总)
设计师 / 斯琪慧

玄关
玄关之意,是通往整个空间的过渡区域,所以在很大程度上玄关便是室内设计的一个缩影,步入玄关,映入眼帘的是一幅金色边框的骏马图,搭配金色造型的玄关桌,整体舒适、大气又奢华。



客厅
港式风格的突出特点是简洁而精致,本案例中,设计师十分注重细节的打造。轻松勾勒出一个干净利落的视觉框架;挂画、茶几、吊顶等都选择带有线条元素的造型,既强调了整个空间气场,同时又有一种低调的奢华感。橱柜摆放的趣味摆件,体积不大,却赋予客厅不可缺少的活力与生机。



餐厅
餐厅设计有一种低调的奢华。素雅墙布和金属边框组成的简单造型,餐椅靠背展现着优雅的曲线弧度,让空间增加了几分温柔的氛围。


书房
书房以淡雅的蓝色墙纸作为整体基调,通过不同金属边框骏马连接书房与其他空间的关系,纱帘的存在也为书房的氛围营造起到关键的作用。


主卧
主卧选用雾霾灰作为主色调,硬包扣板和墙纸拼贴的背景墙,让卧室更具有空间层次感,抽象的挂画既提升了空间品质又增加了空间的温润度。

次卧
次卧是给业主女儿准备的房间,选用了活泼靓丽的橙色和墨绿,再放上一副女儿的油画,这个房间都充满了青春的气息。

客卧
客卧的整体色彩相对明亮,也选用色彩相对丰富的挂画,给空间注入活力,愿房子里的生活利落有序,色彩依然。

卫生间
卫生间相对其他空间来说,面积并不算大,依然从淋浴区、洗漱台到如厕区,实现了区域的有序组合,利用干区和马桶之间的距离定制一个储物柜增加了卫生间的储物空间。

卫生间