有点新中式偏日式的感觉,夫人在网上眯了近三个月,才最终敲定的这套方案,我能说啥呢,她说了,现在流行这个!好吧,反正我没有异议,她开心就好。
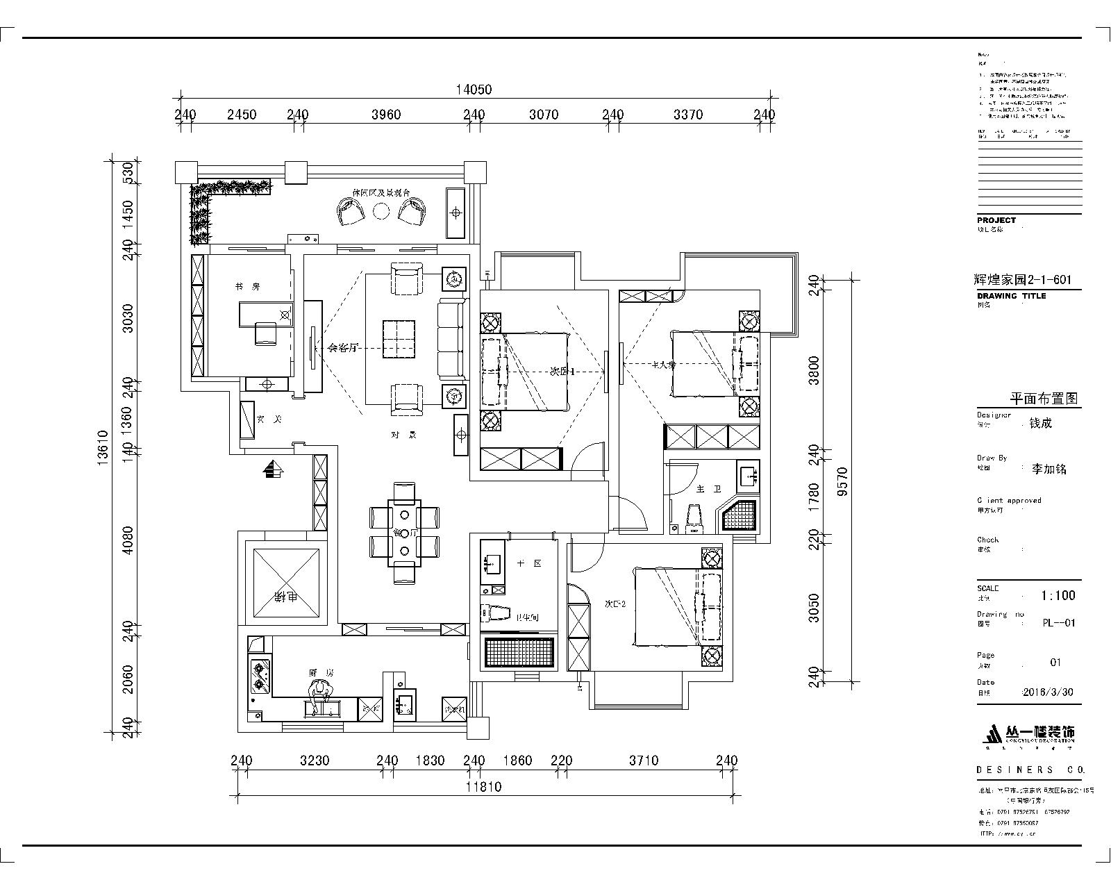
楼盘: 辉煌家园2-1-60X(南昌 看工地可预约哦 本小区其他户型设计方案均有)
·户型: 4房2厅
·面积:146平方
·风格:新中式
设计师:钱 成(微信:diguadou888)
·装修造价:10万 主材造价:12万
.主材:、护墙板线条、实木复合地板、橱柜、LD瓷砖、安华卫浴等......

餐厅

客厅

沙发背景墙

户型图

平面图

餐厅
联系在线客服,可省设计费300元,限今日前10名
所展示工地为正在施工的工地,需要看实景工地的亲,欢迎咨询,辉煌家园更多户型、不同风格工地正在火热开工中!
南昌各大楼盘近期交房(联泰梧桐壹号、新力雅园、莱蒙都会、绿藤雅苑、中兴和园、海域香廷、保利金香槟、中骏蓝湾、中央香榭、众森红谷一品、联发君领朝阳、绿地国际博览城、万达旅游城....)的业主,赶紧GET起来吧!
-------我是华丽丽的分隔线--------
设计师微信:diguadou888 (仅限南昌)