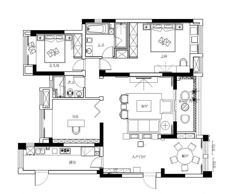
平面布置图

玄关


▲入户大门左边一个端景台,摆上禅意的摆饰、一幅圆形装饰画,在不经意间流露出独特的雅致感。

▲原本开门直对客餐厅的设计,为了避免这样一览无遗的视觉,在针对大门的位置装了一扇屏风墙,加入展示架,摆上精致的装饰品,显得高档好雅气。

▲玄关的地面拼花与吊顶造型,一进门就能感受到这是一个不平凡的家庭。
客厅

▲电视墙在木框造型分成3部分,中间区域是墙砖,两侧软包+壁灯的设计,以轴对称的设计,搭配上实木家具,沙发上垫着布艺坐垫,在庄重的空间里点缀出清新舒适的视觉与体验。
餐厅


▲餐厅布置在玄关右侧的靠窗位置,这里有着丰富的采光,6人位的大圆形餐桌布置,整体充满了品质的档次感。

▲餐椅有着舒适的布艺坐垫,而餐桌上也是布置上各种淡雅精致的餐具,整个餐厅令人胃口大开。
厨房

▲厨房一字形的长条格局,整体以中式木质的定制橱柜吊柜,搭配灰色抛光砖墙面地面,整个空间简约舒适,实用档次。
走廊

▲走廊的墙面竖着挂着一道墙饰,加入一组各式木质的装饰品,为空间注入了雅致的艺术感。
卧室

▲卧室床头墙以带有禅意图案的硬包板,结合舒适的软装布艺,给人以轻松的禅意气息。


▲床头墙的“花好月圆”图案,让空间散发出雅致儒雅的禅意。
阳台

▲阳台布置上石材与树桩茶几,再点缀上绿植,显得清新而舒适。