装修风格:新中式风格
实际面积:350平米
空间格局:四层别墅
设计师:千里莺设计工作室
项目位置:浙江省金华市
装修造价:全包预算60W
户型图

一层原始结构图
这是一套四层的别墅,没有地下室;一楼的花园不是很周正,车库的面积不大,一楼是个错层的结构,

二层原始结构图
从一楼上来是餐厅厨房还带一个卧室的格局,空间感还是很强。

三层原始结构图
二层的结构主要是以“静”为主,相当于是三个卧室,然后带一个生活阳台,一个公卫;这层的起居室是个设计难点,需要仔细的斟酌。

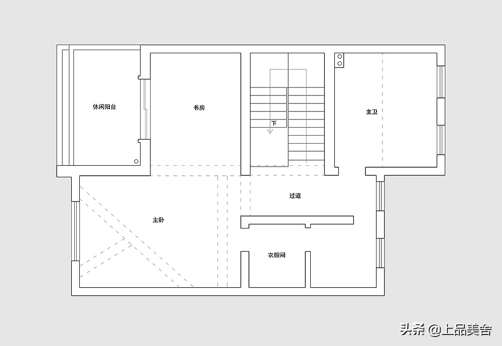
四层原始结构图
三层原始结构图顶面是一个非常负责的结构,高低落差相差很大,这层主要是一个主卧的套间。
平面布置图

一层平面布置图
一层的主体结构没有做改动,把原来的车库空间缩小不需要那么大,重新规划隔个储物间出来,来增加整个房子的收纳性

二层平面布置图
二层则是按照原有空间格局,进行的布置,有餐厅和厨房,还留有个客卧,以后可能有孙子了会做保姆房用。

三层平面布置图
三层原来的起居室空间,通过和业主的沟通做成了一个敞开式的衣帽间,直接和卫生间的洗漱间连通,这样不会影响整体的采光。

四层平面布置图
四层这是一个超大、超舒服的主卧室套间,而且还是不常见的带生活阳台和休闲阳台双阳台的主卧套间;卫生间空间也很大。
玄关

玄关

玄关
打开房门就是一个“回”字形的地面造型铺贴,很有回家的氛围;把主要鞋柜做到了室外,里面就不用做鞋柜了,这样让玄关空间更宽敞一点了;利用楼梯间下面的位置,做了一点点鞋柜,还摆放了一张蓝色的皮质换鞋凳,这样就很方便了。
客厅

电视背景墙

电视背景墙
在大部分设计中,像这种挑高的别墅都会在客厅中央设计一款很大气的吊顶,以此来显得十分奢华大气,但是这里没有按照常规的做法去弄,而是采用了无主灯的设计,让其看上去更加简洁,落落大方;电视背景墙的山水壁画和两边对称的到顶储物柜很协调;

沙发背景墙
沙发背景造型用不同的材质呼应电视墙的设计,同样采用对称式的设计手法,将大理石和硬包融合在一起。
餐厅

餐厅

餐厅
千年的古典文化,经由现代的美神与设计,重新焕发美的光彩,象征美满团圆的圆形餐桌,因地制宜设计开敞与封闭结合的酒柜,具有层次感,且柜体设计功能齐全,满足更多的物品收纳,一点都不显得凌乱。
二楼主卧室

主卧室

主卧室

主卧室阳台
这个房间是业主两口子居住的,楼上的大套间主卧室是留给业主的大儿子的,因为到了结婚的年龄,所以把家里面最大的卧室给了他;带有个小阳台,在这里设计一个梳妆桌就显得很方便了。
三楼主卧室

大儿子房

大儿子房
这是业主大儿子的卧室,一个非常大的套间,也很通透很舒适,每个空间因为不用设计门,所以采光非常的好;吊顶为了突显质感,还外贴了很有质感的金色不锈钢边条;床头用很活跃的蓝色硬包做造型,两边对称木质凹凸造型很有层次感。
书房

大儿子卧室书房

大儿子卧室书房
这是大儿子主卧室套间的一个书房,两面墙满贴硬包墙布,错落有序的色彩图案搭配;高级好看的书房配色,伴随着品味享受着阅读时光;吊灯也是非常的有艺术感。
小儿子卧室

小儿子房

小儿子房
业主的小儿子现在年龄还小,所以分的卧室相对小一些;卧室的整体设计布局还是比较有童味的,无论是造型上面还是色彩的搭配上,都富有童趣的想象力,伴随着孩子的成长;床头放弃一个床头柜做书桌,平时小孩可以在自己的房间独自的完成作业了;卧室的成品书柜都是比较轻盈的。