即便有人说顶楼不好,缺点多,但等我有了钱,我一定要买套顶楼复式,尤其是看了屋主他家这套260㎡的顶楼复式之后,更让我坚定了内心的想法,不得不说这套房子比别墅还大气,住起来比别墅还舒坦,相信看后你也会有同感。(图片原创:木梵设计)
一层


这套房子为屋主购置的改善型住房,家庭人口从二人世界变迁到三口之家。虽然房子面积大,但设计更要精细化利用空间,了解屋主需求后,经由设计师之手做了不少细节优化,一层改造细节如下:
1、朝东次卧改动门位,把书房和餐厅融为一体,增进空间效率,增进家人之间的互动沟通。
2、操作阳台和设备间拆除,改成洗衣房和西厨,与餐厅打通,空间通透性倍增,相对又能保持独立。
3、保姆间拆除改成衣帽间。
4、主卫墙体向外移,把梳妆台移入主卫。

原木色为整个空间的主色调,带来大量的温馨感和自然质感。
右侧望向电视背景墙,木饰面和天然大理石完美融合,冷暖平衡尽显和谐之美。

大气的客厅与屋外的视野相呼应,在客厅,孩子可以尽情的活动、玩耍,释放天性。
无主灯设计,让这套房子的“简”更上一层楼,也使得整个空间大气感倍增。

房子地处上海黄浦区,屋外便可观无敌江景,窗景自成一画,对面没有任何遮挡,采光极好,私密性极强。
一套别墅确实也足够豪华大气,但郊区别墅,比不上城中顶楼复式的配套,城中别墅又比不上顶楼复式的私密和安静。得天独厚的开阔视野更是别墅感受不到的。

在电视墙下半部分,嵌入了一排超长的电子壁炉。
虽然冬天全屋有地暖一点也不会冰冷,但打开电子壁炉,跳动的虚拟火光会给人带来更多温暖的感受。

客厅家具采用围合式布局,家人之间沟通起来会更亲密,尼加拉蓝的单椅是点睛之笔,为淡雅的空间增添一抹重彩,稍作点缀就能立马丰富整个空间的层次。

镜头切换,看到沙发背景墙区域,采用灰色硬包护墙,整体空间气质得以瞬间提升。同时还拥有保温、隔音效果。


在客厅右侧和楼梯之间,是一个过渡区域的品茶位。


在现代风格的装修中,融入一些中式元素的古典雅韵,艺术氛围倍增,让传统和现代与时俱进。
背面是一幅气势磅礴的水墨画,一笔一墨,见天地生息,一壶一炉,述说生活雅趣。

楼梯间右侧是一楼公卫,给单调的墙面增加了一个极简时钟,除了装饰作用,也能让家人时时刻刻关注时间,右侧靠近入户门,我们可以看到部分中底镂空的鞋柜,细节就不给大家展示了。

站在楼梯口看客厅。

楼梯是这套房子的亮点和设计难点,整体采用了钢结构、实木板材、不锈钢、钢化玻璃等多种材质。保证了整体设计的极简效果,同时又保证坚固,脚踩踏上去结实而且更静音。

之前的现浇楼梯是L型,现在改成U型。所以整个楼梯才看上去如此轻薄,悬空设计让整个空间更通透。


仰头可望见楼梯间屋顶的天窗,采光通透性非常棒。


书房和餐厅功能重叠,从动线上也连通着左侧的西厨和背后的厨房,增加了空间效率。大房子,家人之间的互动很关键,这样的设计让家人可以在每个空间自由走动,增进家人之间的情感沟通和交流。

餐厅和西厨区之间隔了一组休闲吧台。让空间通透的同时又相对独立,例如,女主在西厨区做烘培,男主就可以在餐厅办公,孩子在联动的空间中自由玩耍,让整个家暖意浓浓。

超大的飘窗是主卧室的亮点所在,不需要复杂的装饰,屋外的风景自成一色,成为最天然的绝佳装饰。坐在飘窗台上,观看屋外景色,整个人的心境都开阔了许多。

床头背景墙的设计和客厅硬装元素一一脉相承,木质护墙板+灰色硬包护墙。色调温馨有质感,百搭极了。

木质半护墙从形式上也代替了传统的成品床头靠背,看上去更简约大方一些。床是箱床的模式,下方有抽屉,收纳功能相当充足。

主卫,除了最基本的洗漱功能,还融入了一个相对独立的梳妆区。例如早上时,男主在左侧刷牙洗脸,女主可以坐在右侧梳妆,互不打扰。背后是一个独立的淋浴房。
瓷砖也选择了这种天然大理石纹的款式,非常高档。

儿童房,目前宝宝还在和父母睡,所以这个房间暂且作为一个孩子的娱乐室。


儿童房所有的家具都很方便移动,未来孩子大了方便置换和重新布局。
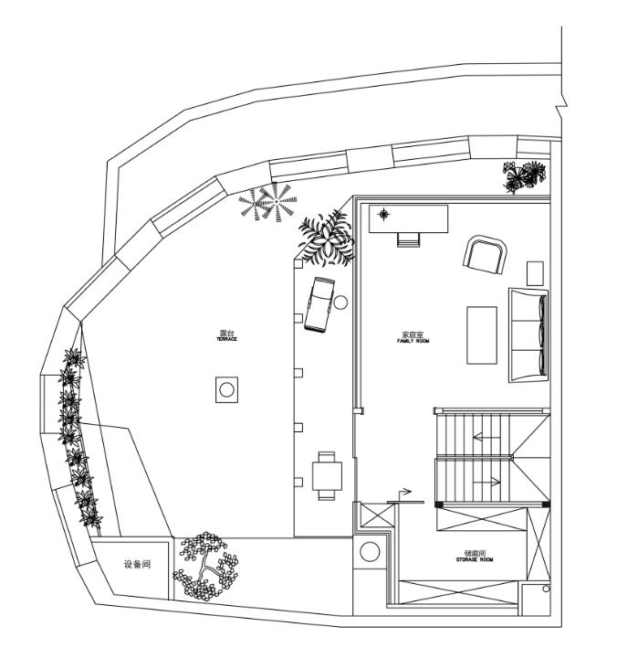
二层


二层空间相对一层较小,只有一个独立的大厅和一个大露台。改造成一个休闲露台和一个室内游戏厅。

二层相对一层会更私密一些,从楼梯上来后,首先是一个家庭活动室的走廊,在最左侧打造了一个阅读角。背后的一组书柜,采用单推拉门,把门向右推进去之后是一个备用的独立衣帽间。

径直进入活动室,从旁边的落地窗出去就是大露台了。

在室内外的衔接区,适当打造了一组遮阳顶棚,即便下雨也可以在室外休闲片刻。点缀少许绿植就很自然了,刮大风的时候也方便把绿植移动到室内。

露台目前没有复杂的花园,主要是生活忙碌没有太多时间经营打理绿植。地面满铺户外防滑砖,给孩子安全又舒适的活动空间,中间的排气井适当用防腐木做侧面包裹,减少突兀感,美观整洁。
谁说顶楼不能买若是能得这样一套房,笔者可能做梦都会笑醒,地处上海核心区,拥有最优良的生活配套,得天独厚的采光,私密的顶层复式格局,无人打扰,而且它的价格也是整栋楼最贵的,当之无愧的豪宅。大家喜欢吗?