
小户型设计技巧
拆墙要谨慎
在很多人在装修的时候,尤其是在面对小户型房屋的装修时,都喜欢拆掉墙面来拓展空间。一般来说,不知道墙体和墙面的一些内部结构的话,不要轻易将墙面拆除,因为你不知道你拆掉的究竟是什么墙,是承重墙还是配重墙,如果不小心拆掉了比较重要的墙体,轻则房屋开裂,重则影响到整栋楼的承重结构,缩短房屋的使用寿命。所以,大家在装修小户型的房屋时,就算真的要拆墙,也要了解清楚你所拆除的这面墙到底是起到什么作用。
无吊顶设计
相信很多业主在装修天花板的时候,为了拔高视觉效果,都喜欢做一些吊顶,但对于小户型的房屋来说,如果将天花板的吊顶做的太规则的话,就会加强空前区域感,反而适得其反,起不到拉高空间的效果。砣妹在这里建议大家,小户型的房子不要做过于复杂的吊顶,甚至可以不做吊顶。简单的装饰、利用线条或是涂料的的颜色过渡,都能够让天花板有拔高的效果。
巧妙利用软隔断
因为小户型的空间有限,所以房间一般不会太多,一些业主为了增多房间,通常会用一些柜子或是用水泥砖头隔出来一个空间。实际上,小户型的房屋不适合使用硬质隔断,过于严密的空间限制或是硬质隔断,都会使得空间看起来更加狭窄。如果想要加强空间区域感的话,可以巧妙利用软隔断来隔出空间,例如屏风、或是纱窗等。
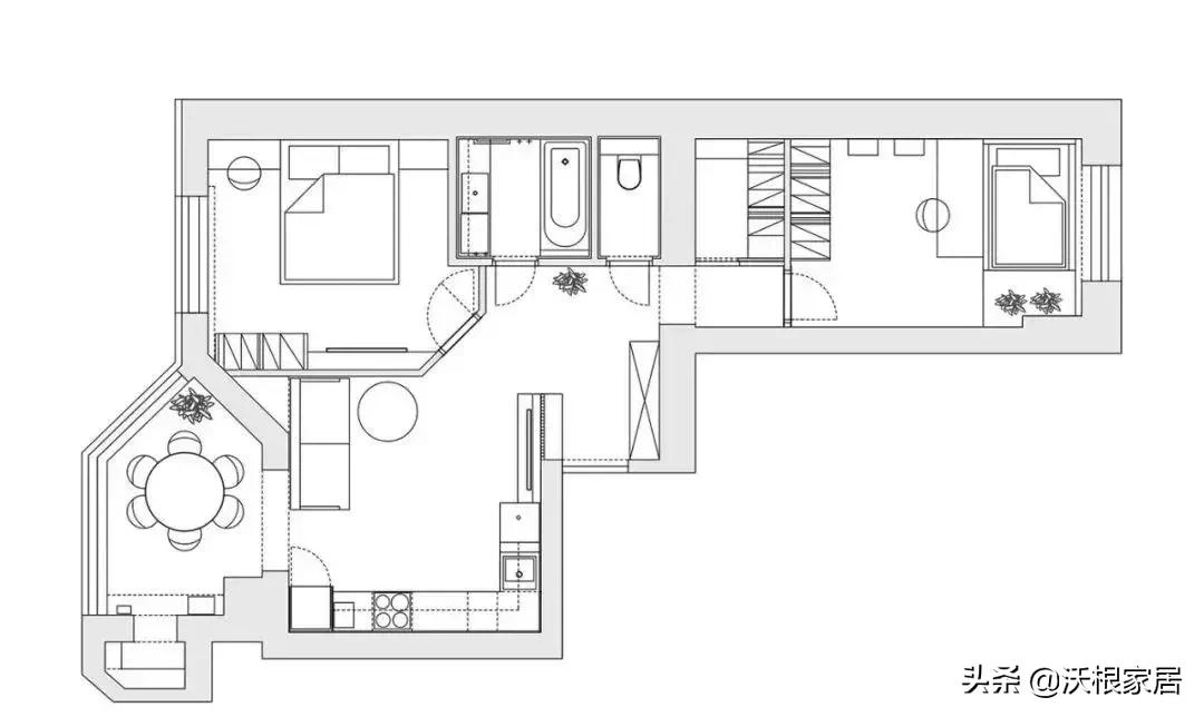
经典的66平米小窝
装房子这件事,也分别人家
同样是66㎡的小房子,这户人家女主却打造出了
令人期待的“大户型”装修范

先来看一下他们家的平面图
手枪(L)户型的家,面积仅66㎡
听起来都觉得小
但这户人家,女主的跳跃性思维
非常值得学习,小家也可以有大户型的精致范

首先是入户的玄关
黑、白搭配,色调分明
再辅助以绿植,设计感扑面而来

玄关与客厅间,用一道屏风隔开
既是增加了私密性
同时还一举两得
在屏风格栅的背后,恰巧就是“电视背景墙”

这是非常有意思的布局
女主的家居思维,堪称跳跃
很顺利得便完成了从玄关到客厅的过度

电视柜旁,便是家中的厨房
收纳、功能一应俱全

为了让厨房的空间
视觉感更强
女主还在壁柜下,安装了灯带

厨房与客厅的延伸处
便是家中的餐厅
它结合了小花园的功能

也正是这种布局,令家中的空间感
极为整洁、有序

而且通风与采光也丝毫不受影响
设计改变生活

接下来便是具有挑战的次卧设计了
男主希望能在家中有一块半空区域,还要有个书房

女主将书房与次卧合二为一
并以书架作为两者的物理隔断

再将床的空间,抬高一截
办公区域与睡眠区域,井然有序

除了办公空间外
男主还想在家中有个衣帽间

女主挖空了心思
终于找到了衣帽间的设计法门

接着我们一起来看完美的主卧是怎样的呢
女主的梳妆台自然得有

嵌入式衣柜、电视柜
自然也是缺一不可

想法很丰富,现实即使在骨感
女主也完成了一家人的设想

主卧看似虽小
但却容纳了两夫妻两生活的必备

你有没想过,如此小的面积
它还能承载下几个卫生间
女主给出了令人惊讶的答案,两

嗯,这是次卫
看起来小小的,但是功能俱全

这是主卫,功能更完善了些
与次卫衔接在一起,也算是实现了干湿分离

仔细看平面图的朋友,不难理解
两卫生间,两入口
其实他们也可以理解成一个整体

对女主的敬佩之情,油然而生
原来小户型,还能这么玩

在很多人眼中,觉得小户型的面积比大户型小,所以在装修方面会比较省心。其实不然,小户型因为面积比较小,但是要在功能上完善,提高空间使用率和居住的舒适度,达到和大户型一样的效果,花的心思绝不会比大户型的少,从美学角度来说,小户型的设计其实也可以出彩,只要因地制宜,在充分利用空间,保证功能的前提下,美观是完全可以兼顾的,当然,收纳设计尤为重要,许多小户型竣工时超级美,住一段时间后十分乱,问题往往出在收纳设计上,许多时候并不是没有考虑收纳,而是没有充分结合的生活习惯,比如玄关柜离门口很远,可能就形同虚设了,因为很多年轻屋主偷懒,进门后东西随便一扔。
今天,给大家分享三套台湾虫点子设计的小户型案例,非常具有参考意义,这些案例既满足功能,还具有绝对的美感。同时,设计师在空间处理上采用可开可闭的设计,保证空间的通透性,又能照顾到私密性的需要。