为大家分享3月16日第一篇:本案例为郑州天伦庄园别墅装修案例,300平的三层独栋户型结构。业主选择了新中式的风格设计布局,设计师给出的本案,很符合业主的性格,稳重大气,格调高雅,造型朴素优美,色彩浓厚而成熟,舒缓的意境始终是东方人特有的情怀,这样躺在舒服的沙发上,任千年的故事顺指间流淌。

客厅
-
小区名称: 天伦庄园
-
案例户型: 别墅会所
-
装修风格: 新中式
-
装修套餐: 基础装修+个性化装修
-
小区面积: 300平方
-
工程造价: 35w+70w
-
设计师: 陈勇
▲ 了解更多装修攻略和精美家装案例,关注微信公众平台:nxzxsd

客厅电视墙

餐厅效果图

二层会客厅全景

会客厅沙发背景墙

南边卧室

西卧室布局

会客厅沙发背景墙

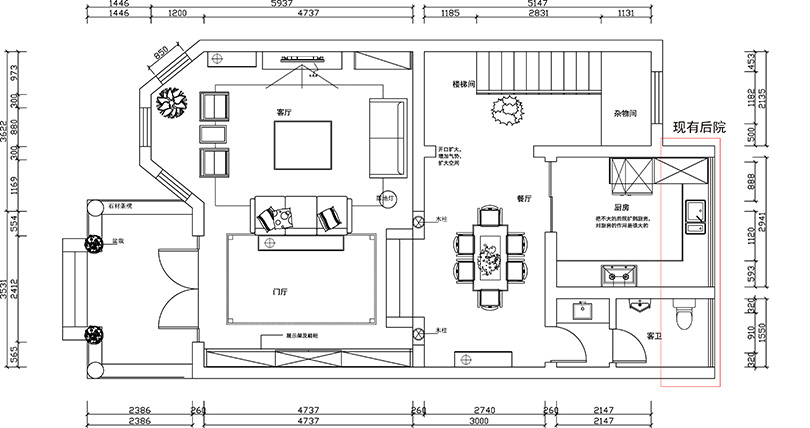
1层户型布局

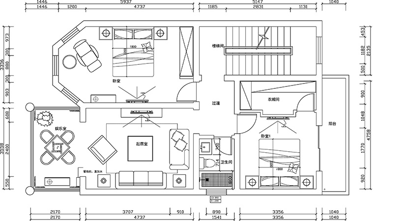
2层平面户型方案

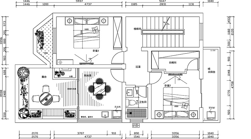
3层设计布局

三层西卧室
===========================
▲ 如果您也有装修需求可加设计师微信:ding1592020909,为您私人定制属于你的家
上一篇:98平复式,家装上自然界的优美会永恒