在农村自建小别墅就像在网上买衣服,看到模特穿的衣服很好看,买回来后却和自己预想的效果千差万别。在网上有很多好看的别墅效果图,但是建完能达到图片中的效果吗?
今天要特别为大家分享来自河南信阳的陈先生按照“住宅公园”图纸施工的案例,大家说说,和效果图比怎么样呢?

房子是陈先生为父亲所建的,也能方便自己过年回家住,所以选择了这套非常经典的欧式别墅,传承欧式一贯的高贵与典雅,传达出农村富足安逸的生活状态。
看看这实际建成的效果,与原效果图相比也丝毫不逊色,我给100分,不怕你骄傲!

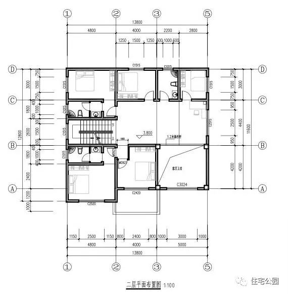
入户设置堂屋和客厅,符合农村生活习惯,两间卧室都带有独卫,方便家人生活。

挑空式客厅与落地窗经典搭配,居住感受全面升级。

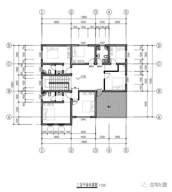
3层设置6间卧室,满足农村大家庭的居住需求。

定好图纸,2017年4月15日开工了。

挖好基槽,浇筑一层10CM厚的素混凝土垫层,能起到保护基础的作用,也能方便后续施工。

砌筑砖基础大放脚。

构造柱与墙体之间要设置拉结筋进行连接。

回填后进行一层墙体的砌筑。

模板之间用木棍进行固定。

现浇后的楼板覆盖一层薄膜进行养护。

施工闲隙一抬头,发现云层透出明亮的阳光,真是可遇不可求的美景!

雨后的彩虹,三兄妹赶紧来合照一张。

构造柱养护完后进行拆模处理。

楼板模板用木棍支撑。

进展很快,砌筑三层墙体。

别墅封顶了,工人们正在铺屋面瓦。

同时进行外墙的抹灰。

瓦采用的是当地的瓷瓦,单价为2.3元。

室内外抹灰完成。

这时别墅已初具雏形。

安装大门。

安装落地窗。

在陈先生老家,外墙更加流行贴瓷砖,父亲也认为贴砖好,最后在陈先生的坚持下还是选择喷涂真石漆。
但无奈老家根本找不到做真石漆的工人,陈先生只好自己买材料,并在网上花3000元买了个喷涂机,亲自上阵!

看这完工后的效果,是不是很像干挂大理石?涂料的价格,石材的效果,也难怪大家这么青睐!

完工后,拆除脚手架,然后马不停蹄的开始室内装修。

堂屋,在农村是必不可少的。

挑空客厅,水晶吊灯,落地窗,完美的搭配!

落地窗唯美而大气,居室通透又明亮,彰显质感。

简单大方的装修,呈现出陈先生一家富足而闲适的生活状态。

厨房和餐厅之间用玻璃推拉门隔断,增强厨房的采光。

厨房。

卫生间。

楼梯间。

可以看到,房间内多设窗,通透明亮,采光非常好,为家人带来最好的居住感受。

华丽的水晶吊灯。

看看邻居家的房子,这次说是“全村最美”不为过吧?

站在露台远眺,家乡风光尽收眼底。

粗略算下来,别墅主体花了30万,门窗8万,装修20万,因为陈先生父亲在老家从事建材这一行,所以省了很多钱。
现在一家已乔迁新居,等到夏天再进行院子的规划。

从2017年4月15日动工,到2018年1月4日乔迁新居,8个月的时间65万的造价,你觉得咋样?
关注本号,每天都有新户型,还有乡邻晒家,建房省钱小妙招一手掌握