01
十方(合肥)设计


客厅
LIVING ROOM

横厅跟大面积段的阳台 是整个空间的亮点,改造后的客厅将原来的阳台完全纳入客厅部分,将自然的光线和外部的景观释放出来。

取消传统电视墙的做法,一整面的书柜跟黑板墙,创造小朋友与父母有更好的学习和沟通的条件。

客厅可视范围的房门分别做了隐形门处理,既保证相互的独立,也保证客厅的视觉与功能的完整。

将洗衣机与干衣机平行放置,让空间多出一个大尺寸的吧台,我们在吧台的客厅面制作了儿童乐高墙。
餐厅
DINING ROOM

餐厅区域放置一张大体块的餐桌,既满足餐食的需求同时辅助西厨区的功能,实现多功能的操作区。


西厨、餐厅收纳台、墙面的层板、洞洞板,让收纳及充裕 更富于趣味性。

软木墙的设置,均衡餐厅跟厨房之前视觉距离,创造一个家庭留言便签的温馨氛围。
次臥
CHILDREN'S ROOM


在相对局促空间内,我们转变成品家具的采购方式,在现场制作半高的床头墙板,采购无床头床箱作为成品床的替代品,将床的尺寸控制在最小的尺寸内。
主臥
MASTER BEDROOM



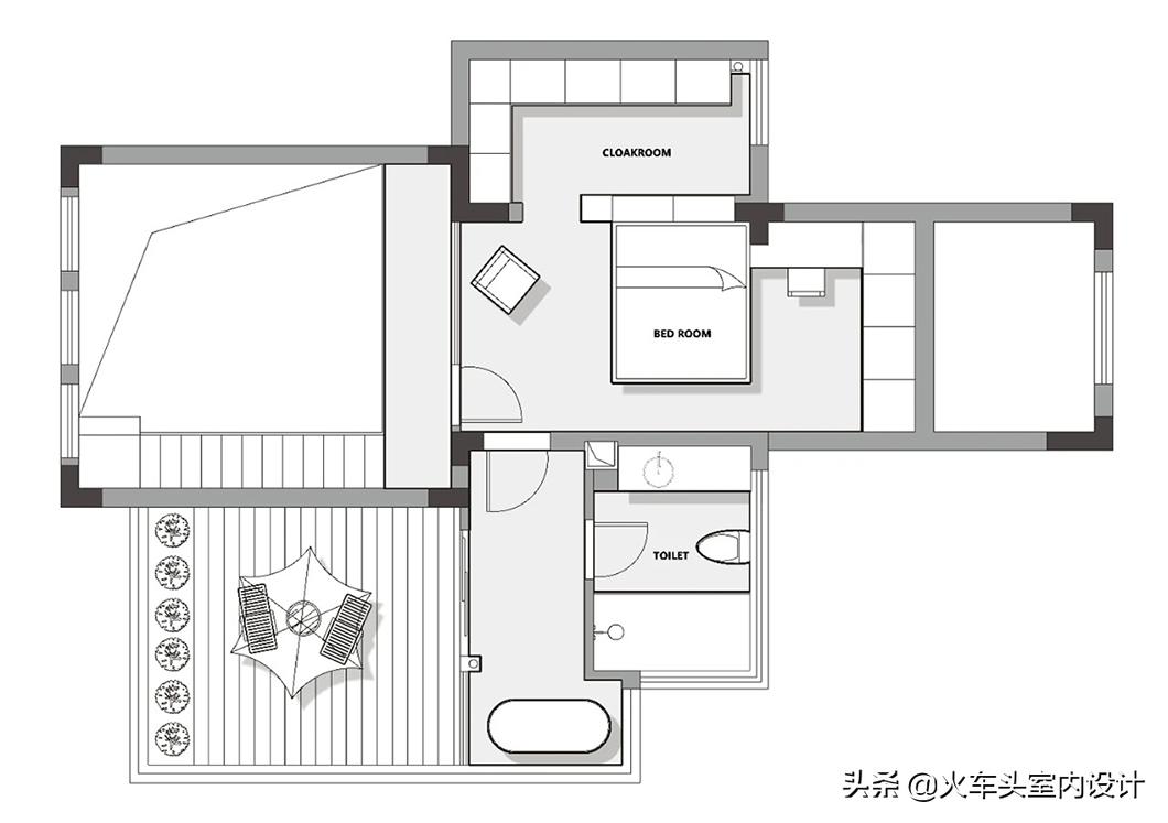
衣帽间与睡眠区设悬浮收纳柜满足收纳需求,让空间更有呼吸感。


改造后的衣帽间变成了一个多功能的空间,将收纳、办公、通道整合统一,消除了传统衣帽间的体块感。

项目地址:合肥 公元天下
设计出品:十方(合肥)建築設計咨詢
施工配套:吉佳装饰
项目摄影:鑫空视觉艺术机构
主要配套:栢格木作、舜龙瓷砖、书香门第地板、私享美居灯光……
02
花漾美作

本案业主是一对中年夫妻,女儿有自己家庭,偶尔回来留宿. 他们追求简洁明亮的生活氛围,不喜欢冗杂繁复的设计,希望这个家能够让人感到放松与舒适。

客厅
LIVING ROOM

客厅采用无主灯设计,光源分散,让家更有氛围感. 整体色调以白色为主,点缀自然木色与灰色,窗帘的一抹黄色作为整个空间的跳色,干净素雅的同时更加灵动。


阳光正好,微风不燥,手捧一本书,闲坐一上午,不负好时光。

原木弧线条,搭配进口森林树木壁纸,散发着自然平和的空间气息。

定制电视抽屉柜与地台穿插设计,打破空间界限,增加层次感。


灰色烤漆书架,阵列排布,满足置物的同时彰显韵律美。

穿衣镜、卡座、鞋柜组合,储物与功能穿插布置,整洁实用。
餐厅
DINING ROOM

入户即见餐厅,整体空间由白色、原木、灰调构成,营造利落的视觉感。

选用沉稳的黑色岩板餐桌,使得餐厅更加静谧,丰富空间层次感。

直角线条轨道灯与吊顶弧形线条碰撞,干净利落不死板,更有几分艺术气息。

定制半开放餐边柜,作为厨房和餐厅的过渡与连接,白色与原木色搭配,整体呈现自然净透的空间质感。
次臥
CHILDREN'S ROOM


客卧取消实体墙,与餐厅采用实木折叠门连接,为餐厅引入光线的同时扩大餐厅视野,客卧同时具备书房的功能,可开放可独立,灵活多变。
主臥
MASTER BEDROOM


主卧以奶茶色为空间的主色调,吊顶的弧面与背景的曲线呼应,结合背景氛围灯带,营造优雅温柔的空间气质。

项目地址:南京·东井佳苑
设计团队:花漾美作·空间设计
主创团队:周晓彤、李莹莹、严菁
户型面积:92㎡
项目摄影:THE MORE 视觉
03
观白设计

这是一个五口之家,屋主人是一对工程师夫妻,夫妻俩平时工作比较忙,经常出差,长期是父母和孩子在家居住。

1F平面图

2F平面图
客厅
LIVING ROOM

黑白灰为主基调,简单的色调散发出优雅的精致,融入木纹色更贴合自然,给这个简洁的空间增加了温度,赋予空间生命;保留了开阔的层高+墙顶面大面积的留白+无主灯设计,视觉上也更加舒适。

宽敞的落地窗洒下充分的阳光,搭配百叶帘,自然光的加入让空间更柔和温暖,安逸的氛围蔓延四周。

电视柜与楼梯相连,成为一个整体,木制的楼梯富有质感,向上的楼梯与向上的顶面平行,呼吁彼此又衔接了空间。

客厅保留了原始挑高区域,空间纵向面延展,将创造面与线的完美结合,丰富了艺术形态,让简单的空间有了多层次的变化,化繁为简的布局,营造出安静且舒适的环境。

温润流畅的线条在空间中穿透,木制的体块带给整个空间温暖感,兼备了储物和书柜的功能,同时也犹如墙一般既可以实现空间的相互连贯,又可以构成空间的相互分隔。

餐厅
DINING ROOM

餐厅作为客厅的空间延伸也延续了统一的色调,木饰面分隔了玄关与餐厅,拆除了原始位于入户处的楼梯,光线可以充分的进入室内,入户玄关做了充足的储物空间,空间中黑与白的强烈对比增强简约的质感。

通过开放式布局将空间划分为入户玄关、客厅、餐厅,丰富整体空间层次,给人开阔的视野,同时增加了家人间的互动;入户左侧放置试衣镜,方便出门时整理着装,黑白相间的换鞋凳与整体空间颜色相呼应。
儿童房
CHILDREN'S ROOM

这个空间目前主要作为书房使用,屋主可以根据的需求变换功能作为孩子房使用,墙面橄榄绿的涂料充满蓬勃朝气,给这个房子增添了不一样的色彩。


考虑到未来可能作为孩子房使用,所以预留足够的储物空间,经典的黑白千鸟格配上床头童真的挂画,让空间高级中透露一丝活泼的气息。
老人房
ELDERLY ROOM


老人房没有多余的装饰和过多的陈设,和年轻人不一样,老人更喜欢沉稳大气的颜色,黑白灰的搭配淡然清雅,素雅的空间简单的装饰体现一种静态的时光流逝。
主臥
MASTER BEDROOM

主卧延续典雅浅淡的基调,大面积的原色木材延伸空间各处,木材天然的纹路肌理,温润的质感,非常容易给人亲近的感觉,消除了现代极简空间的单调感,温馨舒适之余让空间富有活力。

主卧和衣帽间用柜子作分隔,增加了储物空间,柜子中间镂空处理,从而取代了生硬的床头柜功能。

利用原始斜顶下的空间打造多功能柜体,书桌延伸连接柜体,满足了基本功能需求的同时将空间连接成一个整体。

项目地址:成都青羊区
项目户型:三室两厅双卫
设计主创:观白设计
服务模式:全案设计
项目面积:180㎡
项目施工:观白设计施工团队