我是一名从事十八年装修设计的设计师,一转眼来到*今条头日**已经有二年有余,从今日开始,我把我所做的作品分享给大家,希望借助这个平台做到资源分享。共创未来。
下面给大家介绍一下这个案例:
项目名称:兰州安宁新中式复式楼
项目地址:兰州市安宁区威廉公馆三十三层加三十四层(阳光房改造的一层复式楼)
项目平方:285平方,其中一层155平方,二层130平方
项目造价:120万
项目工期:70天
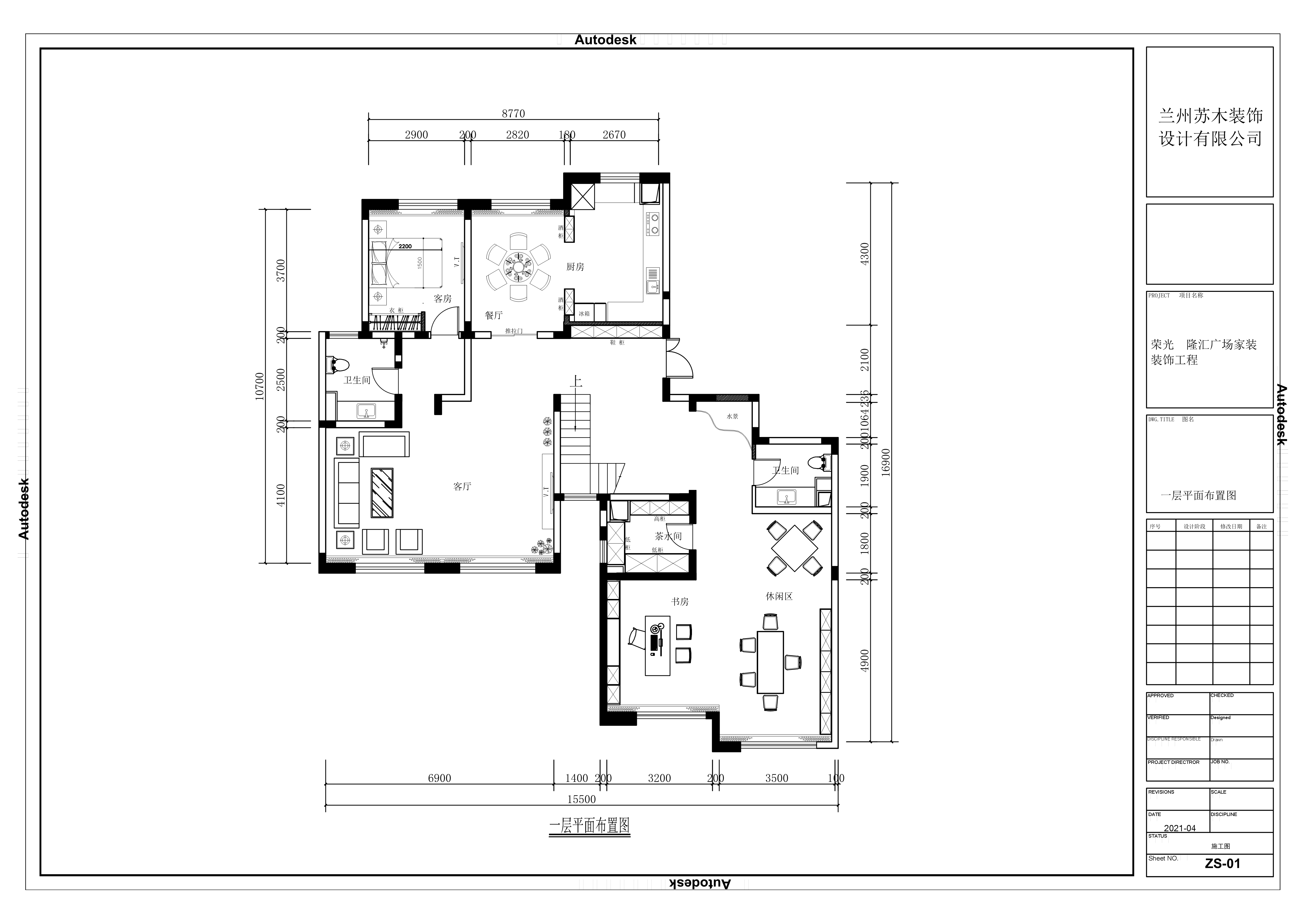
一、一层平面图

二、二层平面图

三、一层客厅


四、一层餐厅、厨房、过道



五、一层客房、卫生间


六、二层主卧室、衣帽间、主卫




七、二层次卧室01、卫生间



八、二层卧室02、卫生间



九、二层茶室、书房


第一次分享这种作品,希望朋友们给加油点赞,您的鼓励是我最大的动力,谢谢。