二批次,浦东置业指南!
浦东新区自1990年开发以来,一直飞速的发展。
2035规划中浦东新区的功能定位为:中国改革开放的示范区,上海建设“五个中心”和国际文化大都市的核心承载区,全球科技创新的策源地,世界级旅游度假目的地,彰显卓越全球城市吸引力、创造力、竞争力的标杆区域。
区内涵盖1个中央活动区,4个城市副中心,1个新城规划区。

今天我们来看一下,浦东二批次待入市的楼盘中,有哪些值得关注的项目~





1,世博保利天峯
保利世博天峯可以说是二批次浦东最值得期待的盘了,注定是一个高分高预算的项目。
上海保利世博项目,坐落于黄浦之东的江畔之地,步行即可抵达“2010上海世博会”原址。场地(世博国际村B地块)内原有建筑曾用于接待世博会参会人员,作为约有7300万游客参加的盛会的大后方,这片土地上所承载的“世博记忆”是所有上海人心中的独家记忆。

2017年7月,保利地产以49.71亿元代价获得一宗黄浦江边、规划建筑面积逾20万㎡的住宅项目50%股权。
这幅地块就是曾经的世博村,地上建筑面积达到16.73万㎡,项目的总建筑面积(包括地上车库)达到20.85万平方米。根据施工名牌来看,预计2022年10月底竣工。

项目保留了上海世博村现有的城市结构和界面,并利用建筑和公共景观资源,创造出一个具有永恒魅力和现代感的生态、绿色住宅。采用空间、光、结构秩序来塑造静谧与典雅的氛围。这分为两部分,一部分是针对体验进行设计,整合一系列随光线和结构变化的空间,进而提升使用者的感官体验。另一部分是关于如何构建结构秩序,这部分由建筑设计语言决定,将场所营造,文化,工艺等元素融入其中。

作为保利28年全球最高端作品,品牌重金邀请SCDA、诗加达(CICADA)、雅布(Yabu Pushelberg)、Kelly Hoppen等国际一线大师,联手打造黄浦*核心江**段一线滨江国际地标豪宅。
项目近享世界级滨江艺术带、上海最大开放式绿地——2平方公里世博文化公园(内含上海大歌剧院、马术中心)、五国金砖银行、央企总部等国际级配套。

以沿江罕见的2.0低容积率、建筑面积约170-250㎡的3-5房,一线奢阔江景尺度,为全球塔尖人士定制全新滨水静谧大宅。
网传户型图如下:
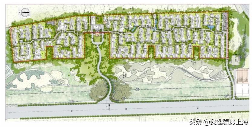
2、张江浦开江南里
张江是上海的互联网、高端制造、医药行业的产业中心,也是新上海人非常认可的一个板块。同时也是国家级规划的张江科学城的所在地。区域内地的教育资源优越,还有黄金2号线,加上张江在罗山路高架和中环线之间,地铁与驾车出行都很方便。
浦开江南里就位于唐镇西侧,张江北侧的张家浜楔形绿地范围内,项目毗邻东郊国宾馆及汤臣高尔夫别墅,价值不言而喻!

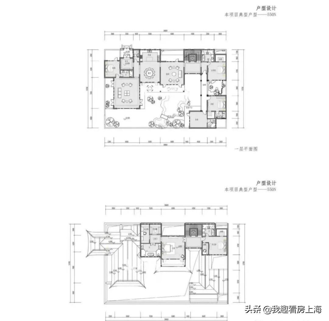
据爆料,项目实际供应房源约248套左右,其中最小的别墅190㎡,最大的别墅达到1200㎡,且仅有一套,园林面积就高达500㎡。
建面约190㎡(38套)、建面约230㎡(89套)、建面约280㎡(92套)、建面约350㎡(26套)建面约550㎡(2套)、建面约1200㎡(1套)
整个项目被一座待建的体育公园三面环绕,该体育公园占地面积达 14.4万㎡,其中80%为绿地,20%为体育运动设施。绿化率88.8%,景观湿地约45万㎡,融休闲游憩、赛事运动、商业商务、居住生活于一体,建成后将成为浦东中心城区最大公共开放式公园。而浦开·江南里就在这个开放式公园里!

项目由多幢中式别墅组团组成。容积率约0.4,在上海1.0以上宅基地供应被叫停以后,这样低密度的社区新盘已属罕见。
网传户型图如下:






对比周边的二手房,如东郊壹号、合生东郊都要25万/㎡,考虑到浦开超过250㎡的预期面积,即使加入限价等因素,保守估计也要14-18万元左右单价?总价绝不会便宜,但是,一方面是绿城的标杆,一方面是核心区位的配套,相比尽管总价较高,相信魔都的购买力也是不用愁的。
3,康桥华发仁恒海上溪云
康桥是毗邻周浦的兄弟板块,社区本身是平平无奇的,基本都是次新动迁房。但板块内交通条件是肉眼可见的,11号线秀沿路站经过康桥板块。还有新开通的18号线康桥站。其中,秀沿路站到徐家汇33分钟,到前滩20分钟。

商业配套方面,康桥迎来重大利好,上海第二家Costco确定落户康桥,将一跃成为区域商业中心。另外,康桥自身就在张江科学城的整体规划内,潜力很大,张江的配套房源供给偏紧张,康桥的住宅同还是很有潜力的。
值得一提的是,康桥的产业也很强,作为张江南区的一部分,康桥拥有美特斯邦威、漕河泾康桥商务绿洲、浦东*草烟**科创园等重磅产业,也不失为一个就近工作的区域自住选项。

华发仁恒海上溪云就位于浦东康桥镇,项目东至浦三路,北至秀沿路。距11号线浦三路站直线距离约2.3公里,距18号线康桥站约2公里。二期预计推出建面约90㎡3房洋房,建约225-443平合院。共计169套房源,上期均价67725元/。




4,曹路招商璀璨城市
2021年12月2日,上海三批次土地集中出让中,招商&南山联合体以底价270537万元竞得「招商&南山南翔地块」,楼面价2.4万元/㎡,新房联动价5.7万元/㎡。

项目四至范围:东至惠柏路,西至惠桂路,南至嘉好路、基地边界,北至惠柏路。出让面积49010.2㎡,容积率2.3,总建筑面积162958.38㎡,地上计容建筑面积112723.46㎡,
地下建筑面积39958.38㎡;在地上计容建筑中,住宅88416.9㎡,占比78.4%;租赁房16908.52㎡,占比15%;保障房5636.17㎡,占比5%,此外还有配套设施1761.87㎡;建筑密度19.51%,绿地率35.5%。

根据公示,招商&南山南翔地块将拟建14栋18-23层高层住宅以及2幢配套用房;未来预计规划总户数1203户(含20%保障房+租赁房),停车位1200个;根据出让地块要求,项目以60%中小套型为主,装修交付。
户型图如下:



5,川沙保利云山拾光
保利云上|拾光之所以被全城热捧,除了它的高性价比外,更多的人看重的是它的区位以及未来的发展前景。
项目位于上海东门户,川沙副中心腹地,背靠张江南,拥有张江高科十几万高薪人群基础,而迪士尼所在的国际旅游度假区,将南二片区规划为低密度开发区,兼具繁华与自然,带来庞大的人群聚集效应的同时,还能促进周边商业办公、影视文创、国际贸易等功能建设,打造全新的产业群体。
保利云上|拾光作为紧邻两大产业区的品质红盘,无疑会成为这些产业精英们的置业首选之地!

作为云上系首个叠墅产品,低密社区规划以及四层叠墅的户型打造,成为区域内难得的稀缺产品。项目此次加推建面约104-125㎡叠墅:叠加为毛坯交付,共96套。
上叠建面约104㎡,拥揽空中露台,打造私享空间,豪华主卧套间,尺度感拉满,尽显舒适和优雅。下叠建面约125㎡,悦享南北双花园,将室内生活向外延伸,餐客一体化的设计,大幅提升视野享受。
建面约125㎡ 四室两厅三卫

建面约104㎡ 三室两厅两卫

建面约125㎡ 四室两厅三卫

建面约104㎡ 三室两厅三卫

6,新场同润汇欣名邸
同润欣汇名邸位于浦东新区新场镇,地处南北创新走廊带的交叉点,拥有独特的战略区位优势。
作为科技产业重镇、历史文化名镇、休闲旅游新镇,未来张江生物医药产业化拓展的新空间,张江创新药产业的新基地。新场在科创、文创、乡创“三创”融合发展的道路上迎来了源源不断的创新活力和发展契机,发展红利可观。
如此得天独厚的区域,目前在售几乎无新品的状态,即将被打破。

同润欣汇名邸占地面积约2.4万方,总建面约为7.2万方,容积率2.0,绿地率35%,由3栋16-17层高层住宅与5栋6层的叠加组成,共508套,其中高层388套,叠加120套。
据悉项目首批将推出高层产品:建面约69㎡的两房和约90㎡的三房二卫,叠加产品将在后期推出。
高层户型图如下:


项目地处沪南公路汀谷路,东临汀谷路(规划中),北向沪南公路,南至六灶港,西至众安路。向西4公里即可到达S3沪奉高速(在建中),北接罗山路高架南至沪金高速,贯穿成为市中心与周浦、新场、临港、奉贤等多区域的经济纽带。项目向东600米即达S2沪芦高速收费口,可连接S32申嘉湖高速及G1501绕城高速,直达浦东国际机场。

16号线新场站距项目约2公里,另外18号线北段已于2021年12月30日正式通行;还有规划建设的27号线,据悉新场站或将成为站点之一。
总结
对于浦东的购房者来说,产业是关键导向。因为大部分买房群体都是新上海人,他们都是靠着进入好的工作单位才有了购房实力,所以相比上海土著更看重房子周围的产业能级与学区好坏。
二批次浦东预计上新的6盘当中,张江的产业能级最强,但浦开江南里属于高端改善项目,对于刚需上车族来说不是很友好,周边康桥、曹路川沙等受张江辐射,板块内配套产业能级也在不断完善,对于刚需购房者无疑是不错的选择~
还有更多问题,记得扫描下方二维码私信小趣~

- End -
由于公众号平台更改了推送规则,如果不想错过内容,记得读完点一下「赞」和「在看」,也可以将我们设为「星标★」,这样每次新文章推送才会第一时间出现在你的订阅列表里!谢谢大家关注~~
扫码添加「我趣看房」客服微信
与5万+购房者交流
不定期更新购房福利