录
第一章 管线敷设..................................................................................................................................... 1
一、
施工准备................................................................................................................................ 1
二、
工艺流程................................................................................................................................ 1
三、
工艺要点................................................................................................................................ 1
(一) 管、盒预留预埋.................................................................................................................... 1
(二) 桥架安装、线管明敷............................................................................................................ 3
(三) 线缆敷设................................................................................................................................ 3
(四) 接线........................................................................................................................................ 6
第二章 停车管理系统............................................................................................................................. 7
一、
施工准备................................................................................................................................ 7
二、
工艺流程................................................................................................................................ 7
三、
工艺要点................................................................................................................................ 8
第三章 电视监控系统........................................................................................................................... 13
一、
安装前准备.......................................................................................................................... 14
二、
工艺流程.............................................................................................................................. 14
三、
工艺要点.............................................................................................................................. 14
第四章 门禁系统................................................................................................................................... 16
一、
安装前准备.......................................................................................................................... 16
二、
工艺流程.............................................................................................................................. 16
三、
工艺要点.............................................................................................................................. 16
第五章 对讲系统................................................................................................................................... 19
一、
施工准备.............................................................................................................................. 19
二、
工艺流程.............................................................................................................................. 20
三、
工艺要点.............................................................................................................................. 20
第六章 家庭安防系统........................................................................................................................... 21
一、
施工准备.............................................................................................................................. 21
二、
工艺流程.............................................................................................................................. 222
三、
工艺要点.............................................................................................................................. 22
第七章 机房系统................................................................................................................................... 23
一、
设备安装施工准备:.......................................................................................................... 23
二、
工艺流程.............................................................................................................................. 24
三、
工艺要点.............................................................................................................................. 25
第八章 周界报警系统........................................................................................................................... 30
一、
设备安装前置工作:.......................................................................................................... 30
二、
工艺流程.............................................................................................................................. 31
三、
工艺要点.............................................................................................................................. 31
第九章 火灾报警系统........................................................................................................................... 33
一、
设备安装前置工作:.......................................................................................................... 33
二、
工艺流程.............................................................................................................................. 33
三、
工艺要点.............................................................................................................................. 34
第十章 电子巡更系统........................................................................................................................... 39
一、
安装前工作:...................................................................................................................... 39
二、
工艺流程.............................................................................................................................. 41
三、
工艺要点.............................................................................................................................. 41
第一章 管线敷设
一、 施工准备
1、施工前要熟悉图纸,并进行图纸会审;
2、核对弱电智能系统及有关设施是否符合公司技术标准要求;
3、核对弱电智能系统与土建、给排水、通风及强电线路是否冲突;
4、编制弱电智能系统安装施工方案,并经审核、审批后执行,并向施工安
装人员进行弱电系统安装技术交底。

三、 工艺要点
(一) 管、盒预留预埋
1、按照设计图纸位置预埋电缆进户管防水套管,套管止水片应双面满焊,
焊缝饱满,无夹渣、气孔;如下图

2、楼板预埋线管保护层厚度火灾报警与联动控制等消防线路管线保护层不
小于 30mm,预埋金属管;其余线路保护层厚度不小于 15mm;
3、穿墙管线预埋要套管,套管与墙板两端平齐;
4、注意弱电线盒与强电间距:与电视盒间距为 500mm,对讲与照明等强电
盒间距为 200mm;
5、对讲、出门按钮和家庭安防控制器线盒预埋为 86 型,安装高度 1.3 米;
6、家庭紧急按钮盒预埋高度 0.9 米;
7、幕帘探测器线盒安装高度 2.2 米,在窗的侧墙 300 位置安装。如下图

8、 弱电系统接地保护:弱电系统的各种电信设备、电缆、屏蔽、金属管
线等必须与接地(PE)或接零(PEN)干线相连接,不许串联连接。
(二) 桥架安装、线管明敷
1、禁止强、弱电线缆共槽、共管;
2、尽量避免管、槽穿越建筑物的沉降、伸缩缝,如必须穿过时,应做好相
应补偿处理;
3、消防线路原则上暗埋,如确需明敷设时,管、槽表面层刷防火涂料;
4、线管和桥架施工其他要求遵照《建筑电气施工及验收规范》、《智能建筑
工程施工规范》及《2014 版机电工程标准化作业清单》。
(三) 线缆敷设
1、缆线的搬运、检查和保管:缆线的搬运时要注意,切不可使缆线受碰撞
造成机械损伤。卸车时缆线不能从上直接推下,避免损伤缆线。短距离
搬运可以滚动缆线盘搬运。但地面应平整,不能有石块等杂物,滚动方
向应是缆线匝紧的方向;
2、新到的缆线应认真对每卷电线缆进行检验,检查是否有断路和短路及护
套老化现象。发现有断路和短路情况及护套老化的缆线不能用于敷线;
3、核对缆线规格、型号、数量,应与设计图纸相符。妥善保管产品合格证
及检测报告;
4、敷设前准备工作:
(1)制定敷设计划,列出缆线清单,准备必要的缆线盘架,起重工具等机
具;
(2)对缆线进行外观检查,缆线不应有机械损伤、扭曲或有急弯的地方;
外表绝缘及护套层应完好,缆线封头应完好。敷设前应进行绝缘检查
及泄漏试验;
5、缆线敷设工艺:
(1)不同系统不同电压,不同电流、强电与弱电等不应敷设在同一根管内
或同一线槽孔内;
(2)管线内穿线的利用率为 40%-50%,线槽内为 60%;
(3)管线内穿线应先穿钢丝引线,引线进线应顺其自然,不能强力拉线;
在钢管内穿线的应在管口套装保护套,以避免线缆外皮受损;
(4)导线在管内或线槽内不应有接头或扭结,不应受到外力的挤压和损伤,
导线的接头应在接线盒内焊接或用端子连接;
(5)缆线敷设应做到横竖成行,引出方向一致、弧度一致,相互是的距离
一致,避免交叉压叠,做到整齐美观;
(6)敷设在多尘或潮湿场所管路的管子和管子连接均应作密封处理;
(7)缆线出入建筑物、井道、沟道、缆线穿过楼板、墙壁或缆线有可能受
到机械损伤的地方都要穿保护管;
(8)在缆线的两端、转角处、缆线的中间接头都要挂标志牌,牌上注明缆
线编号规格、型号等;
(9)缆线在水平段的两端,垂直段落的所在支点上,缆线转角弯头的两侧,
缆线终端颈部、中间接头的两侧都要用缆线卡子固定;
(10)敷设缆线时,缆线的最小弯曲半径必须符合规范要求。橡塑电缆线
的最小允许弯曲半径是电缆直径的八倍,控制电缆为六至十倍,光缆
为 20 倍;
(11)缆线在管线中不允许有中间接头。若必须接头,接头必须做在井或
接线盒内;
(12)缆线进入沟道、井道、坚井、建筑物、穿保护管时出入口应封闭,
做好防水处理;
(13)预留线长度应按要求,缆线终接后应有余量,监控线缆前端余量为
1m; 86 盒、门口机底盒内线缆头余量为0.5m;室内外设备、电源箱
线缆余量为箱体的高与宽之和;进监控中心线缆长度为线缆引至要连
接设备所在机柜底部后再预留机柜的高与宽之和;机房内设备与设备
的连接线宜在设备定位之后再敷设,两头各留 0.5m 余量,光缆布放
宜盘留,预留长度宜为 3-5m。有特殊要求的应按要求预留长度;
(14)统一线颜色:同种用途的线均颜色相同;
(15)所有线缆要做好标记,对于前端设备接线处应用塑料号码管编号套
上,控制中心设备接线处应用塑料号码管编号套上,在穿线时,楼间
设备箱内可以用贴标签纸编写号码;
(16)导线检测:通、断测量:用专用设备检测每一根导线的通、断,如
发现有不通或短路现象,立即返工;绝缘电阻测量:用 500V 的兆欧
表对每回路的导线测量其绝缘电阻,对地绝缘电阻值、线间的绝缘电
阻值应大于 20 兆欧;
(17)所有检测必须做好记录,施工人员签字备查,隐蔽工程报监理签字;
(18)控制中心电缆的敷设:
①采用地槽或墙槽时,电缆应从电视墙机架、操作控制台底部引入,
将电缆顺着所盘方向理直,按电缆的排列次序引入槽内;拐弯处应符
合电缆曲率半径要求。电线离开电视墙机架和操作控制台时,应在距
起弯点 10mm 处成*绑捆**扎,根据电缆的数量应每隔 100-200mm 绑扎一
次;
②采用架槽时,架槽宜每隔一定距离留出出线口。电缆由出线口从机
架上方引入,在引入机架时,应成*绑捆**扎;
③采用电缆走道时,电缆应从机架上方引入,并应在每个梯铁上进行
绑扎;
④采用活动地板时,电缆在地板下可灵活布放,并应顺直无扭绞;在
引入机架和控制台处还应成*绑捆**扎;
⑤在敷设的电缆两端应留有适度余量,并标示明显的永久性标记;
⑥引入、引出房屋的电(光)缆,在出入口处应加装防水罩。向上引
入、引出的电(光)缆,在出入口处还应做滴水弯,其弯度不得小于
电(光)缆的最小弯曲半径。电(光)缆沿墙上下引入、引出时应设
支持物。电(光)缆应固定(绑扎)在支物上,支撑物的间隔距离不
宜大于 1m;
⑦控制中心内光缆的敷设,在电缆走道上时,*端机光**、光纤收发器上
的光缆宜预留 10m;余缆盘成圈后应妥善放置。光缆至*端机光**、光纤
收发器的光纤连接器的耦合工艺,应严格按有关规定进行。
(四) 接线
1、接线人员应认真熟悉接线图,剥线皮时不能损伤线芯(剥线皮时应用相
应规格的剥线钳,不能使用剪刀或斜口钳),线头长度 10-15mm;
2、多股铜芯线接头处应先拧紧线芯,搪锡连接,焊接好并用绝缘包布缠严
密,地埋要做好防水处理;
3、设备接线柱接线,多股铜芯应先拧紧,要求上插针的必须做好插针,按
线柱螺丝拧紧不得有松动;
4、电线或电缆剥出的裸铜线长应应一致,接线端子拧紧后不应有裸铜线露
出;
5、严格按用线色标规定接线,接线要保持极性统一,线色与接线柱号相同,
做好标签;
6、分支线接线、主干线接线,不应有来自任何横向的拉力和压线现象。
第二章 停车管理系统
一、 施工准备
1、施工前要熟悉公司的系统配置标准及施工图纸;
2、核对订购的系统设备规格型号否符合公司技术标准要求,安装是否有难
度,还有哪些需要技术变更等。

三、 工艺要点
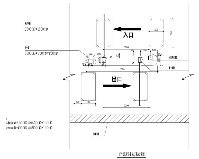
1、修建安全岛前先确定各设备和岗亭的摆放位置,再敷设管线,然后进行
设备的安装;
2、管理设备安装定位参考图




3、地感线圈埋设:
(1)在出入口车道路面铺设完成后或铺设路面的同时进行;
(2)地感线圈沟槽切割避开金属物 2 米以上,深度 50mm,宽度 40mm。馈线
沟槽宽度 70mm,深度 50mm。当路面铺设好或正在铺设路面时,在出入
口机、道闸安装位置附近的车道上,切一线圈放置槽(线圈放入切槽内),
将道闸地感线沿切槽绕 6 圈,控制机地感线圈绕 4 圈,并将线圈的两个
端子引入出入口机、道闸的机箱内,并用水泥、环氧树脂或沥青填充切
槽;
(3)电阻测量:绕线后绝缘电阻不小于 10 兆,直流电阻 4-6 兆。

4、设备安装
(1)出入口机、道闸的安装:
①浇铸高 200mm 的安全岛基座,并在出入口机、道闸底座中部预埋(安装附件和)铺设管线;
②用四个膨胀螺栓将出入口机(并根据实际情况,加强固定,确保安全)、
道闸固定在安全岛上;
(2)摄像机、射灯安装:摄像机高度 1.5 米,射灯高度 0.5 米,避免逆光
安装。
5、系统调试:
(1)在通电前一定要仔细检查各设备电源线有无错接、反接的现象,检查
无误后接通电源,发现异常立即断电;
(2)出入口读卡测试:
①首先在停车场入口处,取一块铁片或开车压在地感线圈上,显示屏应
显示读卡提示,将卡(必须是已出场或还未入场)靠近读卡机,蜂鸣器
鸣叫,道闸开启,显示屏进口应显示入场及语音提示。铁片或车辆从道
闸地感线圈上方(距地 10cm)经过,道闸自动下落;在下落过程中将将
铁片重新移入地感线圈上方,闸杆应立即向上运动(防砸车功能)。
②然后在停车场出口处,取一块铁片或开车压在地感线圈上,显示屏应
显示读卡信息,将入口处读过的(必须是先进场才能出场)卡靠近读卡
机,蜂鸣器鸣叫,道闸开启,显示屏进口应显示,并伴有语音提示。将
铁片或车辆从道闸地感线圈上方(距地 10cm)经过,道闸自动下落;在
下落过程中将将铁片重新移入地感线圈上方,闸杆应立即向上运动(防
砸车功能)。
第三章 电视监控系统
13 14
一、 安装前准备
1、施工前要熟悉公司的系统配置标准及施工图纸;
2、核对订购的系统设备规格型号否符合公司技术标准要求,安装是否有难
度,还有哪些需要技术变更等;
3、检查镜头与摄像机接口类型(C\CS)是否匹配;
4、调整镜头光圈与对焦,将摄像机逐个通电进行检测和粗调,在摄像机处
于正常工作状态后,方可安装;
5、检查云台的水平、垂直转动角度,并根据设计要求定准云台转动起点方
向;
6、检查摄像机防护罩的雨刷动作;
7、检查摄像机防护罩内紧固情况;
8、检查摄像机座与支架或云台的安装尺寸;
9、检查线缆是否符合公司技术要求:模拟系统传输距离不超过 200m,可选
用 SYV75-5 视频同轴电缆,超过 200 m 采用光纤传输。数字系统距离不
超过 90m 用网线,超过用光纤传输。

三、 工艺要点
1、正式安装前先对摄像机进行初步安装,经通电试看,细调,检查各项功
能,观察监视区域的覆盖范围和图像质量,符合要求后方可固定;
2、摄像装置的安装应牢靠、稳固;
3、从摄像机引出的电缆宜留有 1m 的余量,云台类摄像机不得影响摄像机的
转动;摄像机的电缆和电源线均应固定,不得用插头承受电缆的自重;
线缆接头宜采用插拔件方式连接。
4、固定摄像机的安装指向与监控目标形成的垂直夹角宜≤30°,与监控目
标形成的水平夹角宜≤45°;
5、在强电磁干扰环境下,摄像机安装应与地绝缘隔离;
6、信号线与电源线分路引入,外漏部分软管保护,软管与摄像机外壳用连
接件连接;
7、云台解码器安装安装牢固,转动无晃动,解码器安装在云台附近或吊顶
内;
8、摄像头调试:
(1)打开自动电子快门功能,用控制器将镜头光圈调到最大;
(2)将摄像机对准 30 米以外的物体,聚焦调至无穷远处,调整镜头后截距
使景物最清楚;
(3)用控制器调整镜头变焦将景物拉到最近微调镜头;
9、矩阵相关功能测试:
(1)视频切换:将可被选择的摄像机图像显示在监视器上;
(2)巡回切换:将按程序编排的一系列摄像机图像相继显示在一台监视器
或多台监视器上,并以秒为单位调整显示时间;
(3)群组切换:将按程序编排的一系列摄像机显示在被选择的一组监视器
上,每切换一步这一组监视器的画面同时巡回切换;
(4)报警响应:通过报警输入单元将报警信号送至主机,某一路探测器触
发报警后对应的图像在设定的监视器上切换;
(5)云台、镜头控制:通过矩阵的总线或曼码输出端口对前端摄像机云台、
镜头进行控制,并进行预置位的设置和调用;
(6)系统时间、画面标题设置:可设置、显示系统时间,及对相关画面显
示的区域地点进行文字说明;
第四章 门禁系统
一、 安装前准备
1、施工前要熟悉公司的系统配置标准及施工图纸;
2、核对订购的系统设备规格型号否符合公司技术标准要求;
3、单元门框安装时检查线缆锁线是否预埋到位,绝缘是否符合要求。

三、 工艺要点
1、设备安装:
(1)单元门口机安装高度应满足门口机摄像头距地 1.5 米,确需露天安装
时应加防雨罩;
(2)出门按钮安装高度 1.3 米,与照明开关距离不小于 0.2 米;
(3)电磁锁安装橡胶垫圈等配件齐全,插销孔正对插销(下图)



2、设备调试:
(1)将电磁锁延迟时间调整为 8-10 秒;
(2)各单元门禁控制器编码应不重复,编码应与单元号一一对应,并记录
作为竣工资料存档 ,门禁卡发卡应与相应单元的门禁控制器编码相对
应,做到发卡准确。
(3)刷卡开门、出门按钮开门功能正常,开门延时时间设置合理。
(4)门禁控制器储存信息功能正常。
(5)联网功能:联网状态下,门禁控制器和管理中心电脑之间的信息传输
功能正常,实时、准确显示刷卡信息并能储存、查询信息。
(6)故障排除:

第五章 对讲系统
一、 施工准备
1、核对对讲系统设备采购是否符合公司技术标准要求:
(1)室内机选型启航项目采用非可视对讲;
(2)乐居项目均采用黑白可视对讲;
(3)圆梦、尊享项目采用彩色对讲;
(4)门口机具有夜视功能;
2、检查线缆绝缘;
3、室内对讲分机安装前要检查对讲分机配件是否齐全,对对讲分机逐个通
电进行检测和粗调,在对讲分机正常状态后,方可安装。


注:精装项目户内弱电设备点位高度以精装图纸为准。
2、调试:
(1)整个单元系统全部安装完毕,检查所有接线无误情况下,可以通电对
对讲系统先进行单体调试,调试完毕后再做整体调试;
(2)系统进行调试做好调试记录,画出接线箱的接线图,完成后画出系统
竣工图。
(3)室内机:
①门铃提示及与门口机、围墙机通话、与管理员机通话清晰;访客图
像清晰(可视);
②室内开启单元门锁功能正常。
(4)单元门口机:
①呼叫住户和管理员机的功能正常,呼叫室内机编码正确;
红外夜视功能正常(可视);
②密码开启单元门锁功能正常;
(5)管理员机:
① 与任一门口机、围墙机、室内机互相呼叫正常,通话清晰;
② 开启单元门锁功能正常;
③ 访客图像清晰(视频联网);
第六章 家庭安防系统
一、 施工准备 22
1、技术交底(设备安装区域区别):
上海、苏州地区精装修房每层每个门窗均设置安防探测器,除厨卫间外
每个房间均设置手动报警按钮,其余地区或毛坯交付的小区仅最下两层
和顶层住户客厅和主卧设置红外探测器和手动报警按钮。
2、检查以上部位管线、盒是否敷设到位。



2、调试要点:
(1)探测器安装后应对其安装角度、防护范围、灵敏度等功能进行逐一调
试;
(2)住户报警主机安装后应对其布防、撤防、旁路和本地/联网报警显示功
能、报警延时时间逐一调试,均应正常;
(3)进户门出入口位置的探测器应设置为进入/退出延时防区;
(4)紧急按钮应为 24 小时防区,能及时准确传输紧急求助信号,交付验收
时应处于复位状态;
(5)管理中心能正确显示和存储住户报警主机各种报警信号,并能实时记
录和准确确认报警或故障发生的地址、防区、日期、时间、及类型等
信息;
(6)每户报警主机的编程地址与对应的住户单元号房号应一一对应,并留
有书面记录作为竣工资料。
第七章 机房系统
一、 设备安装施工准备:
1、机房土建施工完毕,地面找平,清扫干净;
2、检查并修复渗漏部位; 24
3、吊顶、隔断装修完毕(室内装饰装修施工宜按由上而下、从里到外的顺
序进行);
4、潮湿区域应按设计要求铺设防潮层,并做到均匀、平整、牢固、无缝隙;
5、吊顶、隔断墙、内墙和顶棚及柱面、门窗以及窗帘盒、暖气罩、踢脚板
等施工的验收内容和方法,应符合现行国家标准《建筑装饰装修工程质
量验收规范》GB 50210 的有关规定;
6、地面处理施工的验收内容和方法,应符合现行国家标准《建筑地面工程
施工质量验收规范》GB 50209 的有关规定。防静电活动地板的验收内容
和方法,应符合国家现行标准《防静电地面施工及验收规范》SJ/T 31469
的有关规定;
7、必要的电磁屏蔽安装(砖混结构墙体磁场干扰强度不大于 800A/m);
8、等电位箱安装完毕;
9、照明、空调、摄像机安装符合《电子信息系统机房施工及验收规范》
GB50462-2008。
二、 工艺流程

三、 工艺要点
1、机房配电:
(1)双电源末端自动切换供电方式,设专用电箱各子系统电源独立控制;
(2)配备 6-15KVA 容量,放电时间 2h 的 UPS 供电;
(3)电气装置的安装应牢固可靠、标志明确、内外清洁;
(4)开关、插座应按设计位置安装,接线应正确、牢固。不间断电源插座
应与其他电源插座有明显的形状或颜色区别;
(5)落地安装的电源箱、柜应有基座。基座及电源箱、柜安装应牢固,箱、
柜内部不应受额外应力。接入电源箱、柜电缆的弯曲半径宜大于电缆
最小允许弯曲半径。电缆最小允许弯曲半径宜符合下表的要求;

(4)不间断电源及其附属设备安装前应依据随机提供的数据,检查电压、
电流及输入输出特性等参数,并应在符合设计要求后进行安装。安装
及接线应正确、牢固;
(5)线缆端头与电源箱、柜的接线端子应搪锡或镀银。线缆端头与电源箱、
柜的连接应牢固、可靠,接触面搭接长度不应小于搭接面的宽度;
(6)机房内电缆、电线的敷设,应排列整齐、捆扎牢固、标志清晰,端接
处长度应留有适当富裕量,不得有扭绞、压扁和保护层断裂等现象;
在转弯处,敷设电缆的弯曲半径应符合规定。电缆接入配电箱、配电柜时,应捆扎固定,不应对配电箱产生额外应力;
(7)电缆桥架、线槽和保护管的敷设应符合设计要求和现行国家标准《建
筑电气工程施工质量验收规范》GB 50303 的有关规定。在活动地板下
敷设时,电缆桥架或线槽底部不宜紧贴地面。
2、防雷与接地:
(1)接地端子应做明显标记,接地线(扁钢)应沿长度方向用油漆刷成黄
绿相间的条纹进行标记;
(2)浪涌保护器(SPD)采用不小于4mm2 RBV接地线,长度不大于0.5米,安
装牢固,接线可靠。安装多个浪涌保护器时,安装位置、顺序应符合
设计和产品说明书的要求;信号浪涌保护器(SPD)均为串联连接信号
电路,靠近被保护的设备端口,采用不小于1.5mm2 RBV接地线,长度不
大于0.5米;
(3)每台机柜设备的保护接地必须通过一条尽可能短和粗的接地线接到汇
流排的一个点位。(RBV-16~25mm2);
(4)组合机柜必须用 RBV-16mm2 接地线线跳接;
(5)同一间机房内的多台设备的接地,应并接到汇流排的一个点位,不宜
分散接到汇流排的多个点位上,不宜串接;
(6)设备内部的各子系统的接地,只能接到主设备的外壳上,不宜穿过主
设备外壳直接到汇流排上;
(7)进入机房的电源线,设置电源避雷装置;
(8)桥架两端均需接地跨接(RBV-6mm2)。
3、综合布线:综合布线应包括机房内的线缆敷设、配线设备和接插件的安
装与验收。
(1)线缆的布放应自然平直,不得扭绞,不宜交叉,标签应清晰;弯曲半径
26 27
应符合下表规定;

(3)设备跳线应插接,并应采用专用跳线;
(4) 从配线架至设备间的线缆不得有接头;
(5) 线缆敷设后应进行导通测试;
(6)当采用屏蔽布线系统时,屏蔽线缆与端头、端头与设备之间的连接应
符合下列要求:
①对绞线缆的屏蔽层应与接插件屏蔽罩完整可靠接触;
②屏蔽层应保持连续,端接时宜减少屏蔽层的剥开长度,与端头间的裸
露长度不应大于 5mm;
③端头处应可靠接地,接地导线和接地电阻值应符合设计要求;
(7)信号网络线缆与电源线缆及其他管线之间的距离应符合设计要求,并
应符合下表规定;
对绞电缆与电力线最小净距(mm)




(1)调整地脚螺丝使机柜安装水平后,用固定螺丝固定;
(2)至少保持与墙面 0.5 米的间隙,方便通风和检修;
(3)通电检查是否正常。
7、机柜及系统设备安装:
(1)机柜后面与墙面距离为 80cm;
(2)进出机柜及系统设备的线缆排列、绑扎整齐,标识清楚;
(3)调试前机柜内除尘彻底。
第八章 周界报警系统
一、 设备安装前置工作:
(1)管线埋设完成;
(2)围墙土建施工完成;
(3) 需安装周界报警的围墙周围树木无遮挡(必要时进行移栽或修剪);
(4)完成技术交底:
① 采用二光束室外型红外线探测器,增益回路自动调节感应度控制,
适应雨、雾、雪等恶劣气候
② 系统采用总线制传输方式,通过总线防区地址模块接入前端探测
器;系统供电由机房 UPS 电源集中供应 AC220 电源至前端智能化
电源箱,箱体内设置开关电源变压后给探测器供电。应配置满足系
统连续工作≥8H 的备用电源;各防区的距离应按产品技术要求设
置,且最大距离 应≤50m;
③ 每条总线的传输距离应 ≤1200m,若超过要在每条总线上安装总线
30 31
信号放大或增强器,以延伸总线传输距离。
④ 总线报警模块、脉冲控制主机需安装于室外防水设备箱内,配置防
雷接措施(箱体尺寸为 500(宽)*600(高)*200(深)mm)。
(5)设备采购符合公司技术标准,且已到场:
①中心采用报警控制主机、计算机及管理软件对报警事件进行记录及
管理,报警主机自带防区数量及能储存的事件容量应满足项目要求(如
采 DS7400 系统,上海地区所有系列小区均设置电脑加管理软件,其它
区域可不考虑。如采用 BOSCH MT 系列,则均要配置电脑加管理软件)。
周界报警系统可与室内报警系统共用报警主机;
②室外系统信号线及电源线应采用防水电缆。

到支架的线较长时,要用软管保护;探测器内的引线不要太长,以免影
响探测器工作;
5、周界入侵探测器的安装,应无盲区,并排除围墙边的干扰因素如树枝叶
的影响。
6、电子围栏根据防护高度要求分为 6 线、8 线,最下一根围栏导线与围墙顶
间距应为 150 ㎜,水平相邻围栏导线之间距离应为 200 ㎜。每个防区一
般不超过 70M。上海需满足自下而上间距 120mm、120mm、120mm、150mm、
150mm、150mm,且最上面一根金属导线与围墙间距不小于 800mm,围墙高
度为 2.0m 至 2.8m 之间。(技防办有特殊要求的以技防要求为准)
7、电子围栏的每个防区两端应安装终端杆,所有拐角处、高低落差处安装
承立杆固定,直线处相隔 4m 或每个围墙柱子设置一根中间杆,当连续四
根中间杆后第五根必须用承力杆做间隔。(不同产品根据产品要求确定)
8、在电子围栏上醒目的位置,每隔 10m(或以内),应挂上专用的“电子围
栏,禁止攀登”标牌。

(2)通电检查电源指示是否正常。
(3)报警试验:
①开路试验 4 秒后检查数字显示窗显示数是否为 0,报警灯是否亮,喇
叭是否响,此时高压脉冲指示灯微弱闪亮,接受指示灯不亮,发送指
示灯闪亮,报警继电器常开点断开常闭点接通;
②短路试验 4 秒后,报警指示灯亮,内部报警喇叭响,高压脉冲指示
灯微弱闪亮,发送和接受灯闪亮,报警继电器常开和常闭点断开。拆
短路线后恢复正常。
第九章 火灾报警系统
一、 设备安装前置工作:
(1)管线埋设完成;
(2)材料设备采购到位:各种探测器、手动报警钮、警铃、火灾报警控制
器、火灾专用配线箱或接线箱、消防控制柜(盘)等;
(3)万用表、兆欧表等仪器仪表准备到位;
(4)导线间绝缘电阻值经测试应符合国家规范要求,并编号。

三、 工艺要点
1、火灾探测器的选择:根据设计要求选用合理的探测器类型(地下室可选
用烟感加温感,楼层里楼道、前室选用烟感探测器);
2、火灾自动报警系统传输线路金属管暗敷设,保护层厚度大于 30mm,确需
明敷设的管、槽面刷防火涂料;
3、不同系统、不同电压、不同电流的线路不应穿在同一根管、槽内;
4、横向敷设的报警系统传输线路如采取穿管布线时,不同防火分区的线路
不应穿入同一根管内;
5、 弱电线路的电缆与强电线路的电缆如受条件限制,必须合用同一竖井时
应分别布置在竖井的两侧;
6、 火灾探测器的传输线路应选择不同颜色的绝缘导线,同一工程中相同线
别的绝缘导线颜色要一致,接线端子应有标识;
7、探测器的安装:
(1)探测器的安装定位:探测区域内的每个房间至少应设置一只火灾探测
器。感烟、感温探测器的保护面积和保护半径应按下表所示;

棚上设置感烟、感温探测器时,可不考虑对探测器保护面积的影响;
(3) 当梁深突出顶棚的高度在 200~600mm 时及梁突出顶棚的高度在 600mm
以上时,被梁隔断的区域至少设置一只探测器,应按规定图、表确定
探测器的安装位置;
(4)安装在顶棚上的探测器边缘与下列设置的边缘水平间距离宜保持在:
①与照明灯具的水平净距不应小于 200mm;
②感温探测器距高温光源灯具(如碘钨灯、容量大于 100W 的白炽灯等)
的净距不应小于 500mm;
① 距电风扇的净距不应小于 1.5m;
② 距不突出的扬声器净距不应小于 100mm;
③ 与各种自动喷水灭火喷头净距不应小于 300mm;
④ 距多孔送风顶棚孔口的净距不应小于 500mm;
⑤ 与防火门、防火卷帘的间距,一般在 1~2m 的适当位置。
(5)在宽度小于 3m 的内走道顶棚上设置探测器时,宜居中布置。感温探测
器的安装间距不应超过 10m,感烟探测器的安装间距不应超过 15m,探
测器至端墙的距离不应大于探测器安装间距的一半,如图所示;



(11) 探测器的固定:
探测器的固定,主要是底座的固定,探测器旋转卡固定在底座上。先
将预留在盒内的导线剥去外皮,露出线芯 10~15mm (注意不要碰掉编
号套管),顺时针压接在探测器底座的各个接线端子上,然后将底座用
配套 的机螺丝固定在预埋盒上,并上好防尘防潮罩。最后按设计图纸
要求检查无误后,再拧上探测器头;
8、手动火灾报警按钮的安装:
报警区域内每个防火分区,应至少设置一只手动火灾报警按钮。从一
个防火分区任何位置到最邻近一个手动火灾报警按钮的步行距离,不
应大于 30m;
手动火灾报警按钮的安装基本上与火灾探测器相同,需采用相配套的
灯位盒安装;
9、警铃安装:
一般应安装在门口、走廊和楼梯人员众多的场所。警铃安装在室内距
楼(地)面 2.5m 以上,固定螺丝上要加弹簧垫;
10、端子箱安装:
设置在专用竖井内的端子箱,应根据设计要求位置用金属膨胀螺栓将箱
体固定在墙壁上(明装)。管进箱处应带好护口,将干线电缆及支线分
37 别引入;
11、区域火灾报警控制器:
区域火灾报警控制器一般为壁挂式,可以直接安装在墙上,也可安置在
支架上。控制器底边距地面的高度不应小于 1.5m,靠近门轴的侧面距墙
不应小于 0.5m,正面操作距离不应小于 1.2m。并在周围留有操作、检
修的空间位置。
12、集中火灾报警控制器的安装:
集中火灾报警控制箱(柜)、操作台的安装,应将设备安装在型钢基础
底座上,一般采用 10 号槽钢。 型钢的底座制作尺寸,应与报警控制器
相同。基础型钢的制作及报警控制器在型钢上安装。柜后面板距离不得
小于 1m,当一侧靠墙安装时,另一侧距墙不应小于 1m。
13、消防广播:
①安装前要检查配件是否齐全、将广播逐个进行检测,在每个广播正常
工作状态后,方可安装;
②根据设计图纸确定每个广播的正确位置、方向;整个系统全部安装完
毕,检查所有接线无误情况下,可以通电整个系统进行调试;
14、系统接地:
①工作接地电阻小于 4Ω,采用联合体接地时,接地电阻值小于 1Ω;
当采用联合接地时,应用专用接地干线由消防控制室引至接地体;
②专用接地干线应用铜芯绝缘导线或电缆,其线芯截面不应小于
16mm2 ;
③由消防控制室接地端子板引至各消防设备的接地线,应采用铜芯绝缘
软线,其线截面积不应小于 4mm2 ;
⑤ 工作接地与保护接地应严格区分开,不得利用金属软管作为保护接
地导体。
第十章 电子巡更系统
一、 安装前工作:
1、 安装前需了解电子巡更的工作原理(在巡查线路上安装一系列代
表不同点的射频卡(又称感应卡,信息钮,有固定的不同卡号),
当巡更者巡查到各点时用其手持式巡更棒读卡,把代表该点的卡
号和时间及情况同时记录下来,巡查完成后通过无线传输把巡更
棒数据传给计算机软件处理,以对巡查情况(人员、地点、时间、
情况等)进行记录和考核,实现物业科学化管理),电子巡更系统
分为有线和无线两种,公司目前采用无线(离线安装)形式。



三、 工艺要点
1、巡更钮壁挂式安装(使用直径 3-4mm 塑料胀栓墙上固定),高度 1.3 米(特
殊情况除外);
2、安装时记录对应的安装地点,以便与系统管理主机设置对应。
3、调试:
(1)进行系统软件初始化设置;
(2)按照图纸设置巡更路线;
(3)用巡更棒对巡更点逐一进行操作,确认巡更棒读取的数据正常有效;
(4)主机测试巡更棒读取的数据(读入、查询、修改、打印、删除等操作)。