【小区名称】:景城花园
【装修面积】:130㎡
【小区简介】:小区中花园环绕,环境优美,健身设施齐全,周边配套设施一应俱全,景色宜人
【设计理念】:家的样子千万种,每个人都有着对家不一样的概念和理解,做到业主心中理想的家才是好的设计的开始。

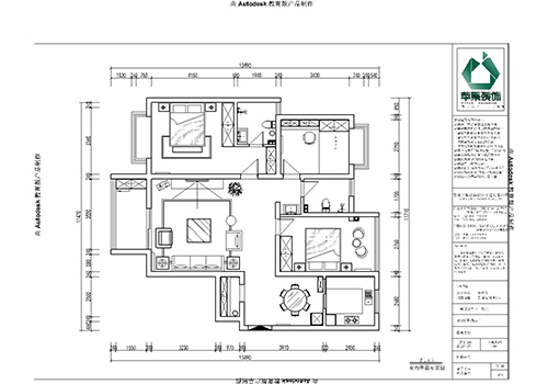
户型解析设计篇
①厨房去除掉不必要的墙体,既增加了空间利用率,还增加了生活的美观性。
②改造了主卧门的位置,增加了卫生间的私密性。


效 果 图
简欧以浅色为主色,深色为辅的设计风格 ,给人带来的感觉是清新,让人心中的一缕疲倦淡化而,再没有什么比简欧更配得上不甘平庸,却不想失去简单的你。

御品黄与象牙白的主色调搭配精妙的深色点缀,让时尚而不浮夸的气质得到完美体现,餐厅才是家中最美得地方呢。

简欧的装修风格更符合中国人内敛的气质,和欧式风格的最大区别在于色调和罗马柱的区别,骈弃了一般花哨的修饰。整个房间的画面感,简约统一。

我们都在追求自己梦想的道路上过关斩将,最终在自己的一片天地中,更应该认真的对待自己的家装修的样子。
设计师介绍

苹果装饰合肥店首席设计师:李胜
一直秉承着“家的样子千万种,每个人都有着对家不一样的概念和理解,做到业主心中理想的家才是好的设计的开始。”的设计理念,拥有7年的设计实践经验。