人类文明从有记录以来已经有了5000多年的历史了,这个过程中留下无数璀璨的文化,建筑是保留人类文化活动的一个重要证明,随着全世界现代化的进程,如何对这些老建筑进行重新利用与保护是当代设计师应该面对的问题。

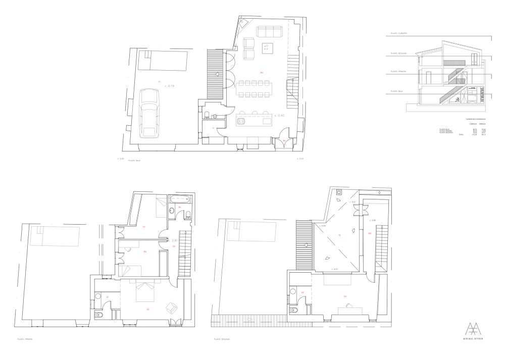
今天我们介绍的这个建筑位于西班牙,已经超过百年的历史了,一座三层的复古小楼,大概212平米。从平面上看一层为公共空间包含客餐厅、厨房、卫生间和楼梯,二楼三楼主要为卧室,共三个卧室。

设计师在改造时因为政策等要求,保留了大量原建筑的元素,比如保留了外墙粗糙的岩石装饰,地面是按摩鹅卵石,走在上面酸爽酥麻。这是对一些墙面采用了白色涂料装饰让空间显得没有那么的沉闷。家具方面采用古典与现代的结合用最原始的大木头做的餐桌,搭配亚克力一体成型的餐椅,对比分明就像自然与科技的碰撞。





原来建筑是有一个地窖的,因为户外施工及使用不方便,设计师便在客厅挖了一个通往地下室的入口,就像窑洞一样,作为屋主的工作室,冬暖夏凉。


楼梯的水磨石和走廊的仿古砖都是具有历史纪念意义的建筑材料,也能反映出时代的变迁。


卧室的改造与公共空间类似,墙面都保留了原始的岩石装饰,地面具有历史感的瓷砖,也让这个小别墅拥有古堡一般的价值。



顶层就像一个历史展览馆一样陈列着一些老物件,别看他们老,都还是能使用的。


这个项目的改造对原建筑的变动较小,也是保护和重新利用古建筑比较成功的典范。