东南亚风格
带/你/领/略/异/域/风/情

项目地址|无锡·复地源墅
项目风格|550㎡东南亚风
总设计师|黄江林
设计机构|H&A米兰国际设计
施工单位|H&A米兰国际设计

设计说明
东南亚风格是一种结合了东南亚民族岛屿特色及精致文化品位的家居设计方式,多适宜喜欢静谧与雅致、奔放与脱俗的装修业主。东南亚风格广泛地运用木材和其他的天然原材料,如藤条、竹子、石材、青铜和黄铜,深木色的家具,局部采用一些金色的壁纸、丝绸质感的布料,灯光的变化体现了稳重及豪华感。还添加了中式元素与现代材质的巧妙兼柔,明清家具、窗棂、布艺床品相互辉映,再现了移步变景的精妙小品。

客 廳

传统与现代居室风格的碰撞,通过打造适合现代人的生活方式和习惯的东南亚风格氛围,以现代的装饰手法和家具,并结合古典中式的装饰元素,来呈现亦古亦今的空间氛围。
餐 廳
01
中 餐 廳

将传统的东方美学融于现代审美设计,其中形,灵,神缺一不可。家里的主色调为深胡桃木色,局部采用浅色的石材进行空间的点缀,使得整个空间不会彰显的沉闷。
02
西 餐 廳

通过不同的材料和色调搭配,保留了自身的特色之余,产生更加丰富多彩的变化,尤其是融入中国特色的家具,重视细节装饰的设计。在材料上的运用也有其独到之处。
書 房

设计以不矫造作的材料营造出豪华感,使人感到既创新独特又似曾相识的生活居所,结构上着重突出整体空间的层次美,让人能够静下心来,在视觉上给人以质朴气息,色调沉稳大气。
臥 室
01
二樓主臥

以简洁的表现形式来表现人们对空间环境那种感性的本能的和理性的生活需求。室中清洁雅素,一涉绚丽,便如闺阁中,非幽人眠云梦月所宜。给人以“静、虚、淡、远”的心灵感受,使人在繁忙的都市生活里得到心灵的沉淀。
02
三樓主臥

最近电视剧《长安十二时辰》热播,引发许多讨论。其中较为考据精致的服装道具让人眼前一亮——不再是充满想象的日式风味,而是真正靠近本土化风格。《长安十二时辰》参考了大量的出土*物文**、壁画,几乎在每个镜头里都会出现让文博爱好者为之会心一笑的小惊喜。
03
三樓兒童房

将现代元素和传统元素结合在一起,继承了东南亚的传统风格,但是又不拘泥于传统,窗帘色彩明亮结合了现代风格。使人耳目一新,富有乐趣。
地 下 室
01
娛樂廳

木制半透明的推拉门与墙面木装饰的装饰造型。使生活的实用性和对传统文化的追求同时得到了满足影视墙的造型简洁现代,绝妙的组合给人以强烈的视觉意志力,成为时尚与古典的柔媚结合。
02
臺球室

简单又利索的规划使宽阔的空间视觉舒展放松,现代化的设备、深木色的家具与精致的吊灯,一切都那么和谐舒适。带着一丝古典能够满足整体实用的功能性,即体现视觉上的美观,又具有实用性。
02
酒吧區

通过对传统文化的深刻理解,将传统元素与现代设计手法融合,酒柜的木作造型柜既实现收纳功能,运用挑空使空间拉伸,使人视觉感拉伸延长,使整个空间更为灵动。
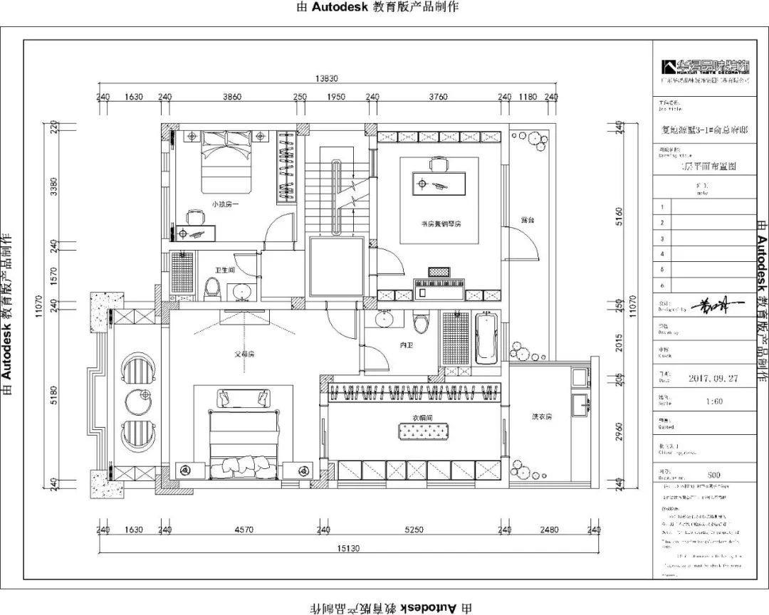
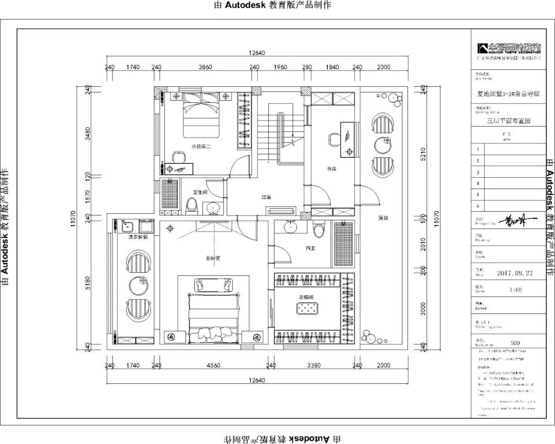
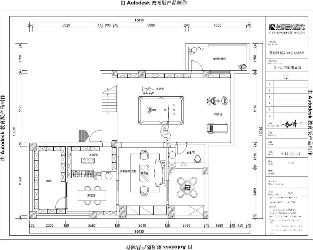
// 平面布置图 //

1/4
一楼平面图

2/4
二楼平面图

3/4
三楼平面图

4/4
地下室平面图

主创设计师

黄江林
无锡华浔·设计总监
擅长风格:新古典奢华 后现代奢华 美式 新中式 古典中式
设计理念:空间,是室内设计最核心的要素,空间艺术是物质需求和精神需求的统一体。风格,是文化的延续,是业主审美情趣的再现
设计作品:玉兰花园、保利香槟、紫金伴山、时代上城复式、金科世界城复式、嘉洲洋房复式、国信世家复式、亚美利加复式、中富美林湖别墅、银河湾别墅、复地澜湾别墅、亚美利加别墅、华府庄园别墅、盛世翡翠苑别墅等