北欧风具有独树一帜的极简格调,关注生活,既能散发人文气息,又能酷到没亲戚,美学和功能性兼顾。即使单纯论美感,也魅力四射,对追求简约生活的人极具吸引力。
案例简介
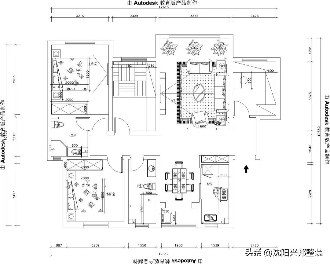
本案是首创光和城124㎡北欧风格,没有鲜明的色彩堆砌,简单质朴、清新唯美,没有过于复杂的装饰,木地板+乳胶漆墙面,简简单单;空间氛围以软装为主导,布置温馨舒适的家居细节,营造了一个舒适轻松而简约大方的居住空间。

客厅
相比于跳脱的明艳色,本案业主更喜欢质朴素雅的白色系,方砖纹路的背景墙既丰富的墙面空间,又不会过于喧宾夺主,木色的醇厚与乳白的温柔杂糅在一起,似是一幅柔情浪漫的画卷,缓缓展现在眼前。

玄关
玄关在兼顾美学的同时,更注重实用性,入户门左面就是正面墙的储物柜,上方可挂日常穿的衣服,下方存放日常穿的鞋,中间的壁龛可放一些进出门随手拿取的小物件,还可摆放一些工艺品,既美观又实用。

厨房
厨房是一个会给生活带来幸福感的地方,厨房大体也是以白色为主,整体看起来明亮宽敞干净利落,做饭时心情也会变得很好~

餐厅
餐厅位于厨房外的单独空间,没有过多的装饰,一张实木餐桌,搭配着几张餐椅,墙上一幅艺术挂画,让用餐空间显得端庄优雅而个性文艺而高级独特。
