杭州市余杭区五常中学迁建工程(新校区) | UAD浙大设计
五常中学缘起“洪园”文化,地处杭州国家西溪湿地旁,是未来科技城起飞的东部起点,也是连接阿里巴巴与主城区的重要节点。设计初期计划建成余杭区规模最大的初级中学,建成后因布局高效,风格独特与杭州师范大学签约署名杭州师范大学附属初级中学。
01.项目概况

△ 总平面布局

△ 新中式风格

△ 图书馆正面
整个校园容纳54个班,2700名学生,教职工约200人。总用地面积68449平方米,南北方向狭长,西南侧水景环绕。总建筑面积68303平方米,其中地上57825平方米。
02.设计理念

△ 综合区组团效果

△ 设计理念
五常的湿地文化体现着江南水乡最独特的韵味,五常的龙舟文化体现着当地人民拼搏不息的精神。所以校园采用湿地书院的理念打造新中式的建筑风格,取形舒展飞驰的腾龙串联整体的建筑格局。
03.校园布局

△ 综合区内院围合

△ 内院栏杆序列

△ 教学组团串联

△ 生活组团色彩
整个校园分为三大组团,动静分区。综合区组团包含行政办公楼、大报告厅、体艺楼、图书馆、科技楼,五幢楼串联在一起,围合出具有内向性的入口庭院;教学区组团包含三幢教学楼,营造半开敞的休闲空间,点缀校园的文化雕塑;生活区组团包含食堂和两幢宿舍楼,形成充满活力的地景庭院,整个生活组团沿河展开,充分利用景观资源。同时我们设计了一条贯穿整个校园的风雨连廊,为师生提供了风雨无阻的交通空间,而其形成的二层平台与建筑、体育场看台、室外大楼梯结合,形成尺度不一,趣味丰富的公共活动空间。
04.建筑风格

△ 新中式意境

△ 现代风格
校园建筑风格简洁实用,摒弃浮华造作,体现江南新中式的现代意境。综合区三大公共建筑利用自身的空间变化营造三个不同维度的金属斜屋面,形成错落有致的节奏,大面的实虚对比及富有韵律感的外窗也体现着精致的尺寸控制和立面语言。主要的教学及宿舍建筑利用深灰色屋顶和横向线条营造大气典雅的氛围,经久耐看。

△ 午后的校园

△ 华灯初上

△ 夜幕降临
也许你喜欢在宽敞高大的体育馆挥洒汗水,爆发活力;也许你喜欢在操场看台指点江山,豪言壮志;也许你喜欢在图书馆外的露台上三五成群,享受阳光;也许你喜欢在黑板前奋笔疾书、文思泉涌;但也许你只喜欢在眺望湿地的宿舍里发呆,放松思绪,憧憬未来……所以,你会喜欢在这个湿地公园一样的校园中行走、思考、嬉戏、成长,水光潋滟、绿树成荫,书声琅琅、笑容依依。

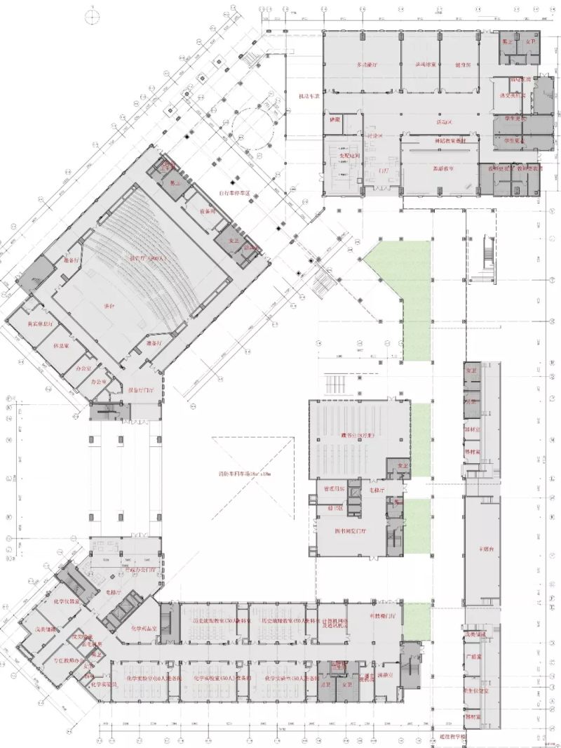
△ 综合区平面

△ 建筑剖面

△ 功能分区
当夜幕快要降临的时候,照在走廊间的夕阳,是内心的温暖;图书馆星星点点的明亮,是欣慰的平静;洒向绿茵场的一道微光,是无尽的希望。希望孩子们在这里度过他们的青春,精彩绽放。 工程名称 | 杭州市余杭区五常中学迁建工程(新校区)设计单位 | 浙江大学建筑设计研究院有限公司设计总负责人 | 钱锡栋建筑专业 | 陈锐、杜佩君、胡剑锋、吕成长结构专业 | 顾正维、夏雷、沈婷、郑晓清、曾凯、王伟水专业 | 吕存阵、邵煜然、雍小龙、邓倩设备专业 | 潘大红、易凯、顾铭、吴玮华电气专业 | 冯百乐、易鸿雁、汪小芃、吴彩飞智能化专业 | 谢俊鹏、陈佳、叶敏捷
内容转自:梅吟雪飞凤
©版权声明:平台尊重作品版权,精选作品均已注明作者和来源,网友分享作品属于原作者所有。
若涉及版权问题,请及时联系我们删除或修改。如需转载、链接、转贴或以其它方式使用本稿,须注明来源作者。