案例名称:玉兰山庄
设计风格:新中式
户型面积:260平米
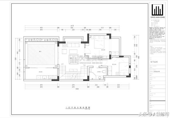
户型类别:联排别墅 4室3厅1厨4卫
设计说明:
繁忙的城市中我们一直在寻找那份宁静,让我们烦躁的情绪可以安静下来,让我们追逐的脚步可以停下来。让我们忙碌的心可以沉淀下来,这个地方就是我们的家。
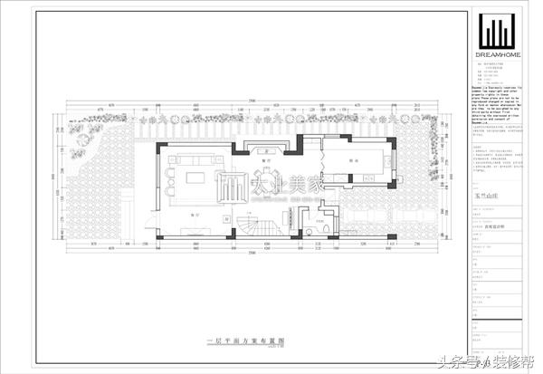
本案是一套二手房全部翻新改造,业主比较喜欢中式元素的东西设计师依据客户需求对此进行设计方案。业主基本需求有:客餐厅要宽敞,要有独立书房可以办公看书用。
在结构上没有大的改动,根据原有户型结构,设计师划分了各个功能区。入户处,放置了成品铁艺隔断,用来缓冲视线,使后面的楼梯不显突兀。

客厅电视、沙发背景墙对称做了弧形造型墙,前后呼应,配上壁纸及装饰画,整体简洁而不单调。

餐厅顶面四周采用石膏板吊顶乳胶漆饰面,沿用了客厅的简洁,没有繁重的装饰品,下方配备了边柜,以及山水画形式的石质屏风,为整个空间添加了一丝灵动。


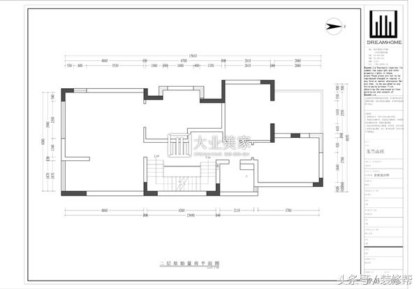
二楼主卧配有书房、卫生间、衣帽间、以及休闲阳台,满足了户主功能上的需求。床头背景,两边采用了中式花格,中间配有素色壁纸,使整个空间素雅明亮,更加温馨。





更多的南京玉兰山庄联排别墅260平新中式风格效果图方案,敬请搜索*京大南**业美家装饰官网!