
惟精惟一,允执厥中
——《尚书·大禹谟》
人之所居
必天地所依,阴阳所安
能三才通一,日月朗照
数极而得中道
金地呼和浩特·名京
潜心中华文魄,细索生活典雅
于北方的壮阔之中,精雕当代生活
解
○
-古文北原 景植城芯-
金地呼和浩特·名京位于呼和浩特玉泉区。呼和浩特是华夏文明的发源地之一,地处中原之北,玉泉区则是呼和浩特的文化发祥地,古称“要荒”,拥有深厚的历史底蕴与特殊的地域风情。

项目所在地不仅人文底蕴厚重,且位于玉泉区南二环外,北侧临近南二环,紧靠玉泉区人民政府,驱车15分钟即可到城市中心。

◎区位图
其南侧500m是小黑河景观带,距离内蒙古最大湿地公园——南湖湿地公园仅1km,生态环境极为优越。周边商业,文化,教育等基础设施崛起迅速,发展潜力巨大,社区配套完善。

◎总平面图
谋
○
-一时一世 一居一城-
结合得天独厚的资源,金地呼和浩特·名京以四项设计理念回应了项目所在地域的独特气质。

DESIGN CONCEPT
»塑造开放生活界面,营造区域标杆形象
在保证生活的私密性的同时,构造社区与城市相连的界面通道,以建筑塑就和谐而韵动的城市形象。
»打造宜人生态公园,营造健康活力社区
设计以“健康”为关键,通过社区内部景观营造呼应外部自然生态,将交流落地在建筑与建筑之间,形成社区的活力,在自然与精神两个维度成就健康生活。
»打造休闲文化空间,营造人文温情社区
在社区的公共休闲空间注入文化元素,营造雅致场所,在日常之中表述文化,放慢城市节奏。
»按指经典 品质,营造智能社区、便捷社区、海绵社区
紧跟时代先进理念,以数据智能营造智能社区,通过海绵城市设计塑造生态化社区,用前沿塑造城市高端品质,便利人居生活。
度
○
-阴阳相生 动景相和-
金地呼和浩特·名京的建筑布局采用“负阴抱阳,九九归一”的设计手法,将地块化为阴阳两形,坐落九栋高层住宅,九栋洋房,呈双鱼环抱之势,并将双九之数贯作中道为一,定于社区入口的星级大堂——名仕堂。

◎鸟瞰效果图
高层住宅以U型排布,怀抱洋房,保证了每栋楼都可以享受丰富的采光和宽阔的视野,并削弱呼和浩特的西北风力,形成社区宜人的微气候。

规划结合金地360°健康家的概念,立足时间、空间、年龄三个维度审视社区生活,充分考虑老人、青年、小孩等不同人群在社区中的全天候生活需求,打造街区广场、中心花园、组团庭院等多个空间活动场所。

景观规划在功能分区上分为高层区景观区和洋房花园区,在东侧入口设置大尺度核心景观花园,奠定社区景观品质,以十字轴串联各个景观节点,景观轴线在各组团分界处连通花园与小区,营造“漫步成园,景深归家”的生活体验。

◎景观规划图

立
○
-设计所约 精神所彰-
社区的入口处由前庭+名仕堂+后院的三进变化空间组成。名仕堂位于金地呼和浩特·名京的东侧,束双鱼之形,集九数之态,作为整个社区礼序的入口。

名仕堂同时为起点确定中轴对称的社区景观主轴迎宾区,刻画紫禁城空间序列,以恢弘姿态带来尊贵领略,让人在归家的刹那间感受生活天然的高贵本质。

前庭入口广场宽60m,进深40m,同时横坐一条16mX22m的柱廊水景作为归家的引导;名仕堂其后是一座70mX70m的大尺度迎宾广场,古典形制的优雅气质,中轴对称的壮美秩序,塑造了社区迎宾区的仪式感。

名仕堂采用戏剧化手法设计。大尺度的玻璃幕墙折射出现代的精神风华,厚重的古典石叙述场域的文化气质,玻璃与前庭水面的相互映照,让场所向四周敞开,而通透的视域则将视线聚焦在场中的艺术品上。

艺术、文化、时尚交织在设计之中,凸显出金地呼和浩特·名京的经典价值。

策
○
-古典轻语 精致成言-
高层住宅立面采用三段式处理法则,语言洗练,摒弃繁琐的细节堆叠,叙述古典形制美学,勾勒当代城市的简练生活。

◎高层南立面

◎高层北立面

◎高层剖面图
金地呼和浩特·名京的建筑设计沿袭新古典风格,采用简约的语言包容当代丰富的生活信息。

建筑富有层次的外部轮廓,在动感的旋律中呈现时尚与古典间和谐而鲜明的对比关系。挺拔的建筑身姿中刻画隽秀的线条,传递出项目的品质感,现代材质辉映典雅色彩,诠释出细腻而庄重、优雅而大气的建筑气质。

◎沿街商业效果图

◎高层南立面效果图
洋房产品仅有六层,为住户提供高品质人居生活。新古典元素镌刻在三柱式的严谨比例之中,石材的庄重与玻璃的通透,让立面的古典语言锁住生活的私密,又向现代审美敞开。

◎洋房南立面

◎洋房北立面

◎洋房剖面图

◎洋房南立面效果图
集
○
-无缺生活 点亮日常-
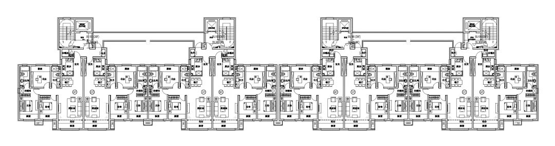
高层住宅的户型面积为117㎡,格局方正,南北通透。北侧入户便是超大玄关,满足日常进出收纳所需,打破生活的局促;大客厅开间,阳光进庭,清风入户;合理布局餐客厅等功能分区,并连接在同一视域之中,空间简洁大气。

◎高层标准层平面图
洋房户型面积有140㎡,格局典雅中正。设计有效提升空间利用率,完备生活的种种日常,演绎温情浪漫的家庭时光。南向三面宽,全明设计,让阳光伴随生活行进;客餐厨一体化为户型核心,营造别墅式空间体验,展现三代同堂的生活温馨场景;卧室的设置最大程度上满足了每个人的私密和静谧需求,隐而不隔,容纳家庭生活。

◎洋房单体平面图
“居住”
永远不只是一个屋,一张床

生活的栖居
需要时刻与自然的相依
需要日月星辰的守候
金地呼和浩特·名京
用建筑,让生活不荒凉
用设计,描绘美好日常
工程档案
PROGECT FILE
项目地点 | 内蒙古呼和浩特市
开发商 | 金地(集团)内蒙古呼和浩特公司
规划设计丨北京墨臣建筑设计事务所
建筑设计丨北京墨臣建筑设计事务所
设计团队丨周琪、方四军、张振文、陆自强、王晓雪、刘华
景观设计丨浙江伍道泰格建筑景观设计有限公司
名仕堂室内设计丨HBA赫斯贝德纳室内设计咨询(上海)有限公司
项目规模丨355,801㎡
容积率丨2.799
绿化率丨35.6%
设计时间丨2018年
摄影丨光场建筑摄影 朱捍东
撰稿丨地产线
本资料声明:
1.本资料为要约邀请,不视为要约,所有政府、政策信息均来源于官方披露信息,具体以实物、政府主管部门批准文件及买卖双方签订的商品房买卖合同约定为准。如有变化恕不另行通知。
2. 因编辑需要,文字和图片无必然联系,仅供读者参考;
3. 本资料制作时间为2019年10月。
END